Moradia T4 para Venda em São Francisco
370.000 €
Tipo
Moradia
Negócio
Venda
Quartos
4
Casas de Banho
3
Área Bruta
241 m²
Área Útil
230 m²
Condição
Reservado
Certificado Energético
Avaliação em curso
Moradia em Banda V3+1, Urbanização Terraços de S. Francisco
Apresentamos esta Moradia em Banda V3+1 para venda no estado atual, localizada no Lote 116, no prestigiado Empreendimento de Luxo Terraços de São Francisco, em Alcochete.
Moradia em construção, com possibilidade de finalizar a obra com o Construtor inicial aproveitando o projeto já realizado, permitindo assim ao futuro Proprietário beneficiar de um imóvel moderno, eficiente e com elevados padrões de qualidade, tranquilidade e conforto.
Situada na tranquila e encantadora zona de São Francisco, em Alcochete, oferece um ambiente residencial de excelência, a escassos minutos da Praia Fluvial, Escolas, Comércio local e serviços essenciais, que garantem toda a comodidade necessária às atividades do dia a dia, mantendo simultaneamente um fácil e rápido acesso à cidade de Lisboa pela Ponte Vasco da Gama.
Proporciona assim o equilíbrio perfeito entre vida urbana e a tranquilidade que tanto se deseja.
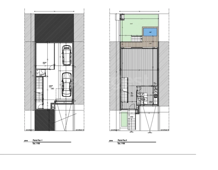
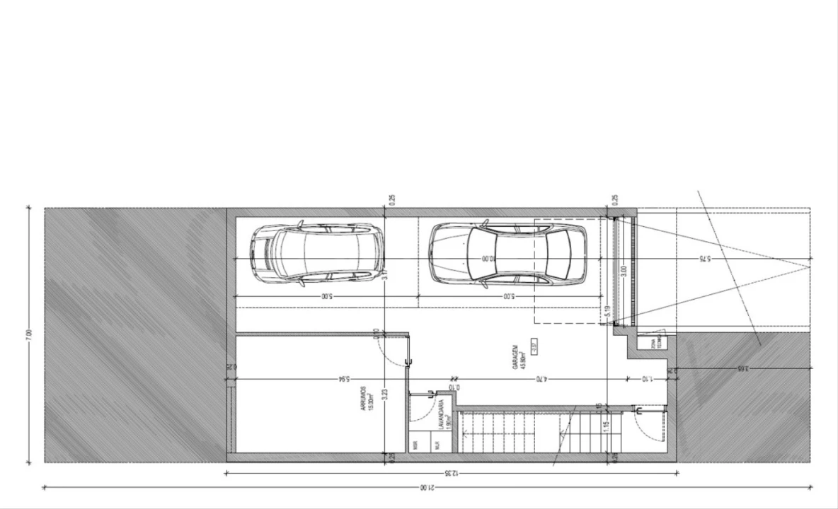
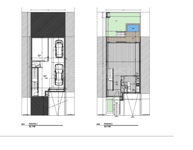
Distribuição Funcional:
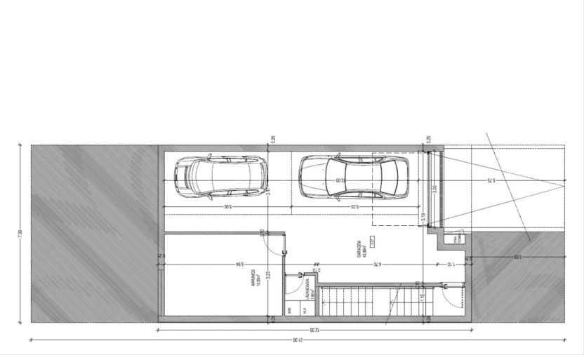
Piso Inferior: Garagem: 48m2, possibilidade para 2 viaturas; Quarto: 15m2, Lavandaria: 1,90m2
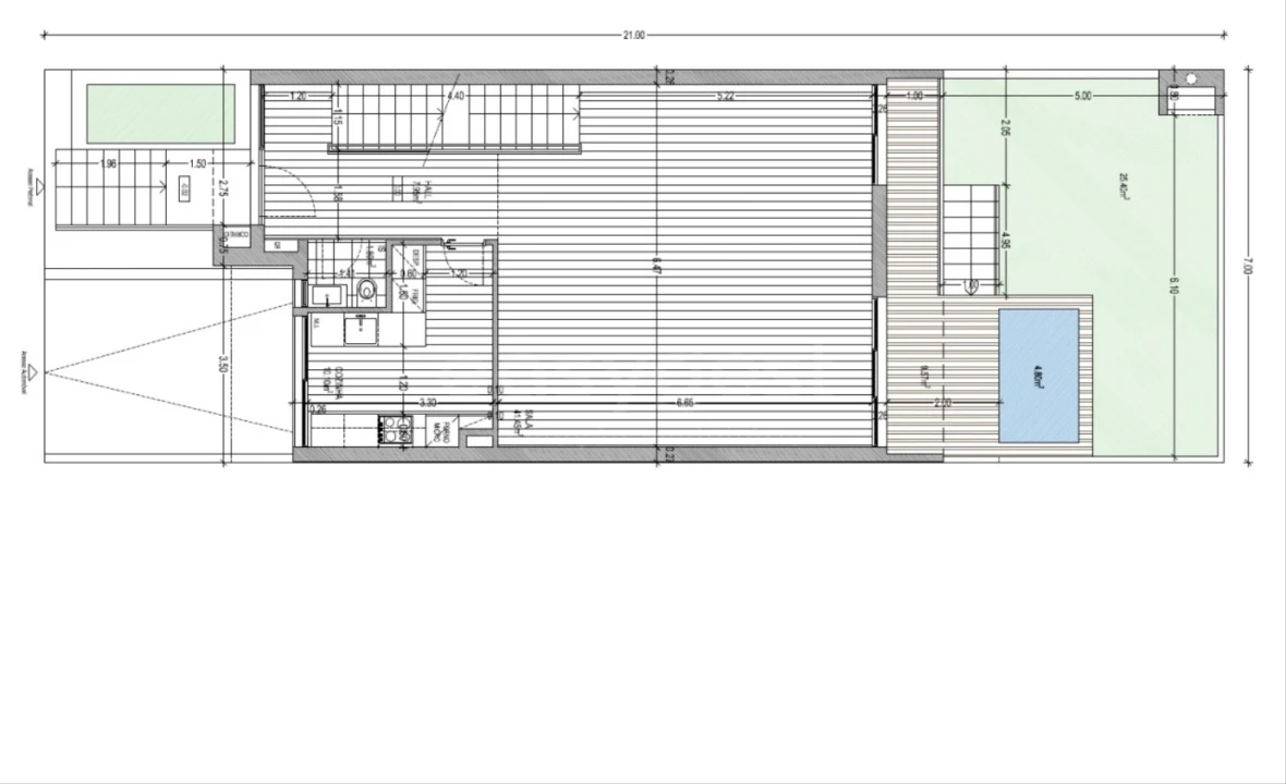
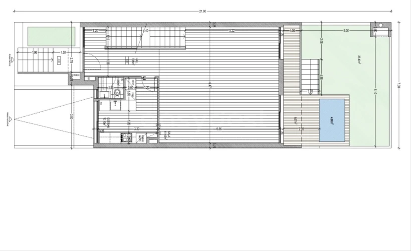
Piso Intermédio: Entrada principal/ Hall:7,83m2; WC Social: 1,80m2; Sala de estar luminosa: 41,15m2; Cozinha: 10m2; Varanda: 9,60m2
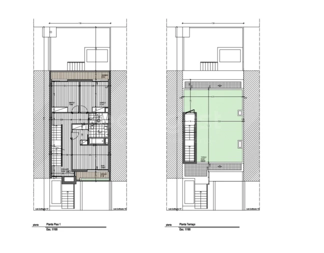
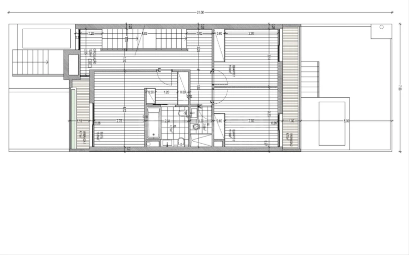
Piso Superior: Corredor: 13m2, 1º.Quarto: 15,75m2 e WC Suite: 4,65m2; 2º.Quarto: 11m2; 3º.Quarto; 11,10m2; WC: 2,65m2; Varandas: 3,73m2 + 6,70m2
Cobertura/ Terraço: 50,90m2
Características Técnicas:
Ar Condicionado em todas as divisões
Painéis solares para aquecimento de águas
Categoria Energética A
Acabamentos modernos e de elevada qualidade
Terraço e Varanda ideais para lazer
Agende já a sua visita e descubra como é viver com elegância, conforto e qualidade na Vila de Alcochete.
Tratamos do seu Crédito Habitação de forma simples, transparente e eficaz. Negociamos as melhores condições para o seu caso.
EasyGest Finance, o seu Intermediário de crédito de confiança, certificado pelo Banco de Portugal com o nº 0001802.
Ajudamos com todo o processo! Entre em contacto connosco ou deixe-nos os seus dados e entraremos em contacto assim que possível!
PN98709ES
Moradia em construção, com possibilidade de finalizar a obra com o Construtor inicial aproveitando o projeto já realizado, permitindo assim ao futuro Proprietário beneficiar de um imóvel moderno, eficiente e com elevados padrões de qualidade, tranquilidade e conforto.
Situada na tranquila e encantadora zona de São Francisco, em Alcochete, oferece um ambiente residencial de excelência, a escassos minutos da Praia Fluvial, Escolas, Comércio local e serviços essenciais, que garantem toda a comodidade necessária às atividades do dia a dia, mantendo simultaneamente um fácil e rápido acesso à cidade de Lisboa pela Ponte Vasco da Gama.
Proporciona assim o equilíbrio perfeito entre vida urbana e a tranquilidade que tanto se deseja.
Distribuição Funcional:
Piso Inferior: Garagem: 48m2, possibilidade para 2 viaturas; Quarto: 15m2, Lavandaria: 1,90m2
Piso Intermédio: Entrada principal/ Hall:7,83m2; WC Social: 1,80m2; Sala de estar luminosa: 41,15m2; Cozinha: 10m2; Varanda: 9,60m2
Piso Superior: Corredor: 13m2, 1º.Quarto: 15,75m2 e WC Suite: 4,65m2; 2º.Quarto: 11m2; 3º.Quarto; 11,10m2; WC: 2,65m2; Varandas: 3,73m2 + 6,70m2
Cobertura/ Terraço: 50,90m2
Características Técnicas:
Ar Condicionado em todas as divisões
Painéis solares para aquecimento de águas
Categoria Energética A
Acabamentos modernos e de elevada qualidade
Terraço e Varanda ideais para lazer
Agende já a sua visita e descubra como é viver com elegância, conforto e qualidade na Vila de Alcochete.
Tratamos do seu Crédito Habitação de forma simples, transparente e eficaz. Negociamos as melhores condições para o seu caso.
EasyGest Finance, o seu Intermediário de crédito de confiança, certificado pelo Banco de Portugal com o nº 0001802.
Ajudamos com todo o processo! Entre em contacto connosco ou deixe-nos os seus dados e entraremos em contacto assim que possível!
PN98709ES
Localização
São Francisco, Alcochete, Setúbal
Informação do anúncio
ID do anúncio
1643796
Referência Externa
PN98709ES
Atualizado em
21/03/2026 16:00:40
Consultor
EasyGest Mediação Imobiliária
Moradia T4 para Venda em São Francisco