Terreno para Venda em Paranhos
800.000 €
Tipo
Terreno
Negócio
Venda
Área Bruta
2530 m²
Área Útil
2530 m²
Área do Terreno
641 m²
Descrição
Identificação do imóvel: ZMPT585552
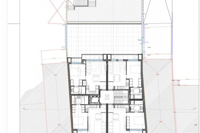
Terreno urbano com projeto aprovado para a construção de 10 frações T1, todas com lugar de garagem, situado na Rua Júlio de Matos, em localização privilegiada junto ao Polo Universitário.
Inserido numa zona de elevada procura habitacional, beneficia de bons acessos, proximidade a transportes públicos, comércio, serviços e instituições de ensino superior, tornando-o ideal para investimento em arrendamento, especialmente direcionado ao mercado universitário ou de longa duração.
Informações técnicas:
-Área total do prédio:641m2
-Área total da edificação a demolir:165m2
-Área de construção:1190m2
-Área de edificação;1,07
-Volume de construção:2530m2
-Área de implantação:447m2
-Nº de pisos:
-abaixo da cota da soleira 1;
-acima da cota da soleira 3;
-Cércea:9,65m2
-Número de fogos:10
- Características principais:
- Projeto aprovado para 9 apartamentos T1 e um apartamento T3;
- Todas as frações com lugares de garagem;
- Localização privilegiada junto ao Polo Universitário;
- Zona com elevada procura;
- Ideal para arrendamento ou habitação própria;
Área Involvente:
- Metro Pólo Universitário – 0,4 km
- FEP – Faculdade de Economia – 0,6 km
- FEUP – Faculdade de Engenharia – 0,7 km
- Universidade Portucalense – 0,8 km
- Supermercados e comércio (Continente) – 0,9 km
- Hospital de São João – 1,6 km
- Acesso à A3 / Circunvalação (EN12) – 1,0 km.
Pra quem procura investir próximo ao Polo Universitário, esta será uma boa oportunidade.
3 razões para comprar com a Zome
+ acompanhamento
Com uma preparação e experiência única no mercado imobiliário, os consultores Zome põem toda a sua dedicação em dar-lhe o melhor acompanhamento, orientando-o com a máxima confiança, na direção certa das suas necessidades e ambições.
Daqui para a frente, vamos criar uma relação próxima e escutar com atenção as suas expectativas, porque a nossa prioridade é a sua felicidade! Porque é importante que sinta que está acompanhado, e que estamos consigo sempre.
+ simples
Os consultores Zome têm uma formação única no mercado, ancorada na partilha de experiência prática entre profissionais e fortalecida pelo conhecimento de neurociência aplicada que lhes permite simplificar e tornar mais eficaz a sua experiência imobiliária.
Deixe para trás os pesadelos burocráticos porque na Zome encontra o apoio total de uma equipa experiente e multidisciplinar que lhe dá suporte prático em todos os aspetos fundamentais, para que a sua experiência imobiliária supere as expectativas.
+ feliz
O nosso maior valor é entregar-lhe felicidade!
Liberte-se de preocupações e ganhe o tempo de qualidade que necessita para se dedicar ao que lhe faz mais feliz.
Agimos diariamente para trazer mais valor à sua vida com o aconselhamento fiável de que precisa para, juntos, conseguirmos atingir os melhores resultados.
Com a Zome nunca vai estar perdido ou desacompanhado e encontrará algo que não tem preço: a sua máxima tranquilidade!
É assim que se vai sentir ao longo de toda a experiência: Tranquilo, seguro, confortável e... FELIZ!
Notas:
1. Caso seja um consultor imobiliário, este imóvel está disponível para partilha de negócio. Não hesite em apresentar aos seus clientes compradores e fale connosco para agendar a sua visita.
2. Para maior facilidade na identificação deste imóvel, por favor, refira o respetivo ID ZMPT ou o respetivo agente que lhe tenha enviado a sugestão.
Terreno urbano com projeto aprovado para a construção de 10 frações T1, todas com lugar de garagem, situado na Rua Júlio de Matos, em localização privilegiada junto ao Polo Universitário.
Inserido numa zona de elevada procura habitacional, beneficia de bons acessos, proximidade a transportes públicos, comércio, serviços e instituições de ensino superior, tornando-o ideal para investimento em arrendamento, especialmente direcionado ao mercado universitário ou de longa duração.
Informações técnicas:
-Área total do prédio:641m2
-Área total da edificação a demolir:165m2
-Área de construção:1190m2
-Área de edificação;1,07
-Volume de construção:2530m2
-Área de implantação:447m2
-Nº de pisos:
-abaixo da cota da soleira 1;
-acima da cota da soleira 3;
-Cércea:9,65m2
-Número de fogos:10
- Características principais:
- Projeto aprovado para 9 apartamentos T1 e um apartamento T3;
- Todas as frações com lugares de garagem;
- Localização privilegiada junto ao Polo Universitário;
- Zona com elevada procura;
- Ideal para arrendamento ou habitação própria;
Área Involvente:
- Metro Pólo Universitário – 0,4 km
- FEP – Faculdade de Economia – 0,6 km
- FEUP – Faculdade de Engenharia – 0,7 km
- Universidade Portucalense – 0,8 km
- Supermercados e comércio (Continente) – 0,9 km
- Hospital de São João – 1,6 km
- Acesso à A3 / Circunvalação (EN12) – 1,0 km.
Pra quem procura investir próximo ao Polo Universitário, esta será uma boa oportunidade.
3 razões para comprar com a Zome
+ acompanhamento
Com uma preparação e experiência única no mercado imobiliário, os consultores Zome põem toda a sua dedicação em dar-lhe o melhor acompanhamento, orientando-o com a máxima confiança, na direção certa das suas necessidades e ambições.
Daqui para a frente, vamos criar uma relação próxima e escutar com atenção as suas expectativas, porque a nossa prioridade é a sua felicidade! Porque é importante que sinta que está acompanhado, e que estamos consigo sempre.
+ simples
Os consultores Zome têm uma formação única no mercado, ancorada na partilha de experiência prática entre profissionais e fortalecida pelo conhecimento de neurociência aplicada que lhes permite simplificar e tornar mais eficaz a sua experiência imobiliária.
Deixe para trás os pesadelos burocráticos porque na Zome encontra o apoio total de uma equipa experiente e multidisciplinar que lhe dá suporte prático em todos os aspetos fundamentais, para que a sua experiência imobiliária supere as expectativas.
+ feliz
O nosso maior valor é entregar-lhe felicidade!
Liberte-se de preocupações e ganhe o tempo de qualidade que necessita para se dedicar ao que lhe faz mais feliz.
Agimos diariamente para trazer mais valor à sua vida com o aconselhamento fiável de que precisa para, juntos, conseguirmos atingir os melhores resultados.
Com a Zome nunca vai estar perdido ou desacompanhado e encontrará algo que não tem preço: a sua máxima tranquilidade!
É assim que se vai sentir ao longo de toda a experiência: Tranquilo, seguro, confortável e... FELIZ!
Notas:
1. Caso seja um consultor imobiliário, este imóvel está disponível para partilha de negócio. Não hesite em apresentar aos seus clientes compradores e fale connosco para agendar a sua visita.
2. Para maior facilidade na identificação deste imóvel, por favor, refira o respetivo ID ZMPT ou o respetivo agente que lhe tenha enviado a sugestão.
Localização
Rua Doutor Júlio de Matos - Pares de 264 a 476
Paranhos, Porto, Porto
A localização exacta do imóvel não está disponível. O mapa apresenta a zona aproximada.
Informação do anúncio
ID do anúncio
1649877
Referência Externa
ZMPT585552
Atualizado em
28/05/2026 06:01:45
Anunciante
Chamada para a rede fixa nacional
ZOME Porto - Damião de Góis
AMI 17432
Referência do imóvel:
ZMPT585552
Terreno para Venda em Paranhos