Terreno para Venda em Lagos (São Sebastião e Santa Maria)
990.000 €
Tipo
Terreno
Negócio
Venda
Ano de Construção
1951
Área Bruta
1030 m²
Condição
Para Obras
Certificado Energético
Não aplicável
Área do Terreno
559 m²
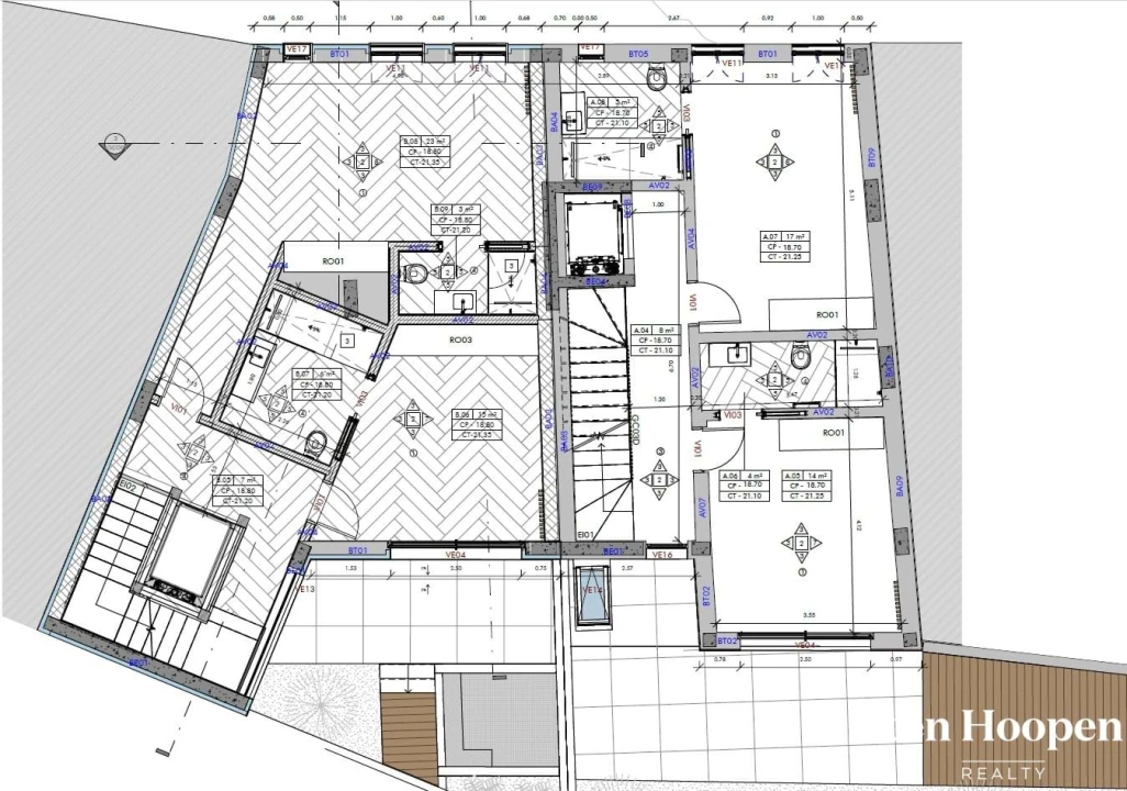
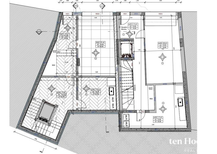
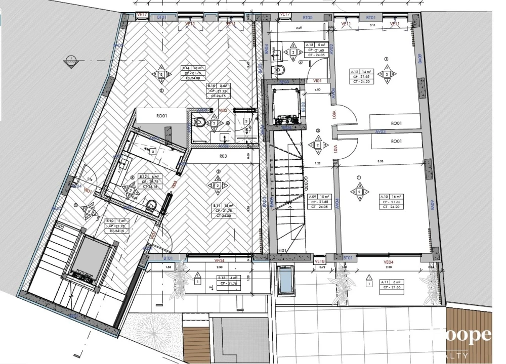
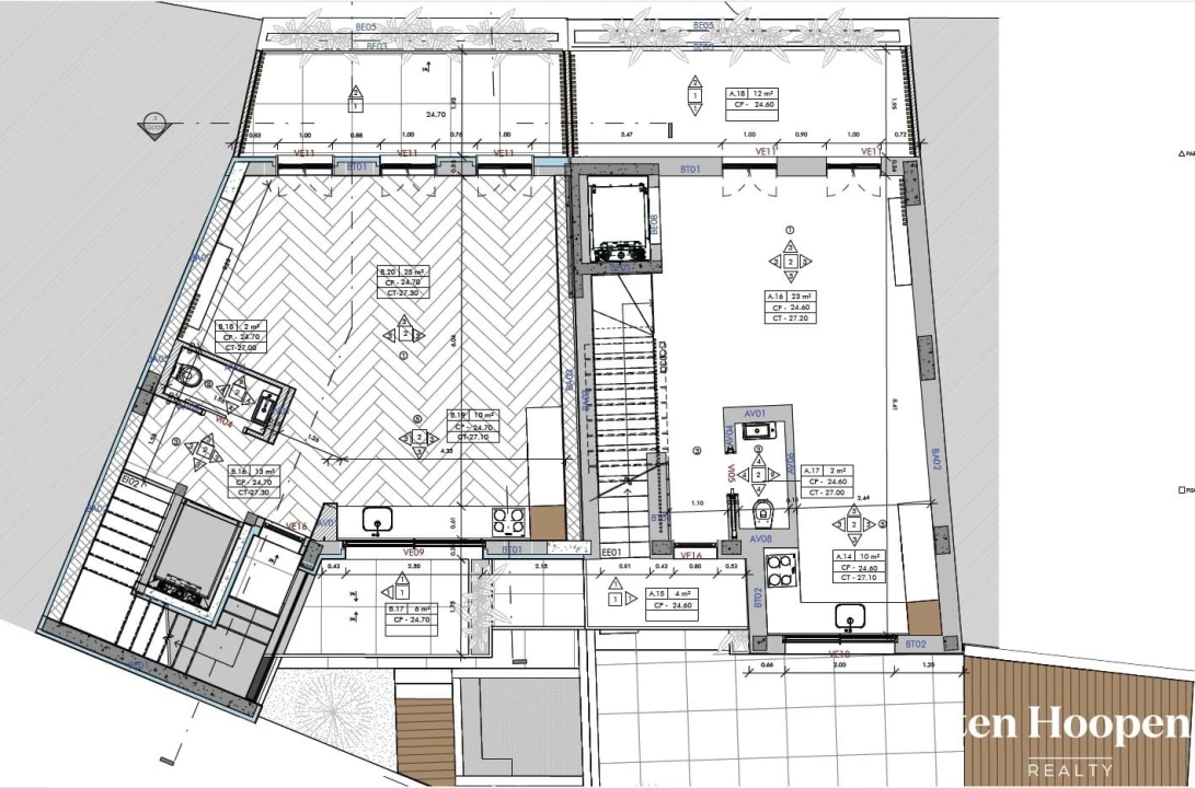
Projeto para 5 moradias em banda em Lagos
A ten Hoopen Realty apresenta uma oportunidade rara de desenvolvimento no centro histórico de Lagos: projeto aprovado para requalificação urbana de um conjunto residencial composto por cinco moradias geminadas, com uma área total de construção de 1.030 m². Num mercado onde a escassez de produto novo em localização central é cada vez mais evidente, este projeto destaca-se pela sua solidez, enquadramento fiscal favorável e elevado potencial de valorização.
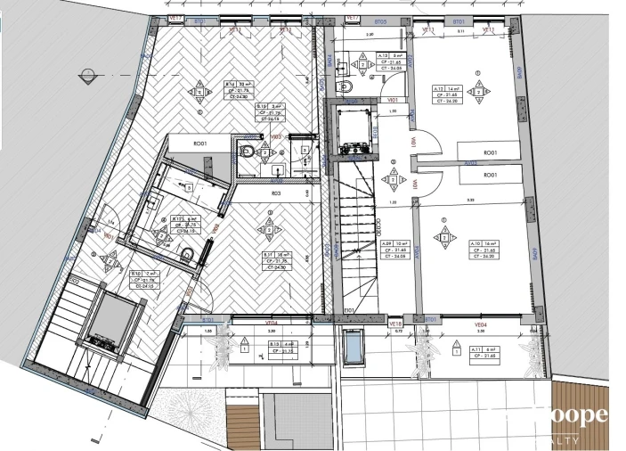
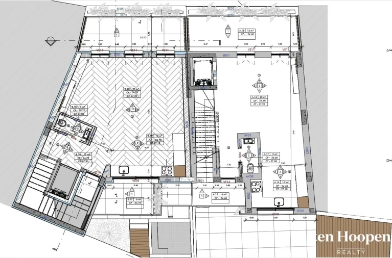
O projeto contempla cinco moradias distribuídas por três pisos, todas com acesso a terraço na cobertura, potenciando luminosidade, privacidade e atratividade comercial. A configuração foi cuidadosamente estruturada para responder ao segmento residencial premium e ao mercado de segunda habitação, ambos altamente ativos na região:
- Três moradias T2 com 2 casas de banho, acesso privado, garagem e arrumos
- Uma moradia T4 com 4 suites, lavandaria, garagem e arrumos
- Uma moradia T4 com 4 quartos, 2 em suite, acesso privado, garagem e arrumos
Inserido em Área de Reabilitação Urbana (ARU), o projeto beneficia de um enquadramento fiscal particularmente atrativo, nomeadamente IVA reduzido a 6% nas obras de reabilitação, fator determinante na otimização da margem do promotor. Acresce o facto de se tratar de um projeto já aprovado, permitindo reduzir risco, encurtar o prazo de desenvolvimento e avançar rapidamente para fase de construção.
A localização, no coração do centro histórico, assegura proximidade imediata a comércio tradicional, restauração, serviços e às emblemáticas praias de Lagos. Moradias novas com garagem nesta zona são praticamente inexistentes, o que reforça o carácter exclusivo do projeto e o seu potencial de absorção no mercado nacional e internacional.
Principais destaques do investimento:
- Projeto aprovado, pronto a desenvolver
- Localização prime no centro histórico
- Benefícios fiscais relevantes em ARU
- Produto escasso com forte procura
- Elevado potencial de valorização a médio prazo
Para promotores e investidores que procuram um ativo diferenciado no Algarve, esta é uma oportunidade estratégica de desenvolver um produto boutique numa das zonas mais consolidadas e resilientes do mercado. A ten Hoopen Realty posiciona-se como parceiro estratégico no acompanhamento do desenvolvimento e na definição da estratégia de comercialização, garantindo um enquadramento alinhado com a realidade do mercado e com o perfil do comprador internacional ativo em Lagos.
Áreas de Construção
Moradias T4:
Fração A
Piso 0 - 76m2
Piso 1 - 65m2
Piso 2 - 57m2
Piso 3 - 48m2
Cobertura - 43m2
Fração B
Piso 0 - 82m2
Piso 1 - 73m2
Piso 2 - 73m2
Piso 3 - 58m2
Cobertura - 63m2
Moradias T2:
Fração C
Piso 0 - 58m2
Piso 1 - 60m2
Piso 2 - 54m2
Cobertura - 52m2
Fração D
Piso 0 - 56m2
Piso 1 - 58m2
Piso 2 - 54m2
Cobertura - 50m2
Fração E
Piso 0 - 56m2
Piso 1 - 56m2
Piso 2 - 50m2
Cobertura - 48m2
O projeto contempla cinco moradias distribuídas por três pisos, todas com acesso a terraço na cobertura, potenciando luminosidade, privacidade e atratividade comercial. A configuração foi cuidadosamente estruturada para responder ao segmento residencial premium e ao mercado de segunda habitação, ambos altamente ativos na região:
- Três moradias T2 com 2 casas de banho, acesso privado, garagem e arrumos
- Uma moradia T4 com 4 suites, lavandaria, garagem e arrumos
- Uma moradia T4 com 4 quartos, 2 em suite, acesso privado, garagem e arrumos
Inserido em Área de Reabilitação Urbana (ARU), o projeto beneficia de um enquadramento fiscal particularmente atrativo, nomeadamente IVA reduzido a 6% nas obras de reabilitação, fator determinante na otimização da margem do promotor. Acresce o facto de se tratar de um projeto já aprovado, permitindo reduzir risco, encurtar o prazo de desenvolvimento e avançar rapidamente para fase de construção.
A localização, no coração do centro histórico, assegura proximidade imediata a comércio tradicional, restauração, serviços e às emblemáticas praias de Lagos. Moradias novas com garagem nesta zona são praticamente inexistentes, o que reforça o carácter exclusivo do projeto e o seu potencial de absorção no mercado nacional e internacional.
Principais destaques do investimento:
- Projeto aprovado, pronto a desenvolver
- Localização prime no centro histórico
- Benefícios fiscais relevantes em ARU
- Produto escasso com forte procura
- Elevado potencial de valorização a médio prazo
Para promotores e investidores que procuram um ativo diferenciado no Algarve, esta é uma oportunidade estratégica de desenvolver um produto boutique numa das zonas mais consolidadas e resilientes do mercado. A ten Hoopen Realty posiciona-se como parceiro estratégico no acompanhamento do desenvolvimento e na definição da estratégia de comercialização, garantindo um enquadramento alinhado com a realidade do mercado e com o perfil do comprador internacional ativo em Lagos.
Áreas de Construção
Moradias T4:
Fração A
Piso 0 - 76m2
Piso 1 - 65m2
Piso 2 - 57m2
Piso 3 - 48m2
Cobertura - 43m2
Fração B
Piso 0 - 82m2
Piso 1 - 73m2
Piso 2 - 73m2
Piso 3 - 58m2
Cobertura - 63m2
Moradias T2:
Fração C
Piso 0 - 58m2
Piso 1 - 60m2
Piso 2 - 54m2
Cobertura - 52m2
Fração D
Piso 0 - 56m2
Piso 1 - 58m2
Piso 2 - 54m2
Cobertura - 50m2
Fração E
Piso 0 - 56m2
Piso 1 - 56m2
Piso 2 - 50m2
Cobertura - 48m2
Localização
Lagos (São Sebastião e Santa Maria), Lagos, Faro
Informação do anúncio
ID do anúncio
1652183
Referência Externa
T1286
Atualizado em
21/05/2026 00:41:50
Anunciante
Chamada para a rede móvel nacional
TEN HOOPEN REALTY
AMI 19855
Referência do imóvel:
T1286
Terreno para Venda em Lagos (São Sebastião e Santa Maria)