Terreno para Venda em Peniche
75.000 €
Tipo
Terreno
Negócio
Venda
Área Bruta
131 m²
Área Útil
93 m²
Condição
Não aplicável
Certificado Energético
Não aplicável
Área do Terreno
74 m²
Terreno para Construção no Centro Histórico de Peniche
Terreno para Construção no Centro Histórico de Peniche
Excelente oportunidade para adquirir terreno urbano no centro da cidade de Peniche, ideal para quem procura construir casa própria em localização privilegiada, com acesso pedonal a todos os serviços e comodidades.
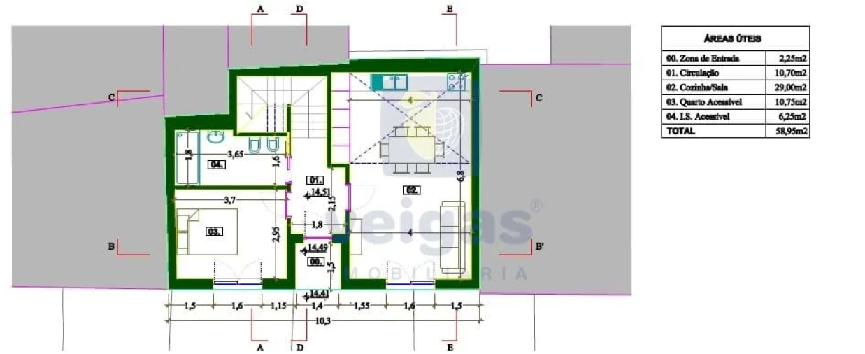
Com 74 m² de área, este terreno teve projeto anteriormente aprovado para construção de moradia unifamiliar T2, distribuída por 2 pisos, com uma área total de construção de 131,85 m², não se encontrando atualmente em vigor. Ainda assim, representa uma excelente base de referência para novo pedido de licenciamento, sendo uma solução ideal para quem pretende desenvolver e personalizar a sua futura habitação, com liberdade na escolha de materiais, acabamentos e organização dos espaços.
Localizado em pleno centro histórico, permite viver com total comodidade, dispensando o uso diário de viatura. A poucos passos de comércio local, restaurantes, serviços, marina de Peniche, museus e do emblemático Forte de Peniche.
Ideal para:
- Construção de habitação própria permanente
- Casa de férias no centro da cidade
- Investimento imobiliário em zona de elevada procura
Se privilegia viver no coração da cidade, com tudo à porta e perto do mar, esta é a oportunidade certa para construir o seu projeto de vida em Peniche.
Para mais informações ou agendamento de visita, entre em contacto.
Excelente oportunidade para adquirir terreno urbano no centro da cidade de Peniche, ideal para quem procura construir casa própria em localização privilegiada, com acesso pedonal a todos os serviços e comodidades.
Com 74 m² de área, este terreno teve projeto anteriormente aprovado para construção de moradia unifamiliar T2, distribuída por 2 pisos, com uma área total de construção de 131,85 m², não se encontrando atualmente em vigor. Ainda assim, representa uma excelente base de referência para novo pedido de licenciamento, sendo uma solução ideal para quem pretende desenvolver e personalizar a sua futura habitação, com liberdade na escolha de materiais, acabamentos e organização dos espaços.
Localizado em pleno centro histórico, permite viver com total comodidade, dispensando o uso diário de viatura. A poucos passos de comércio local, restaurantes, serviços, marina de Peniche, museus e do emblemático Forte de Peniche.
Ideal para:
- Construção de habitação própria permanente
- Casa de férias no centro da cidade
- Investimento imobiliário em zona de elevada procura
Se privilegia viver no coração da cidade, com tudo à porta e perto do mar, esta é a oportunidade certa para construir o seu projeto de vida em Peniche.
Para mais informações ou agendamento de visita, entre em contacto.
Localização
Peniche, Peniche, Leiria
Informação do anúncio
ID do anúncio
1661769
Referência Externa
CPT-216619
Atualizado em
26/04/2026 00:42:44
Terreno para Venda em Peniche