Moradia T4 para Venda em Arouca e Burgo
150.000 €
Tipo
Moradia
Negócio
Venda
Ano de Construção
1982
Quartos
4
Área Bruta
519 m²
Área Útil
130 m²
Certificado Energético
B
Área do Terreno
1371 m²
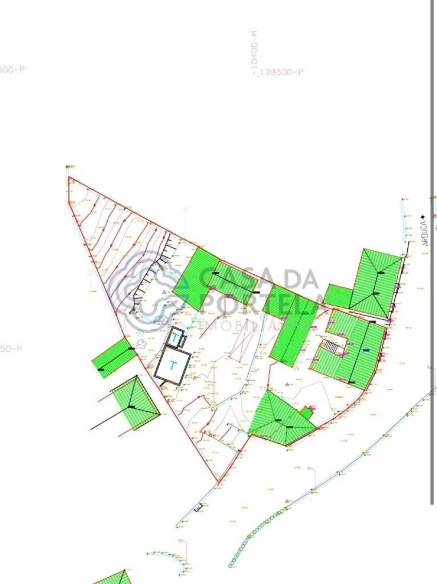
? Imóvel para Venda – 4 Ruínas para Restauro | Figueiredo, Arouca
Conjunto imobiliário composto por 4 ruínas em pedra para reabilitação, inseridas em terreno com ótima área total, localizado em Figueiredo, concelho de Arouca.
Imóvel com elevado potencial para projeto habitacional ou turístico, beneficiando de excelente exposição solar, bons acessos e proximidade ao centro urbano.
Características Principais:
✔ Conjunto de 4 ruínas
✔ Construções em pedra para reconstrução total
✔ Terreno com área ampla e potencial construtivo (sujeito a consulta camarária)
✔ Excelente exposição solar
✔ Bons acessos rodoviários
✔ Localização tranquila e envolvente natural
✔ A poucos minutos do centro de Arouca
Enquadramento e Potencial:
Ideal para:
Habitação própria permanente
Segunda habitação / casa de campo
Projeto de turismo rural ou alojamento local
Investimento para revenda após reabilitação
A localização combina a tranquilidade do meio rural com proximidade a comércio, serviços e principais vias de acesso.
Informação Adicional:
Imóvel vendido no estado atual
Viabilidade construtiva sujeita a confirmação junto da Câmara Municipal de Arouca
Área do terreno _ 1371,53 m2
Área coberta _ 353 m2
Área descoberta _ 1018,53 m2
A CASA DA PORTELA Imobiliária – É uma empresa de mediação imobiliária e Intermediação de Crédito criada em 2013. Os seus sócios fundadores possuem um sólido conhecimento acumulado desde 1994 sobre o mercado imobiliário, mantendo-se atentos às suas tendências e evolução, e com uma Intermediação de Crédito registado no Banco de Portugal com o nº 0004889.
A empresa começou por centrar-se na região do Grande Porto, conseguindo, desde o início, um grande volume de transações. O sucesso do modelo de negócio fez com que a marca Casa da Portela imobiliária chegasse em 2022 a Vila Nova de Famalicão. A Casa da Portela imobiliária pretende valorizar o trabalho dos consultores e prestar um serviço de excelência aos seus clientes, proporcionando um serviço de qualidade e tranquilidade, de forma a realizar bons negócios, garantindo a satisfação dos nossos clientes e parceiros. Para atingir esse propósito, dispomos de uma equipa multidisciplinar de profissionais qualificados, com vasta experiência em mediação imobiliária que nos permite apresentar e sugerir as melhores alternativas para os seus objetivos de venda, de arrendamento, ou de investimento imobiliário.
Possuímos uma rede de contatos privilegiada que nos permite potenciar a divulgação, a gestão e a concretização de negócio do seu imóvel em vários formatos.
3 Pilares fundamentais da Casa da Portela:
Missão
A nossa missão é orientar os nossos objetivos excecionais (financeiros, humanos e sociais) na nossa organização e uni-los aos nossos não menos excecionais clientes, atendendo sempre às suas necessidades, desejos e expectativas. A Casa da Portela imobiliária nasceu para que fosse possível prestar um acompanhamento e apoio contínuos, explicação e esclarecimento de dúvidas, sobre todo o processo de compra, venda ou arrendamento de imóveis em Portugal. A concretização de tudo isto faz com que a nossa máxima ambição seja sermos os melhores no mercado imobiliário.
Visão
A nossa visão é sermos a empresa de referência no mercado imobiliário, assim como sermos reconhecidos como a melhor opção para os nossos clientes. Para isso, fazemos sempre por manter um espírito inovador e de liderança que nos levará ao reconhecimento pela nossa excelência no mercado.
Valores
Os nossos valores são sempre o conjunto das nossas atitudes e crenças, que envolvem todas as pessoas da organização, para que, em uníssono, consigamos atingir os resultados de excelência a que nos propomos sempre que são baseados na Qualidade, Profissionalismo, Responsabilidade, Respeito e Inovação.
Imóvel com elevado potencial para projeto habitacional ou turístico, beneficiando de excelente exposição solar, bons acessos e proximidade ao centro urbano.
Características Principais:
✔ Conjunto de 4 ruínas
✔ Construções em pedra para reconstrução total
✔ Terreno com área ampla e potencial construtivo (sujeito a consulta camarária)
✔ Excelente exposição solar
✔ Bons acessos rodoviários
✔ Localização tranquila e envolvente natural
✔ A poucos minutos do centro de Arouca
Enquadramento e Potencial:
Ideal para:
Habitação própria permanente
Segunda habitação / casa de campo
Projeto de turismo rural ou alojamento local
Investimento para revenda após reabilitação
A localização combina a tranquilidade do meio rural com proximidade a comércio, serviços e principais vias de acesso.
Informação Adicional:
Imóvel vendido no estado atual
Viabilidade construtiva sujeita a confirmação junto da Câmara Municipal de Arouca
Área do terreno _ 1371,53 m2
Área coberta _ 353 m2
Área descoberta _ 1018,53 m2
A CASA DA PORTELA Imobiliária – É uma empresa de mediação imobiliária e Intermediação de Crédito criada em 2013. Os seus sócios fundadores possuem um sólido conhecimento acumulado desde 1994 sobre o mercado imobiliário, mantendo-se atentos às suas tendências e evolução, e com uma Intermediação de Crédito registado no Banco de Portugal com o nº 0004889.
A empresa começou por centrar-se na região do Grande Porto, conseguindo, desde o início, um grande volume de transações. O sucesso do modelo de negócio fez com que a marca Casa da Portela imobiliária chegasse em 2022 a Vila Nova de Famalicão. A Casa da Portela imobiliária pretende valorizar o trabalho dos consultores e prestar um serviço de excelência aos seus clientes, proporcionando um serviço de qualidade e tranquilidade, de forma a realizar bons negócios, garantindo a satisfação dos nossos clientes e parceiros. Para atingir esse propósito, dispomos de uma equipa multidisciplinar de profissionais qualificados, com vasta experiência em mediação imobiliária que nos permite apresentar e sugerir as melhores alternativas para os seus objetivos de venda, de arrendamento, ou de investimento imobiliário.
Possuímos uma rede de contatos privilegiada que nos permite potenciar a divulgação, a gestão e a concretização de negócio do seu imóvel em vários formatos.
3 Pilares fundamentais da Casa da Portela:
Missão
A nossa missão é orientar os nossos objetivos excecionais (financeiros, humanos e sociais) na nossa organização e uni-los aos nossos não menos excecionais clientes, atendendo sempre às suas necessidades, desejos e expectativas. A Casa da Portela imobiliária nasceu para que fosse possível prestar um acompanhamento e apoio contínuos, explicação e esclarecimento de dúvidas, sobre todo o processo de compra, venda ou arrendamento de imóveis em Portugal. A concretização de tudo isto faz com que a nossa máxima ambição seja sermos os melhores no mercado imobiliário.
Visão
A nossa visão é sermos a empresa de referência no mercado imobiliário, assim como sermos reconhecidos como a melhor opção para os nossos clientes. Para isso, fazemos sempre por manter um espírito inovador e de liderança que nos levará ao reconhecimento pela nossa excelência no mercado.
Valores
Os nossos valores são sempre o conjunto das nossas atitudes e crenças, que envolvem todas as pessoas da organização, para que, em uníssono, consigamos atingir os resultados de excelência a que nos propomos sempre que são baseados na Qualidade, Profissionalismo, Responsabilidade, Respeito e Inovação.
Localização
Arouca e Burgo, Arouca, Aveiro
Informação do anúncio
ID do anúncio
1671712
Referência Externa
1122861
Atualizado em
25/04/2026 23:32:47
Anunciante
Chamada para a rede fixa nacional
Casa da Portela
AMI 10340
Referência do imóvel:
1122861
Moradia T4 para Venda em Arouca e Burgo