Voltar
Terreno para Venda em Ovar, São João, Arada e São Vicente de Pereira Jusã Foto 1
Terreno para Venda em Ovar, São João, Arada e São Vicente de Pereira Jusã Foto 2
Terreno para Venda em Ovar, São João, Arada e São Vicente de Pereira Jusã Foto 3
Terreno para Venda em Ovar, São João, Arada e São Vicente de Pereira Jusã Foto 4
Terreno para Venda em Ovar, São João, Arada e São Vicente de Pereira Jusã Foto 5

Terreno para Venda em Ovar, São João, Arada e São Vicente de Pereira Jusã

65.000 €

Tipo
Terreno
Negócio
Venda
Área Bruta
750 m²
Certificado Energético
N/A
Área do Terreno
750 m²

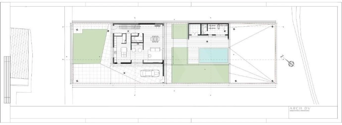
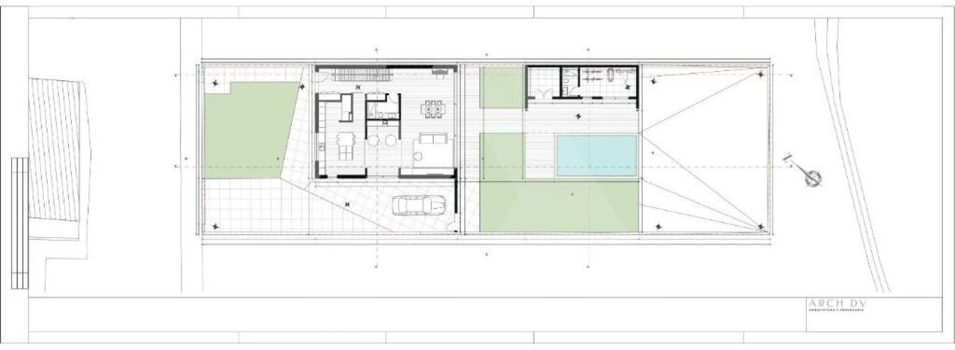
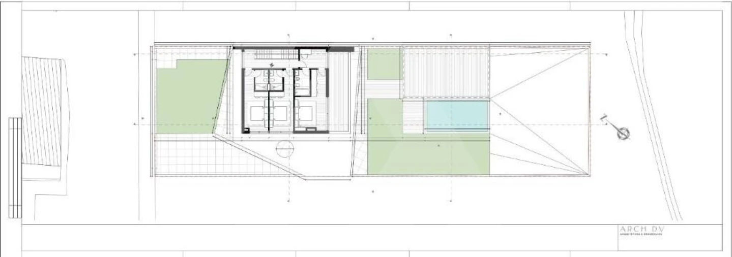
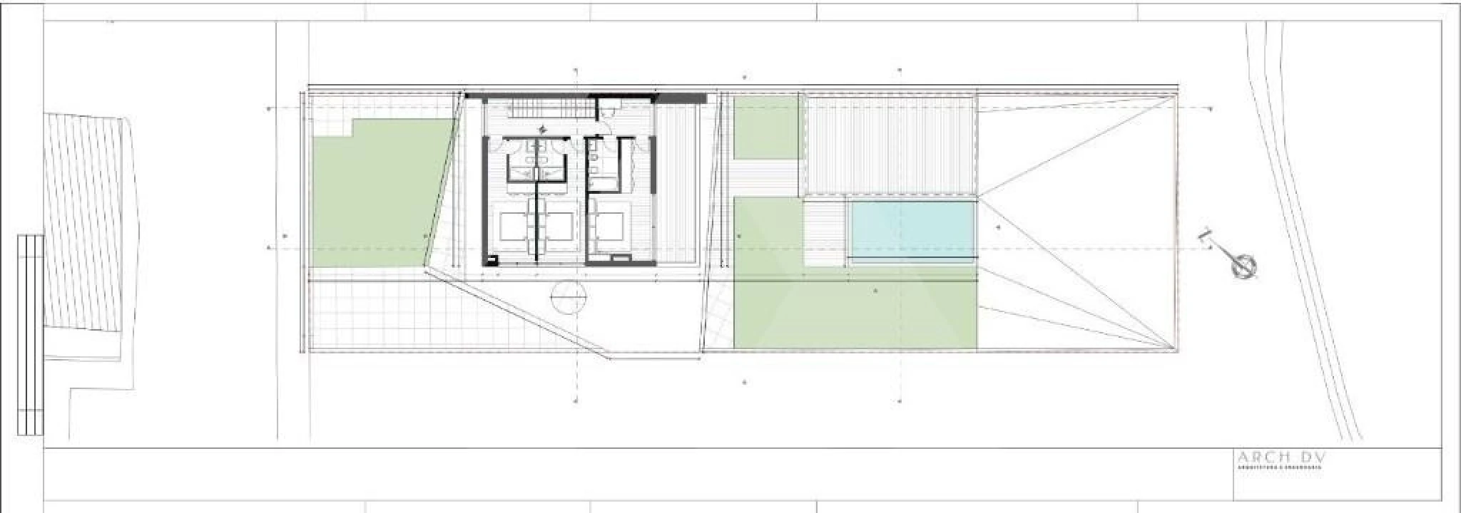
LOTE DE TERRENO URBANO PARA CONSTRUÇÃO COM PROJETO – Ovar

Lote de terreno urbano para construção, situado na zona da Ribeira, em Ovar, com 750 m² de área total e aproximadamente 15 metros de frente. Uma excelente oportunidade para quem procura construir a sua moradia própria numa zona tranquila e residencial, próxima da ria e a poucos minutos do centro da cidade.
O lote possui projeto para construção de moradia unifamiliar de linhas contemporâneas, com excelentes áreas, composta por rés do chão e primeiro andar, tipologia T3 (três suítes), 125 m² de área de implantação e 225 m² de área bruta de construção.
O projeto privilegia a zona social no rés do chão, reservando o primeiro piso para a área mais privativa, garantindo funcionalidade, conforto e uma organização harmoniosa dos espaços. No exterior, destaca-se o amplo espaço destinado ao lazer e convívio em família, estando ainda projetado um anexo com 30 m².
No terreno já foi executado um furo artesiano, permitindo o abastecimento de água para rega, manutenção do jardim ou eventual apoio a futura piscina — uma mais-valia diferenciadora.
Inserido numa zona calma, mas com ótimos acessos, encontra-se próximo de comércio, serviços, escolas e da A29, permitindo ligações rápidas a cidades como Porto e Aveiro.
Ideal para famílias que valorizam espaço, tranquilidade e qualidade de vida, sem abdicar da proximidade aos principais centros urbanos.
Se procura um lugar especial para construir a sua casa de família, esta pode ser a oportunidade certa para si.
Agende uma reunião para conhecer melhor este projeto.
Fale comigo. Eu ajudo a decidir!

Localização

Ovar, São João, Arada e São Vicente de Pereira Jusã, Ovar, Aveiro

Informação do anúncio

ID do anúncio 1673923
Referência Externa 107.1274
Atualizado em 19/05/2026 23:23:26
Abel Andrade | Mediação Imobiliária AMI 14393
Referência do imóvel: 107.1274
Phone
Chamada para a rede fixa nacional
Abel Andrade | Mediação Imobiliária AMI 14393
Referência do imóvel: 107.1274
Phone
Chamada para a rede fixa nacional
1 / 12
Terreno para Venda em Ovar, São João, Arada e São Vicente de Pereira Jusã Foto 1
Terreno para Venda em Ovar, São João, Arada e São Vicente de Pereira Jusã Foto 2
Terreno para Venda em Ovar, São João, Arada e São Vicente de Pereira Jusã Foto 3
Terreno para Venda em Ovar, São João, Arada e São Vicente de Pereira Jusã Foto 4
Terreno para Venda em Ovar, São João, Arada e São Vicente de Pereira Jusã Foto 5
Terreno para Venda em Ovar, São João, Arada e São Vicente de Pereira Jusã Foto 6
Terreno para Venda em Ovar, São João, Arada e São Vicente de Pereira Jusã Foto 7
Terreno para Venda em Ovar, São João, Arada e São Vicente de Pereira Jusã Foto 8
Terreno para Venda em Ovar, São João, Arada e São Vicente de Pereira Jusã Foto 9
Terreno para Venda em Ovar, São João, Arada e São Vicente de Pereira Jusã Foto 10
Terreno para Venda em Ovar, São João, Arada e São Vicente de Pereira Jusã Foto 11
Terreno para Venda em Ovar, São João, Arada e São Vicente de Pereira Jusã Foto 12
Clicky