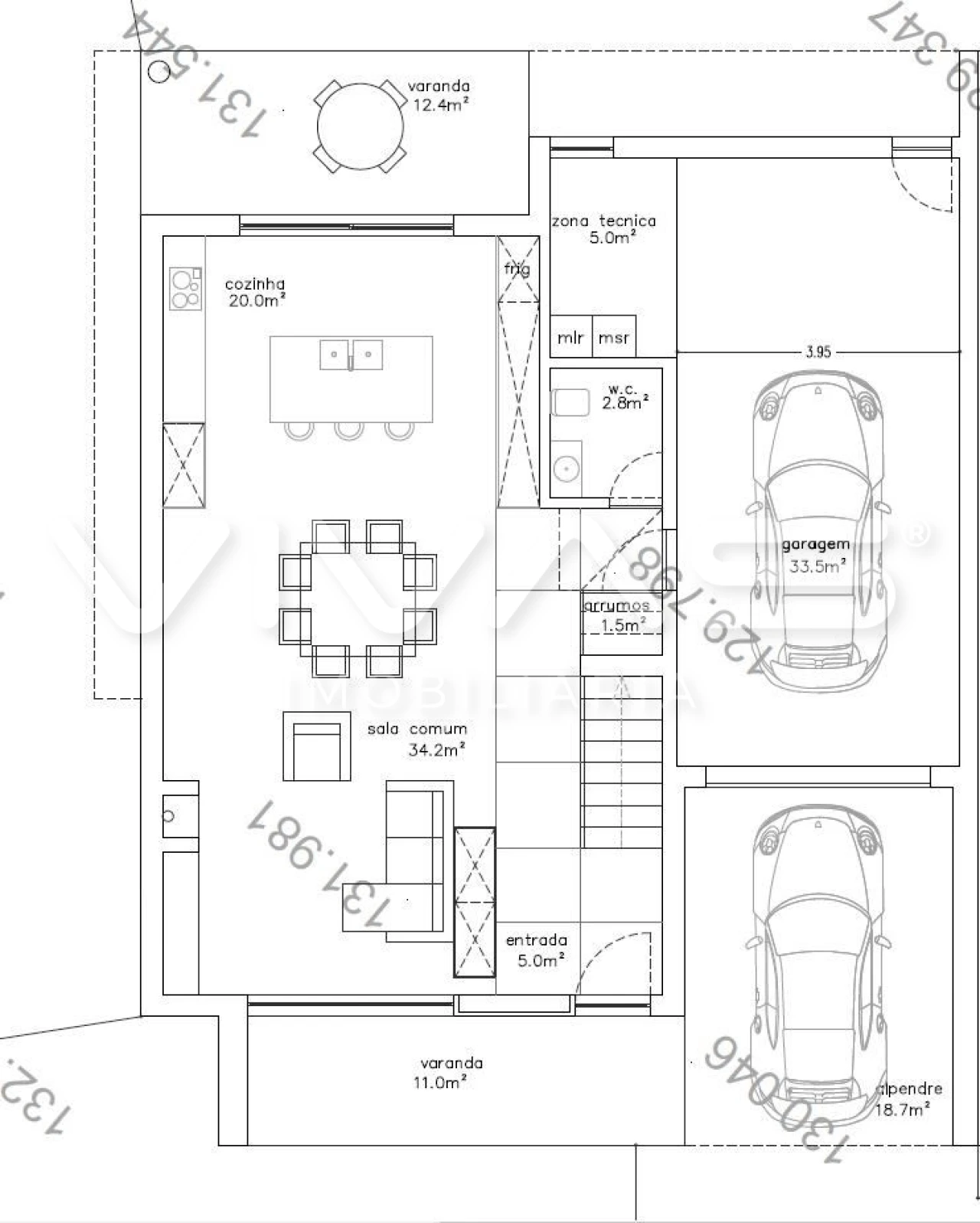
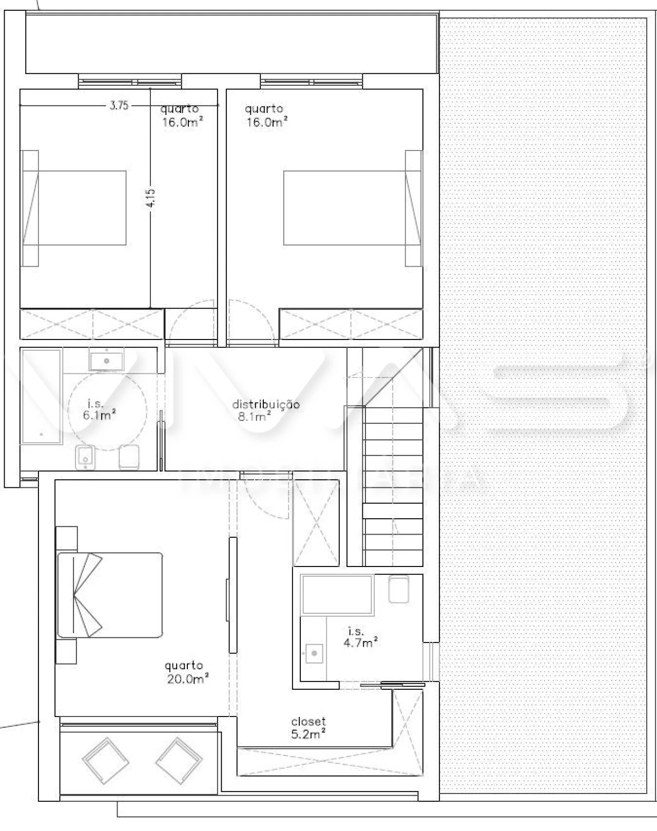
Moradia T3 para Venda em Freiriz
349.000 €
Tipo
Moradia
Negócio
Venda
Quartos
3
Área Bruta
212 m²
Área Útil
177 m²
Condição
Usado
Certificado Energético
Área do Terreno
311 m²
Moradia em Banda T3 Venda em Freiriz,Vila Verde
Moradia T3 em Banda em Freiriz.
Empreendimento de Moradias T3 Modernas, implantadas em lotes de terreno com aproximadamente 311 m², concebidas para oferecer conforto, privacidade e qualidade de vida.
Com acabamentos modernos e áreas generosas, encontram-se equipadas com bomba de calor e pré-instalação de ar condicionado.
Inseridas numa zona residencial calma, com proximidade a comércio e serviços.
São José Villas — onde o conforto e a tranquilidade se encontram.
Em fase de projeto.
Vila Verde é considerada atualmente um dos melhores concelhos de Braga, pela sua beleza natural, tranquilidade, proximidade de Braga e sobretudo por ser tão completo e independente.
Contacte a sua Agência VIVAS Imobiliária, para saber mais.
Somos uma equipa com mais de 20 anos de Know-how no setor, o que nos permite compreender as necessidades das famílias que acompanhamos neste processo importante das suas vidas.
Estamos prontos para ajudá-lo a encontrar o seu lar!
Dispomos de diversas ferramentas de Marketing e Comunicação, permitindo ir ao encontro de um maior número de potenciais clientes.
Outros serviços que lhe podem interessar: Venda, Compra, Arrendamento, Avaliação de Imóveis, Gestão Processual, Realização de contratos (Compra e Venda, Arrendamento, entre outros), Aconselhamento e orientação na obtenção de Credito Habitação, Apoio nos serviços de contratação junto dos fornecedores, energia, gás, água e certificação energética, entre outros.
Real City – Mediação Imobiliária, Lda. | AMI 8834
Empreendimento de Moradias T3 Modernas, implantadas em lotes de terreno com aproximadamente 311 m², concebidas para oferecer conforto, privacidade e qualidade de vida.
Com acabamentos modernos e áreas generosas, encontram-se equipadas com bomba de calor e pré-instalação de ar condicionado.
Inseridas numa zona residencial calma, com proximidade a comércio e serviços.
São José Villas — onde o conforto e a tranquilidade se encontram.
Em fase de projeto.
Vila Verde é considerada atualmente um dos melhores concelhos de Braga, pela sua beleza natural, tranquilidade, proximidade de Braga e sobretudo por ser tão completo e independente.
Contacte a sua Agência VIVAS Imobiliária, para saber mais.
Somos uma equipa com mais de 20 anos de Know-how no setor, o que nos permite compreender as necessidades das famílias que acompanhamos neste processo importante das suas vidas.
Estamos prontos para ajudá-lo a encontrar o seu lar!
Dispomos de diversas ferramentas de Marketing e Comunicação, permitindo ir ao encontro de um maior número de potenciais clientes.
Outros serviços que lhe podem interessar: Venda, Compra, Arrendamento, Avaliação de Imóveis, Gestão Processual, Realização de contratos (Compra e Venda, Arrendamento, entre outros), Aconselhamento e orientação na obtenção de Credito Habitação, Apoio nos serviços de contratação junto dos fornecedores, energia, gás, água e certificação energética, entre outros.
Real City – Mediação Imobiliária, Lda. | AMI 8834
Localização
Freiriz, Vila Verde, Braga
Informação do anúncio
ID do anúncio
1674301
Referência Externa
01-3783
Atualizado em
13/03/2026 03:11:41
Anunciante
Chamada para a rede fixa nacional
Vivas Imobiliária
AMI 8834
Referência do imóvel:
01-3783
Moradia T3 para Venda em Freiriz