Moradia T4 para Venda em Almancil
2.970.000 €
Tipo
Moradia
Negócio
Venda
Quartos
4
Casas de Banho
5
Área Bruta
300 m²
Área Útil
210 m²
Condição
Novo
Certificado Energético
A+
Área do Terreno
2130 m²
Moradia Térrea T4 no Algarve com Piscina, Vista Panorâmica e Elevada Eficiência Energética
Procura uma casa moderna e sustentável no sul de Portugal?
Apresentamos esta moradia independente T4 de piso único localizada no Algarve.
Com um design focado na arquitetura bioclimática e numa forte consciência ecológica, esta propriedade inserida num lote espaçoso oferece vista panorâmica e excelente luminosidade natural, potenciada por amplas janelas e claraboias.
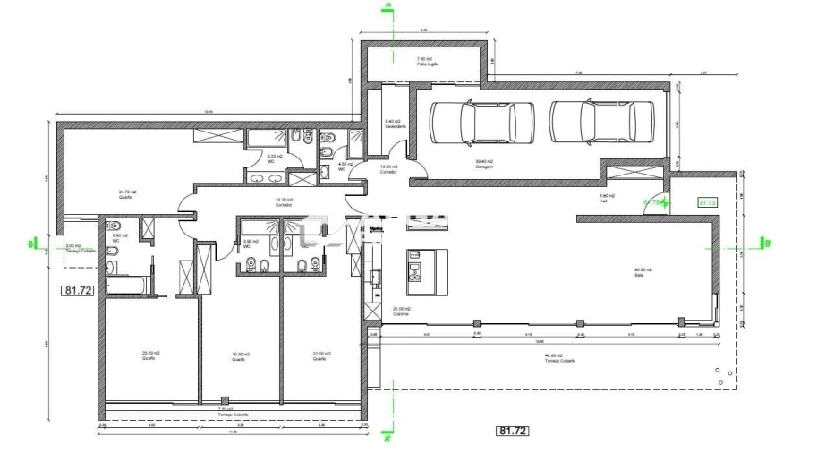
Distribuição Interior: Espaço e Funcionalidade A zona social da moradia foi desenhada para maximizar o convívio, apresentando uma ampla sala em formato open space que se integra harmoniosamente com uma cozinha moderna, totalmente equipada com eletrodomésticos topo de gama. Esta área é complementada por uma lavandaria prática, com acesso a um pátio privativo, e uma casa de banho social.
Na zona privativa, o imóvel dispõe de 4 suítes. Todos os quartos oferecem áreas generosas, casas de banho privativas de design contemporâneo e portas e roupeiros em madeira maciça, que aliam a estética à durabilidade.
Para total conveniência, a propriedade inclui uma garagem fechada com capacidade para 4 viaturas, além de uma zona de estacionamento exterior (car park) para visitantes.
Área Exterior: Piscina e Jardim de Baixo Consumo O espaço exterior foi planeado para tirar o máximo partido do clima do Algarve com o mínimo de manutenção. O jardim paisagístico é composto por flora adaptada e de baixo consumo hídrico.
O destaque do exterior é a piscina, rodeada por terraços amplos ideais para refeições ao ar livre ou banhos de sol. Esta zona de lazer conta com uma casa de banho de apoio à piscina, espaços de arrumação, sistema de som ambiente e uma excelente vista sobre a cidade. Toda a propriedade está protegida por um sistema de videovigilância (CCTV) e alarme de intrusão.
Tecnologia, Climatização e Sustentabilidade Esta moradia destaca-se no mercado imobiliário do Algarve pela sua elevada eficiência energética e sistemas avançados de conforto:
Climatização: Equipada com piso radiante, bomba de calor reversível com sistema de recirculação e Ventilação Mecânica Controlada (VMC) com recuperador de calor.
Energias Renováveis: Sistema duplo de painéis solares (térmicos) e painéis fotovoltaicos para produção de energia limpa.
Gestão Hídrica: Sistema de reaproveitamento de águas pluviais e captação própria (furo de água com tratamento específico) dedicado à rega do jardim.
Oportunidade de Investimento Adicional Existe ainda a possibilidade de adquirir um lote de terreno nas proximidades da moradia, representando uma excelente oportunidade de expansão ou valorização futura.
Um Marco na História Imobiliária Portuguesa
Esta não é apenas uma propriedade de excelência; é um marco histórico. Este foi o primeiro imóvel em Portugal a ser oficialmente classificado como "Classe A+ Carbono Zero".
Ao adquirir este imóvel, não está apenas a investir em conforto máximo e faturas de energia nulas. Esta é uma peça de vanguarda e exclusividade absoluta no mercado nacional, garantindo um nível de prestígio e uma capacidade de valorização futura que nenhuma outra propriedade pode reclamar.
Agende já a sua visita e venha conhecer esta moradia sustentável no Algarve!
AlgarveProperty.com - AMI: 2196 - T.: 00351 289310310
Apresentamos esta moradia independente T4 de piso único localizada no Algarve.
Com um design focado na arquitetura bioclimática e numa forte consciência ecológica, esta propriedade inserida num lote espaçoso oferece vista panorâmica e excelente luminosidade natural, potenciada por amplas janelas e claraboias.
Distribuição Interior: Espaço e Funcionalidade A zona social da moradia foi desenhada para maximizar o convívio, apresentando uma ampla sala em formato open space que se integra harmoniosamente com uma cozinha moderna, totalmente equipada com eletrodomésticos topo de gama. Esta área é complementada por uma lavandaria prática, com acesso a um pátio privativo, e uma casa de banho social.
Na zona privativa, o imóvel dispõe de 4 suítes. Todos os quartos oferecem áreas generosas, casas de banho privativas de design contemporâneo e portas e roupeiros em madeira maciça, que aliam a estética à durabilidade.
Para total conveniência, a propriedade inclui uma garagem fechada com capacidade para 4 viaturas, além de uma zona de estacionamento exterior (car park) para visitantes.
Área Exterior: Piscina e Jardim de Baixo Consumo O espaço exterior foi planeado para tirar o máximo partido do clima do Algarve com o mínimo de manutenção. O jardim paisagístico é composto por flora adaptada e de baixo consumo hídrico.
O destaque do exterior é a piscina, rodeada por terraços amplos ideais para refeições ao ar livre ou banhos de sol. Esta zona de lazer conta com uma casa de banho de apoio à piscina, espaços de arrumação, sistema de som ambiente e uma excelente vista sobre a cidade. Toda a propriedade está protegida por um sistema de videovigilância (CCTV) e alarme de intrusão.
Tecnologia, Climatização e Sustentabilidade Esta moradia destaca-se no mercado imobiliário do Algarve pela sua elevada eficiência energética e sistemas avançados de conforto:
Climatização: Equipada com piso radiante, bomba de calor reversível com sistema de recirculação e Ventilação Mecânica Controlada (VMC) com recuperador de calor.
Energias Renováveis: Sistema duplo de painéis solares (térmicos) e painéis fotovoltaicos para produção de energia limpa.
Gestão Hídrica: Sistema de reaproveitamento de águas pluviais e captação própria (furo de água com tratamento específico) dedicado à rega do jardim.
Oportunidade de Investimento Adicional Existe ainda a possibilidade de adquirir um lote de terreno nas proximidades da moradia, representando uma excelente oportunidade de expansão ou valorização futura.
Um Marco na História Imobiliária Portuguesa
Esta não é apenas uma propriedade de excelência; é um marco histórico. Este foi o primeiro imóvel em Portugal a ser oficialmente classificado como "Classe A+ Carbono Zero".
Ao adquirir este imóvel, não está apenas a investir em conforto máximo e faturas de energia nulas. Esta é uma peça de vanguarda e exclusividade absoluta no mercado nacional, garantindo um nível de prestígio e uma capacidade de valorização futura que nenhuma outra propriedade pode reclamar.
Agende já a sua visita e venha conhecer esta moradia sustentável no Algarve!
AlgarveProperty.com - AMI: 2196 - T.: 00351 289310310
Localização
Almancil, Loulé, Faro
Informação do anúncio
ID do anúncio
1676338
Referência Externa
V268844M
Atualizado em
02/05/2026 00:33:36
Anunciante
Chamada para a rede fixa nacional
https://www.algarveproperty.com/
AMI 2196
Referência do imóvel:
V268844M
Consultor
Algarve Property .Com
Moradia T4 para Venda em Almancil
Vídeo