Terreno para Venda em São Domingos de Rana
1.100.000 €
Tipo
Terreno
Negócio
Venda
Área Útil
980 m²
Área do Terreno
980 m²
Descrição
Identificação do imóvel: ZMPT586251
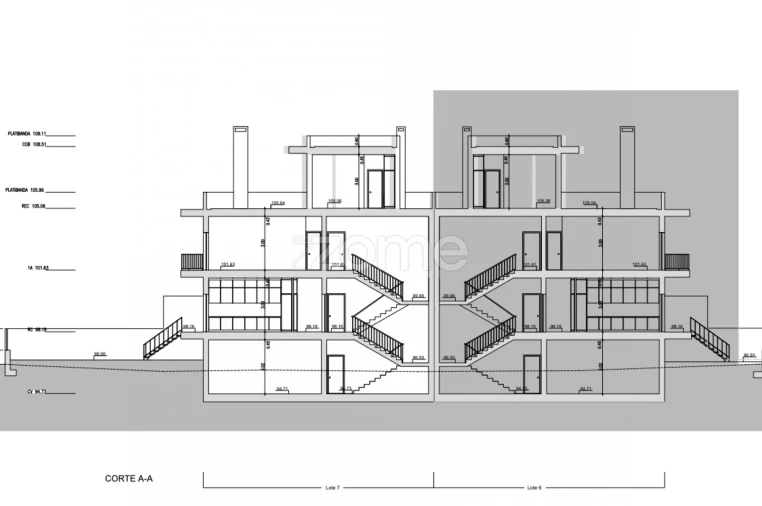
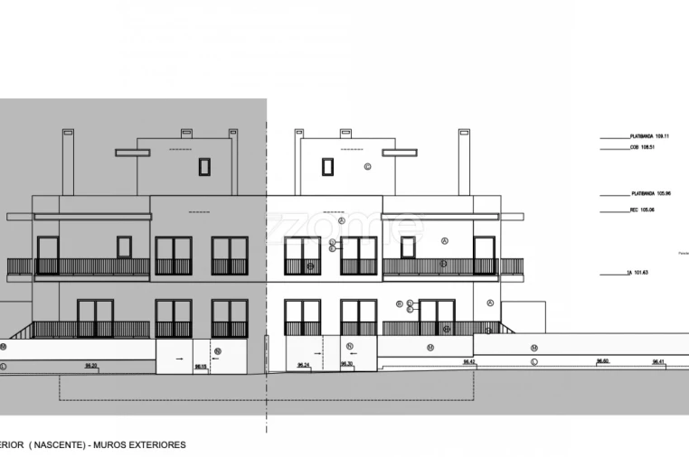
Projecto aprovado para promoção residencial - Cascais
Apresenta-se uma excelente oportunidade de investimento imobiliário na Abóboda, São Domingos de Rana, no concelho de Cascais: dois lotes de terreno com projeto de arquitetura aprovado e especialidades concluídas, permitindo iniciar construção praticamente de imediato e evitando o processo de licenciamento que normalmente pode demorar entre 18 e 24 meses.
Este projeto prevê a construção de dois edifícios residenciais modernos (Lote 6 e Lote 7) com um total de 8 apartamentos, combinando tipologias altamente procuradas no mercado com características diferenciadoras que permitem maximizar o valor de venda final.
Conceito do Empreendimento
O projeto foi concebido para criar um produto residencial diferenciado no mercado, combinando o conforto de apartamentos modernos com elementos normalmente associados a moradias.
Os apartamentos do rés-do-chão incluem jardins privativos e piscinas individuais, criando uma experiência de habitação exclusiva que permite posicionar estas unidades num segmento de mercado superior.
Nos pisos superiores encontram-se apartamentos T3 e T2, com layouts modernos, áreas bem distribuídas e possibilidade de configuração duplex em algumas unidades.
Distribuição das fracções
Rés-do-chão
- 4 apartamentos T2
- Jardins privativos
- Piscinas individuais
1º piso
- 2 apartamentos T3
- 2 apartamentos T2 com possibilidade de configuração duplex
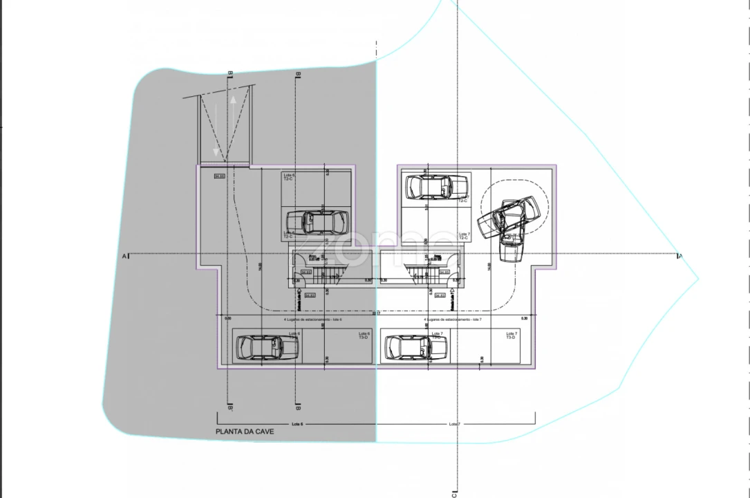
Estacionamento
O empreendimento oferece uma capacidade de estacionamento significativamente superior à média para projetos desta dimensão, garantindo conforto e conveniência para residentes e visitantes.
- 8 lugares de estacionamento em garagem subterrânea
- 10 lugares de estacionamento exteriores dentro do lote
Total de 18 lugares de estacionamento para apenas 8 apartamentos, correspondendo a mais de 2 lugares por fração, um rácio altamente valorizado no mercado residencial atual.
Esta característica constitui um importante fator diferenciador do projeto, aumentando a atratividade do empreendimento e o valor de mercado das frações.
Localização e acessibilidades
O empreendimento está localizado numa zona com forte dinâmica residencial e comercial, beneficiando de excelente visibilidade e proximidade a serviços.
Situa-se junto ao principal polo comercial da Abóboda, em frente a marcas de referência como:
- Burger King
- McDonald’s
- KFC
Além disso, encontra-se a curta distância de:
- Aldi
- Lidl
- Bancos
- CTT
- Complexo Desportivo da Abóboda
- Piscinas Municipais
A acessibilidade é excelente, com ligação rápida à Autoestrada A5, permitindo chegar:
- ao centro de Cascais em cerca de 15 minutos
- a Lisboa em cerca de 15 minutos
Esta localização oferece um equilíbrio ideal entre tranquilidade residencial e proximidade a serviços e acessos principais.
Eficiência energética e conforto
O projeto foi desenvolvido com foco em eficiência energética e conforto habitacional, incorporando soluções técnicas modernas:
- painéis solares térmicos
- bombas de calor de elevada eficiência
- sistema completo de ar condicionado
- caixilharia com corte térmico
- vidros duplos de elevado desempenho
Estas soluções contribuem para reduzir os custos energéticos e aumentar a valorização futura do empreendimento.
Qualidade de construção e acabamentos
O projeto prevê materiais e acabamentos contemporâneos de qualidade superior, incluindo:
- cozinhas modernas com bancadas em pedra natural
- carpintarias lacadas
- roupeiros embutidos
- pavimentos cerâmicos de grande formato nas zonas húmidas
- casas de banho com loiças suspensas
- bases de duche tipo walk-in
O objetivo é oferecer um produto final moderno, funcional e altamente competitivo no mercado residencial de Cascais.
Características do terreno
- Área total do terreno: 980 m²
- Área de implantação: 343 m²
- Área bruta de construção: 792 m²
- Dois lotes independentes (Lote 6 e Lote 7)
Principal vantagem para o investidor
O principal valor deste projeto reside no facto de estar totalmente aprovado, permitindo iniciar construção praticamente de imediato.
Isto elimina um dos maiores riscos e custos no desenvolvimento imobiliário: o longo processo de licenciamento.
Para promotores e investidores, esta característica representa:
- redução significativa do risco de desenvolvimento
- poupança de tempo (até 2 anos)
- maior previsibilidade financeira do projeto
Documentação disponível
Para análise por investidores ou promotores, encontra-se disponível um data room completo, incluindo:
- projeto completo de arquitetura
- especialidades técnicas
- alvará aprovado
- mapa de acabamentos
- certidão predial atualizada
Oportunidade de investimento
Este projeto representa uma oportunidade atrativa para promotores que procuram um empreendimento de média escala num dos concelhos com maior procura residencial da Grande Lisboa.
A combinação de projeto aprovado, localização estratégica, tipologias atrativas, piscinas privadas e uma oferta excecional de estacionamento cria um produto com forte potencial de valorização no mercado.
Projecto aprovado para promoção residencial - Cascais
Apresenta-se uma excelente oportunidade de investimento imobiliário na Abóboda, São Domingos de Rana, no concelho de Cascais: dois lotes de terreno com projeto de arquitetura aprovado e especialidades concluídas, permitindo iniciar construção praticamente de imediato e evitando o processo de licenciamento que normalmente pode demorar entre 18 e 24 meses.
Este projeto prevê a construção de dois edifícios residenciais modernos (Lote 6 e Lote 7) com um total de 8 apartamentos, combinando tipologias altamente procuradas no mercado com características diferenciadoras que permitem maximizar o valor de venda final.
Conceito do Empreendimento
O projeto foi concebido para criar um produto residencial diferenciado no mercado, combinando o conforto de apartamentos modernos com elementos normalmente associados a moradias.
Os apartamentos do rés-do-chão incluem jardins privativos e piscinas individuais, criando uma experiência de habitação exclusiva que permite posicionar estas unidades num segmento de mercado superior.
Nos pisos superiores encontram-se apartamentos T3 e T2, com layouts modernos, áreas bem distribuídas e possibilidade de configuração duplex em algumas unidades.
Distribuição das fracções
Rés-do-chão
- 4 apartamentos T2
- Jardins privativos
- Piscinas individuais
1º piso
- 2 apartamentos T3
- 2 apartamentos T2 com possibilidade de configuração duplex
Estacionamento
O empreendimento oferece uma capacidade de estacionamento significativamente superior à média para projetos desta dimensão, garantindo conforto e conveniência para residentes e visitantes.
- 8 lugares de estacionamento em garagem subterrânea
- 10 lugares de estacionamento exteriores dentro do lote
Total de 18 lugares de estacionamento para apenas 8 apartamentos, correspondendo a mais de 2 lugares por fração, um rácio altamente valorizado no mercado residencial atual.
Esta característica constitui um importante fator diferenciador do projeto, aumentando a atratividade do empreendimento e o valor de mercado das frações.
Localização e acessibilidades
O empreendimento está localizado numa zona com forte dinâmica residencial e comercial, beneficiando de excelente visibilidade e proximidade a serviços.
Situa-se junto ao principal polo comercial da Abóboda, em frente a marcas de referência como:
- Burger King
- McDonald’s
- KFC
Além disso, encontra-se a curta distância de:
- Aldi
- Lidl
- Bancos
- CTT
- Complexo Desportivo da Abóboda
- Piscinas Municipais
A acessibilidade é excelente, com ligação rápida à Autoestrada A5, permitindo chegar:
- ao centro de Cascais em cerca de 15 minutos
- a Lisboa em cerca de 15 minutos
Esta localização oferece um equilíbrio ideal entre tranquilidade residencial e proximidade a serviços e acessos principais.
Eficiência energética e conforto
O projeto foi desenvolvido com foco em eficiência energética e conforto habitacional, incorporando soluções técnicas modernas:
- painéis solares térmicos
- bombas de calor de elevada eficiência
- sistema completo de ar condicionado
- caixilharia com corte térmico
- vidros duplos de elevado desempenho
Estas soluções contribuem para reduzir os custos energéticos e aumentar a valorização futura do empreendimento.
Qualidade de construção e acabamentos
O projeto prevê materiais e acabamentos contemporâneos de qualidade superior, incluindo:
- cozinhas modernas com bancadas em pedra natural
- carpintarias lacadas
- roupeiros embutidos
- pavimentos cerâmicos de grande formato nas zonas húmidas
- casas de banho com loiças suspensas
- bases de duche tipo walk-in
O objetivo é oferecer um produto final moderno, funcional e altamente competitivo no mercado residencial de Cascais.
Características do terreno
- Área total do terreno: 980 m²
- Área de implantação: 343 m²
- Área bruta de construção: 792 m²
- Dois lotes independentes (Lote 6 e Lote 7)
Principal vantagem para o investidor
O principal valor deste projeto reside no facto de estar totalmente aprovado, permitindo iniciar construção praticamente de imediato.
Isto elimina um dos maiores riscos e custos no desenvolvimento imobiliário: o longo processo de licenciamento.
Para promotores e investidores, esta característica representa:
- redução significativa do risco de desenvolvimento
- poupança de tempo (até 2 anos)
- maior previsibilidade financeira do projeto
Documentação disponível
Para análise por investidores ou promotores, encontra-se disponível um data room completo, incluindo:
- projeto completo de arquitetura
- especialidades técnicas
- alvará aprovado
- mapa de acabamentos
- certidão predial atualizada
Oportunidade de investimento
Este projeto representa uma oportunidade atrativa para promotores que procuram um empreendimento de média escala num dos concelhos com maior procura residencial da Grande Lisboa.
A combinação de projeto aprovado, localização estratégica, tipologias atrativas, piscinas privadas e uma oferta excecional de estacionamento cria um produto com forte potencial de valorização no mercado.
Localização
Estrada Nacional 249-4 - LT 1
São Domingos de Rana, Cascais, Lisboa
A localização exacta do imóvel não está disponível. O mapa apresenta a zona aproximada.
Informação do anúncio
ID do anúncio
1684008
Referência Externa
ZMPT586251
Atualizado em
26/04/2026 06:04:10
Terreno para Venda em São Domingos de Rana