Apartamento T2 para Venda em Avanca
300.000 €
Tipo
Apartamento
Negócio
Venda
Ano de Construção
2027
Quartos
2
Casas de Banho
2
Área Bruta
109 m²
Área Útil
97 m²
Certificado Energético
A
Apartamentos T2 – Espaço e Conforto para o Dia a Dia
Os apartamentos T2 deste empreendimento foram concebidos para proporcionar mais espaço, conforto e funcionalidade, sendo ideais para quem procura uma habitação moderna no centro de Avanca, com todas as comodidades necessárias para o dia a dia.
Com 97 m² de área, estas frações destacam-se pela sua organização equilibrada e pela atenção aos detalhes, oferecendo ambientes amplos e luminosos que privilegiam o bem-estar e a qualidade de vida.
Cada T2 é composto por:
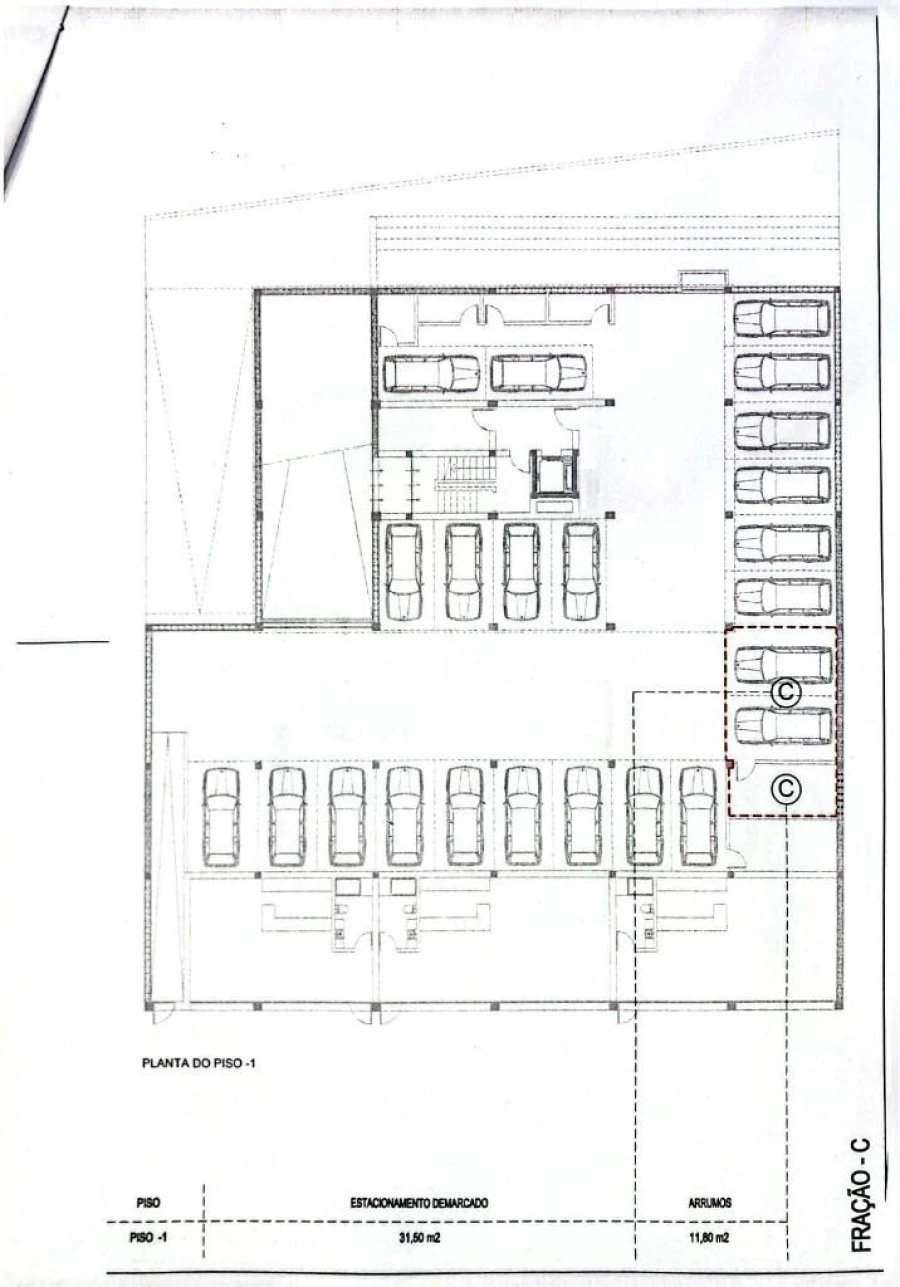
- 2 lugares de estacionamento demarcados no piso -1,
- Arrumos no piso -1, proporcionando espaço adicional de armazenamento
- Varanda privativa, ideal para momentos de lazer e descanso,
- Cozinha equipada com eletrodomésticos Teka,
- Ar condicionado em todas as divisões,
- Bomba de calor, garantindo maior eficiência energética,
- Caixilharia com vidro duplo e sistema oscilobatente,
- Pré-instalação de Carregador para carro elétrico, preparado para as necessidades da mobilidade atual.
Localizados numa zona central e privilegiada de Avanca, os apartamentos beneficiam da proximidade a escolas, comércio local, serviços essenciais, estação de comboio e à Nestlé Portugal, permitindo conciliar tranquilidade com conveniência.
Integrados num edifício de arquitetura contemporânea e construção nova, os T2 foram pensados para quem valoriza espaço, conforto e qualidade, tornando-se uma excelente opção tanto para habitação própria como para investimento imobiliário.
? Conclusão prevista: Junho de 2027
Uma oportunidade para viver com qualidade, modernidade e centralidade no coração de Avanca.
Descubra todos os detalhes e apaixone-se ao vivo.
✅ Agende já a sua visita com a MUDDA i9 e descubra todos os detalhes deste espaço.
Visite www.mudda.me, para conhecer mais imóveis na região.
_________________________________________________________________________________________________________________________________________________
Na MUDDA i9, cada casa representa uma mudança importante na vida de alguém. Por isso, oferecemos acompanhamento próximo, transparente e totalmente personalizado, combinando tecnologia, inovação e experiência, para que todo o processo decorra com confiança e tranquilidade. Somos uma marca moderna e diferenciadora, dedicada a tornar a sua jornada imobiliária mais simples, rápida e eficiente.
Com 97 m² de área, estas frações destacam-se pela sua organização equilibrada e pela atenção aos detalhes, oferecendo ambientes amplos e luminosos que privilegiam o bem-estar e a qualidade de vida.
Cada T2 é composto por:
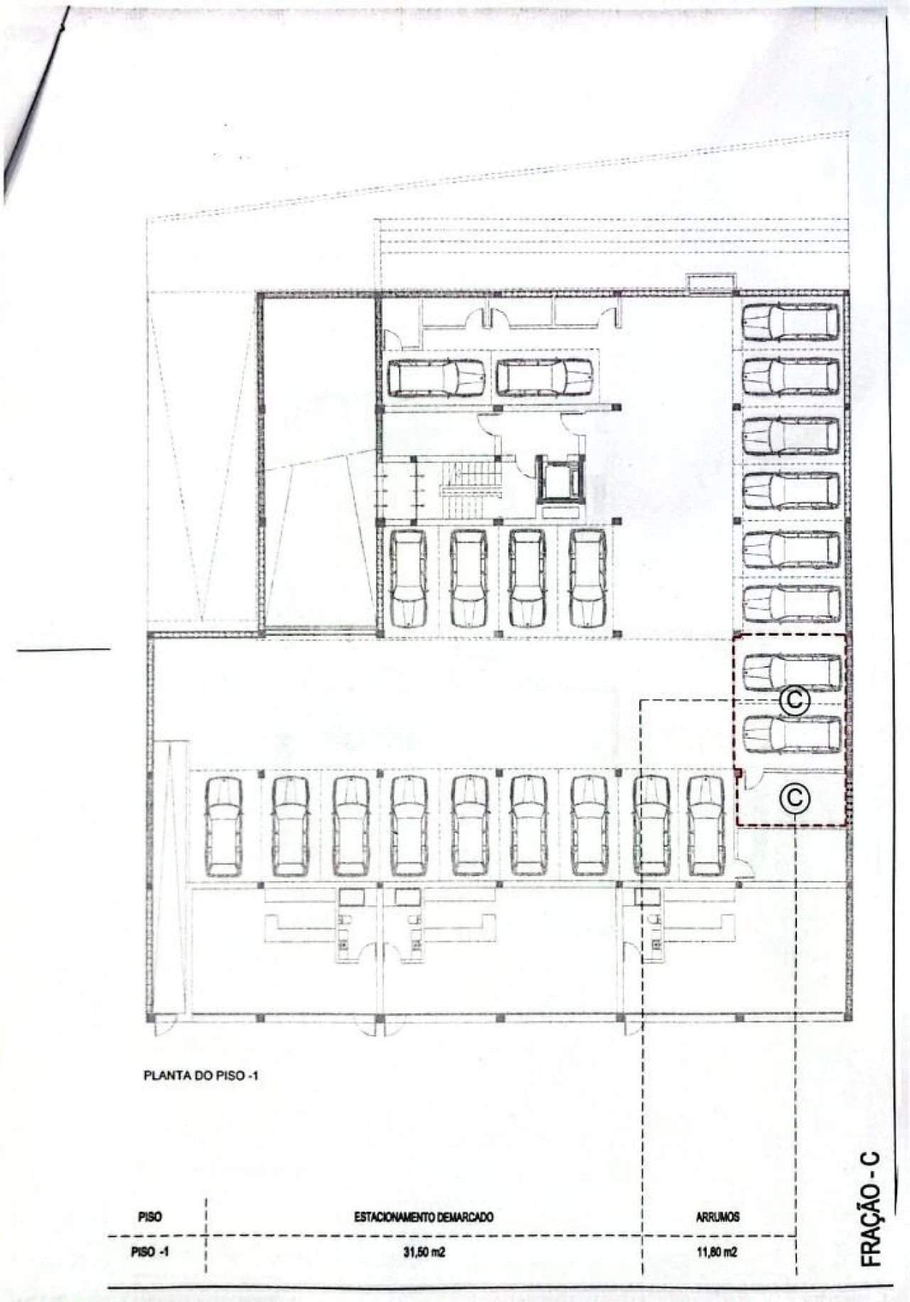
- 2 lugares de estacionamento demarcados no piso -1,
- Arrumos no piso -1, proporcionando espaço adicional de armazenamento
- Varanda privativa, ideal para momentos de lazer e descanso,
- Cozinha equipada com eletrodomésticos Teka,
- Ar condicionado em todas as divisões,
- Bomba de calor, garantindo maior eficiência energética,
- Caixilharia com vidro duplo e sistema oscilobatente,
- Pré-instalação de Carregador para carro elétrico, preparado para as necessidades da mobilidade atual.
Localizados numa zona central e privilegiada de Avanca, os apartamentos beneficiam da proximidade a escolas, comércio local, serviços essenciais, estação de comboio e à Nestlé Portugal, permitindo conciliar tranquilidade com conveniência.
Integrados num edifício de arquitetura contemporânea e construção nova, os T2 foram pensados para quem valoriza espaço, conforto e qualidade, tornando-se uma excelente opção tanto para habitação própria como para investimento imobiliário.
? Conclusão prevista: Junho de 2027
Uma oportunidade para viver com qualidade, modernidade e centralidade no coração de Avanca.
Descubra todos os detalhes e apaixone-se ao vivo.
✅ Agende já a sua visita com a MUDDA i9 e descubra todos os detalhes deste espaço.
Visite www.mudda.me, para conhecer mais imóveis na região.
_________________________________________________________________________________________________________________________________________________
Na MUDDA i9, cada casa representa uma mudança importante na vida de alguém. Por isso, oferecemos acompanhamento próximo, transparente e totalmente personalizado, combinando tecnologia, inovação e experiência, para que todo o processo decorra com confiança e tranquilidade. Somos uma marca moderna e diferenciadora, dedicada a tornar a sua jornada imobiliária mais simples, rápida e eficiente.
Localização
Avanca, Estarreja, Aveiro
Informação do anúncio
ID do anúncio
1685842
Referência Externa
MUDDA.2692C.19923
Atualizado em
25/04/2026 23:38:11
Anunciante
Chamada para a rede fixa nacional
MUDDA i9
AMI 19923
Referência do imóvel:
MUDDA.2692C.19923
Apartamento T2 para Venda em Avanca