Apartamento T3 para Venda em Lourinhã e Atalaia
525.000 €
Tipo
Apartamento
Negócio
Venda
Ano de Construção
2026
Quartos
3
Casas de Banho
3
Área Bruta
167 m²
Área Útil
145 m²
Condição
Novo
Certificado Energético
A+
Apartamento T3 | Terraço | Contemporâneo | Lourinhã
Apartamento Premium T3 onde a eficiência e o espaço se encontram na Lourinhã.
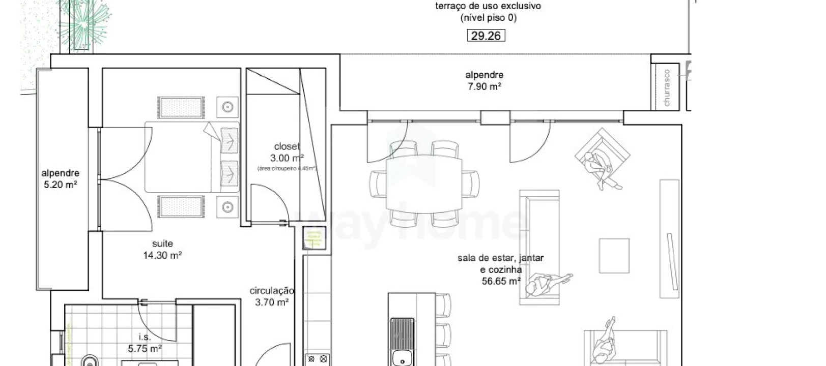
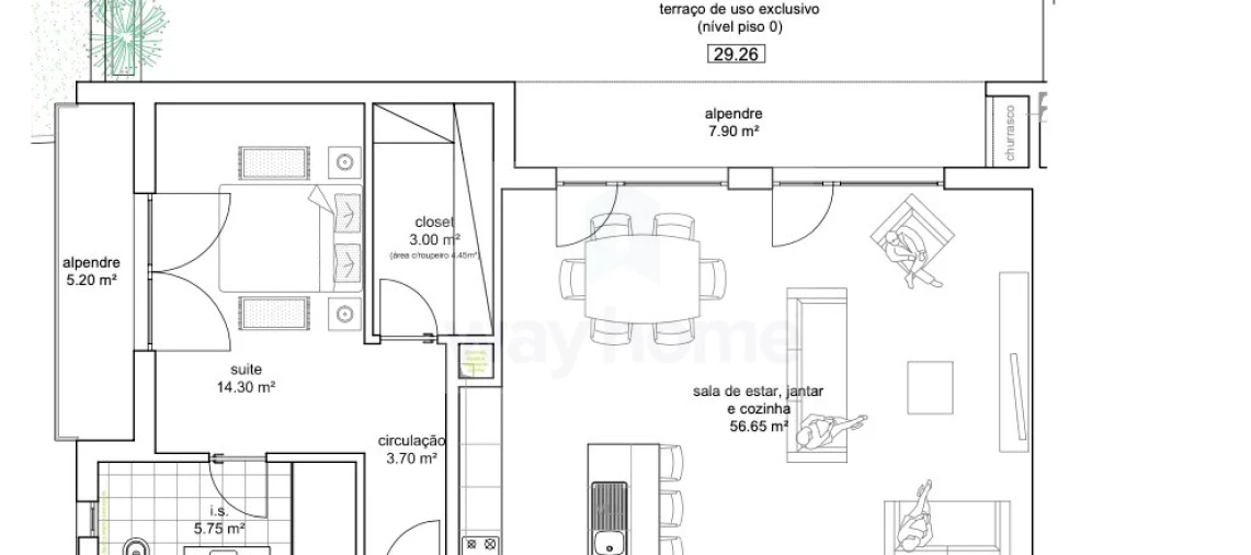
Se procura uma casa que combine amplitude, tecnologia e um estilo de vida ligado ao exterior, este apartamento T3 com 145,2 m² de área útil é a resposta. Localizado no piso térreo, este imóvel redefine o conceito de conforto moderno com uma planta inteligente e funcional.
Amplitude e design onde o conforto ganha dimensão
A zona social é o eixo deste imóvel com um open space de 56,65 m², que integra harmoniosamente a sala de estar, a zona de jantar e uma cozinha moderna com ilha central totalmente equipada. É o espaço ideal para quem valoriza a convivência e a luz natural e perfeito para receber convidados.
A área privada foi pensada para proporcionar o máximo bem-estar e conforto.
1 Suite Master 14,30 m² com closet privativo 3,00 m² e acesso direto a um alpendre exclusivo.
2 Quartos amplos de 13,15 m² e 14,60 m², ambos com roupeiros embutidos.
3 Instalações Sanitárias: Uma privativa na suite, uma completa de apoio aos quartos e uma social junto ao hall.
Zona Técnica: Espaço independente para tratamento de roupa 4,95 m² com ligação ao estendal exterior e bomba de calor.
Um Refúgio Exterior Privativo
A transição entre o interior e o exterior é fluida, oferecendo uma liberdade rara em ambiente de apartamento:
Terraço e Logradouro: Áreas generosas para criar o seu jardim, zona de lazer ou horta urbana.
Alpendres de7,90 m² e 5,20 m², espaços cobertos que permitem desfrutar do ar livre em qualquer estação.
Zona de Barbecue: Estrutura integrada para momentos gastronómicos com família e amigos.
Tecnologia, conforto e eficiência classe A+
Climatização: Ar condicionado em todas as divisões e Bomba de Calor para águas quentes.
Qualidade do Ar: Sistema de Ventilação Mecânica Controlada (VMC) de duplo fluxo, renovando o ar sem perder temperatura.
Isolamento: Caixilharia premium Schüco com vidro duplo e proteção solar.
Ambiente: Sistema de iluminação com dimmer para personalizar a intensidade da luz.
Conveniência e Localização
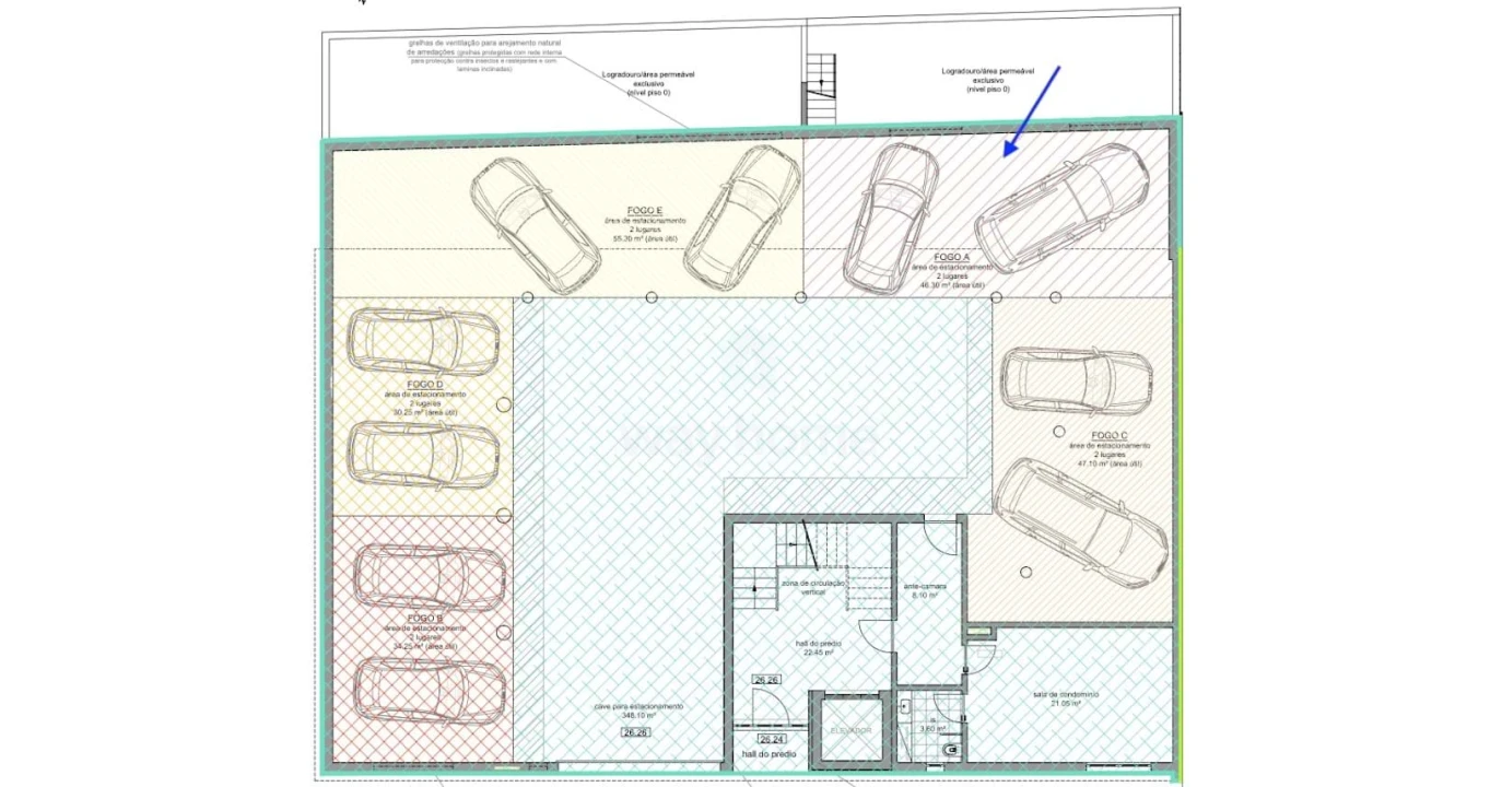
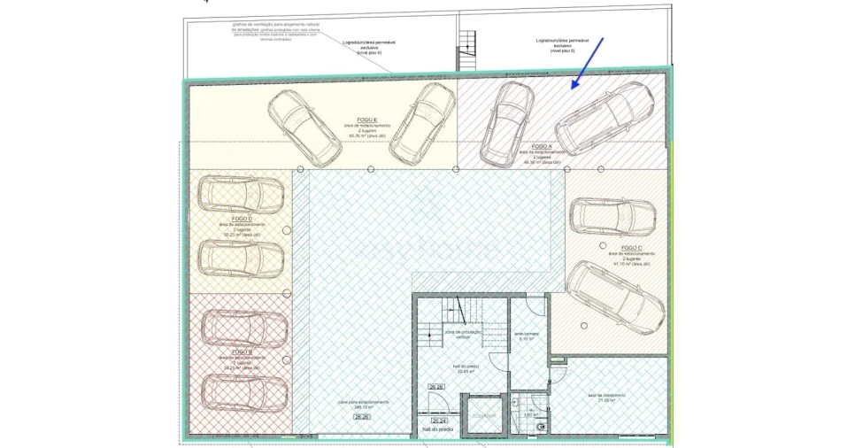
Estacionamento: Lugar coberto em cave com 46,3 m², garantindo espaço para dois carros e arrumação extra.
Lourinhã: Localização privilegiada a apenas 2,4 km da costa, com a praia da Areia branca, entre outras, unindo a tranquilidade da natureza à proximidade de Lisboa aproximadamente 50 minutos.
A qualidade de vida que sempre idealizou está aqui. Venha conhecer e agende a sua visita com Fátima isabel.
Nota: A informação disponibilizada, ainda que precisa, não dispensa a sua confirmação, nem poderá ser considerada vinculativa.
A Way Home é uma empresa nacional, especializada em mediação imobiliária, focada nas necessidades do consultor e do cliente.
Um projeto que nasceu da vontade de ser e fazer diferente, que junta diferentes experiências e competências adquiridas ao longo de mais de 20 anos em meio corporativo e de mais de 10 anos no ramo imobiliário, em diferentes marcas e modelos de negócio.
Queremos fomentar uma forte cultura interna, incluindo os consultores nas decisões importantes da empresa, acompanhando de perto as suas vivências do dia-a-dia, fomentando o espírito de equipa e o compromisso com a marca, acreditamos que assim, teremos um impacto muito positivo nos clientes.
Apostamos na formação e no acompanhamento diferenciado e personalizado, oferecemos uma grande diversidade de serviços e muita flexibilidade no dia-a-dia dos consultores, tudo para os ajudar a desenvolver o seu negócio.
Fazemos parcerias 50/50 com todas as agências com licença AMI válida.
Se procura uma casa que combine amplitude, tecnologia e um estilo de vida ligado ao exterior, este apartamento T3 com 145,2 m² de área útil é a resposta. Localizado no piso térreo, este imóvel redefine o conceito de conforto moderno com uma planta inteligente e funcional.
Amplitude e design onde o conforto ganha dimensão
A zona social é o eixo deste imóvel com um open space de 56,65 m², que integra harmoniosamente a sala de estar, a zona de jantar e uma cozinha moderna com ilha central totalmente equipada. É o espaço ideal para quem valoriza a convivência e a luz natural e perfeito para receber convidados.
A área privada foi pensada para proporcionar o máximo bem-estar e conforto.
1 Suite Master 14,30 m² com closet privativo 3,00 m² e acesso direto a um alpendre exclusivo.
2 Quartos amplos de 13,15 m² e 14,60 m², ambos com roupeiros embutidos.
3 Instalações Sanitárias: Uma privativa na suite, uma completa de apoio aos quartos e uma social junto ao hall.
Zona Técnica: Espaço independente para tratamento de roupa 4,95 m² com ligação ao estendal exterior e bomba de calor.
Um Refúgio Exterior Privativo
A transição entre o interior e o exterior é fluida, oferecendo uma liberdade rara em ambiente de apartamento:
Terraço e Logradouro: Áreas generosas para criar o seu jardim, zona de lazer ou horta urbana.
Alpendres de7,90 m² e 5,20 m², espaços cobertos que permitem desfrutar do ar livre em qualquer estação.
Zona de Barbecue: Estrutura integrada para momentos gastronómicos com família e amigos.
Tecnologia, conforto e eficiência classe A+
Climatização: Ar condicionado em todas as divisões e Bomba de Calor para águas quentes.
Qualidade do Ar: Sistema de Ventilação Mecânica Controlada (VMC) de duplo fluxo, renovando o ar sem perder temperatura.
Isolamento: Caixilharia premium Schüco com vidro duplo e proteção solar.
Ambiente: Sistema de iluminação com dimmer para personalizar a intensidade da luz.
Conveniência e Localização
Estacionamento: Lugar coberto em cave com 46,3 m², garantindo espaço para dois carros e arrumação extra.
Lourinhã: Localização privilegiada a apenas 2,4 km da costa, com a praia da Areia branca, entre outras, unindo a tranquilidade da natureza à proximidade de Lisboa aproximadamente 50 minutos.
A qualidade de vida que sempre idealizou está aqui. Venha conhecer e agende a sua visita com Fátima isabel.
Nota: A informação disponibilizada, ainda que precisa, não dispensa a sua confirmação, nem poderá ser considerada vinculativa.
A Way Home é uma empresa nacional, especializada em mediação imobiliária, focada nas necessidades do consultor e do cliente.
Um projeto que nasceu da vontade de ser e fazer diferente, que junta diferentes experiências e competências adquiridas ao longo de mais de 20 anos em meio corporativo e de mais de 10 anos no ramo imobiliário, em diferentes marcas e modelos de negócio.
Queremos fomentar uma forte cultura interna, incluindo os consultores nas decisões importantes da empresa, acompanhando de perto as suas vivências do dia-a-dia, fomentando o espírito de equipa e o compromisso com a marca, acreditamos que assim, teremos um impacto muito positivo nos clientes.
Apostamos na formação e no acompanhamento diferenciado e personalizado, oferecemos uma grande diversidade de serviços e muita flexibilidade no dia-a-dia dos consultores, tudo para os ajudar a desenvolver o seu negócio.
Fazemos parcerias 50/50 com todas as agências com licença AMI válida.
Localização
Lourinhã e Atalaia, Lourinhã, Lisboa
Informação do anúncio
ID do anúncio
1690542
Referência Externa
FI82
Atualizado em
26/04/2026 00:34:26
Apartamento T3 para Venda em Lourinhã e Atalaia
Vídeo