Voltar
Terreno para Venda em Quelfes Foto 1
Terreno para Venda em Quelfes Foto 2
Terreno para Venda em Quelfes Foto 3
Terreno para Venda em Quelfes Foto 4

Terreno para Venda em Quelfes

8.900.000 €

Tipo
Terreno
Negócio
Venda
Ano de Construção
2027
Área Bruta
9108 m²
Condição
Para Obras
Certificado Energético
Não aplicável

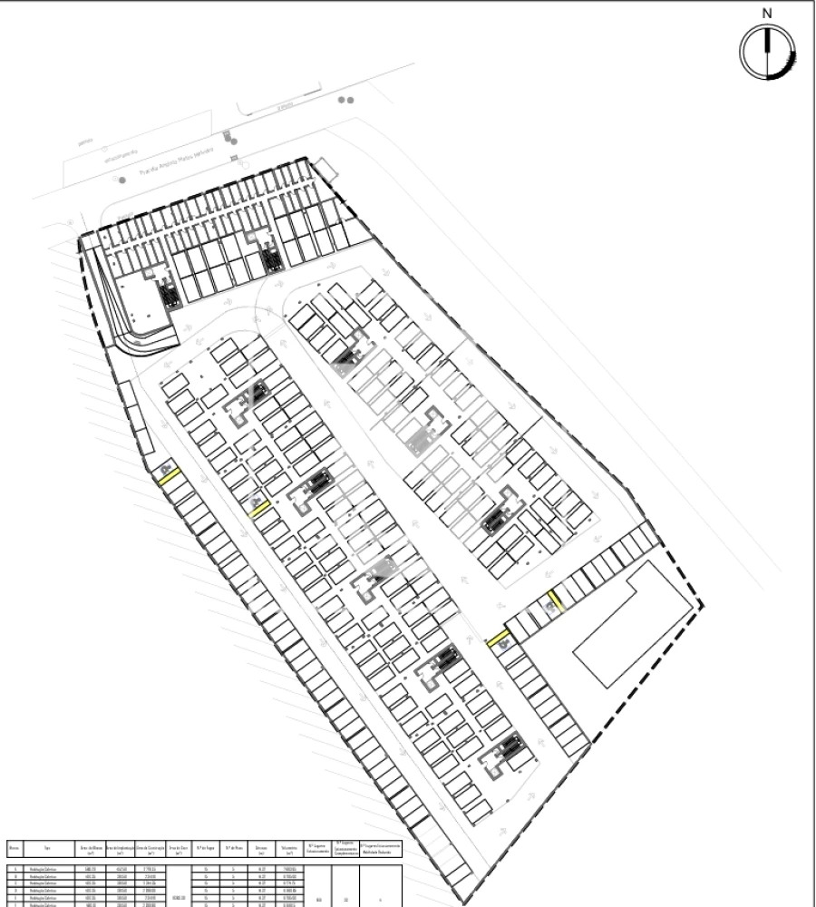
Terreno para 150 fogos em Quelfes

Descubra esta oportunidade única de investimento num terreno para venda, localizado em Quelfes, na cidade de Olhão. Com uma área total de 9.108 m², esta propriedade apresenta-se como um projeto com enorme potencial de desenvolvimento imobiliário.

O terreno contempla a possibilidade de construção de 150 fogos habitacionais, distribuídos por 146 apartamentos T2 e 4 apartamentos T4, tornando-se uma excelente oportunidade para promotores e investidores que procuram desenvolver um projeto residencial numa zona em crescimento.

A localização destaca-se pela sua conveniência e qualidade de vida. A proximidade com várias escolas, como a Escola Básica do 2.º e 3.º Ciclo Professor Paula Nogueira, situada a apenas 1 minuto a pé, torna esta área especialmente atrativa para famílias.

Além disso, o Parque do Campo do Cassiano, a cerca de 10 minutos de distância, oferece um espaço verde ideal para atividades de lazer, desporto e convívio social.

A zona dispõe ainda de supermercados, farmácias e diversos serviços essenciais a curta distância, garantindo aos futuros residentes uma infraestrutura completa que promove um estilo de vida prático, ativo e confortável.

Este terreno beneficia de uma localização estratégica numa área funcional e bem conectada, o que o torna ideal para o desenvolvimento de um empreendimento residencial moderno.

Não perca a oportunidade de adquirir este terreno numa localização dinâmica e dotada de todas as comodidades essenciais. Entre em contacto conosco para mais informações e descubra todo o potencial deste projeto.

Localização

Quelfes, Olhão, Faro

Informação do anúncio

ID do anúncio 1692835
Referência Externa DSTVRGM210
Atualizado em 14/03/2026 02:30:49
Decisões e Soluções Tavira AMI 13294
Referência do imóvel: DSTVRGM210
Phone
Chamada para a rede fixa nacional
Decisões e Soluções Tavira AMI 13294
Referência do imóvel: DSTVRGM210
Phone
Chamada para a rede fixa nacional
1 / 4
Terreno para Venda em Quelfes Foto 1
Terreno para Venda em Quelfes Foto 2
Terreno para Venda em Quelfes Foto 3
Terreno para Venda em Quelfes Foto 4
Clicky