T2 em Monte Gordo, em edifício na 2ª linha com piscina
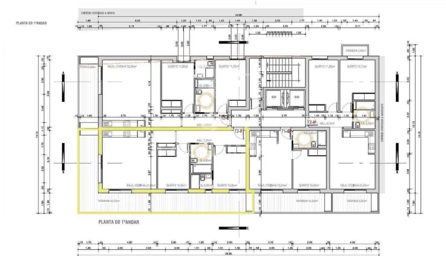
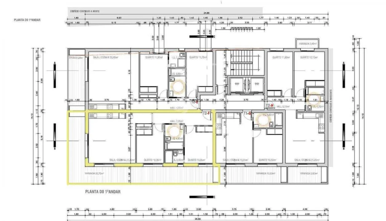
Fantástico apartamento T2 em Monte Gordo, em edifício em construção na 2ª linha a contar da praia. O edifício conta com elevador e com piscina no terraço. A praia está a apenas 100 metros.Trata-se de um 1º andar com 75 m2 de área bruta e 63 m2 de área útil (fracção F), constituído por um hall de entrada, uma sala com cozinha integrada em open space, com 33,40 m2, uma casa de banho, e dois quartos, um com 10,95 m2 e o outro com 10,35 m2. A sala do apartamento dá acesso a uma magnífica varanda com 33,79 m2 virada a poente e a sul, da qual poderá ver o mar, e a cozinha está totalmente equipada com eletrodomésticos Indesit, o que inclui placa vitrocerâmica, forno, exaustor, frigorífico, máquina de lavar louça, máquina de lavar roupa e micro-ondas. O apartamento conta ainda com bomba de calor para aquecimento de água, pré-instalação de ar condicionado, estores eléctricos e caixilharia com corte térmico.O preço não inclui lugar de garagem, nem arrecadação, os quais podem ser adquiridos à parte.A conclusão do edifício está prevista para o segundo trimestre de 2028, e as condições de pagamento são as seguintes: 25% com a assinatura do contrato de promessa de compra e venda (CPCV); 25% quando a estrutura estiver concluída; 50% aquando da escritura, depois de finalizado o edifício e de emitidas as licenças de utilização.Não hesite em contactar-nos para obter mais informações.Predimed Imobiliária, Mediação Imobiliária, Lda.Avenida Brasil 43, 12º Andar, 1700-062 LisboaLicença AMI nº 22503Pessoa Coletiva nº 517 239 345Seguro Responsabilidade Civil: Nº de Apólice RC65379424 Fidelidade
Características:
Piscina;Bomba de calor;Cozinha equipada;Elevador;Estores Eléctricos;Pré-Instalação Ar Condicionado;Praia;Vista para Mar