Voltar
Terreno para Venda em Miragaia e Marteleira Foto 1
Terreno para Venda em Miragaia e Marteleira Foto 2
Terreno para Venda em Miragaia e Marteleira Foto 3
Terreno para Venda em Miragaia e Marteleira Foto 4
Terreno para Venda em Miragaia e Marteleira Foto 5

Terreno para Venda em Miragaia e Marteleira

Sob consulta

Tipo
Terreno
Negócio
Venda
Área Bruta
308 m²
Condição
Não Aplicável
Área do Terreno
4570 m²

Terreno para construção, em Lourinhã.

Terreno para construção, em Lourinhã.
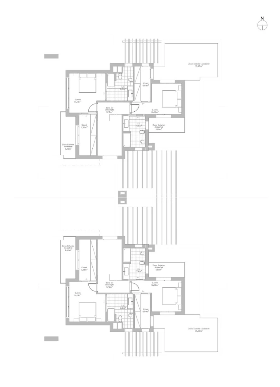
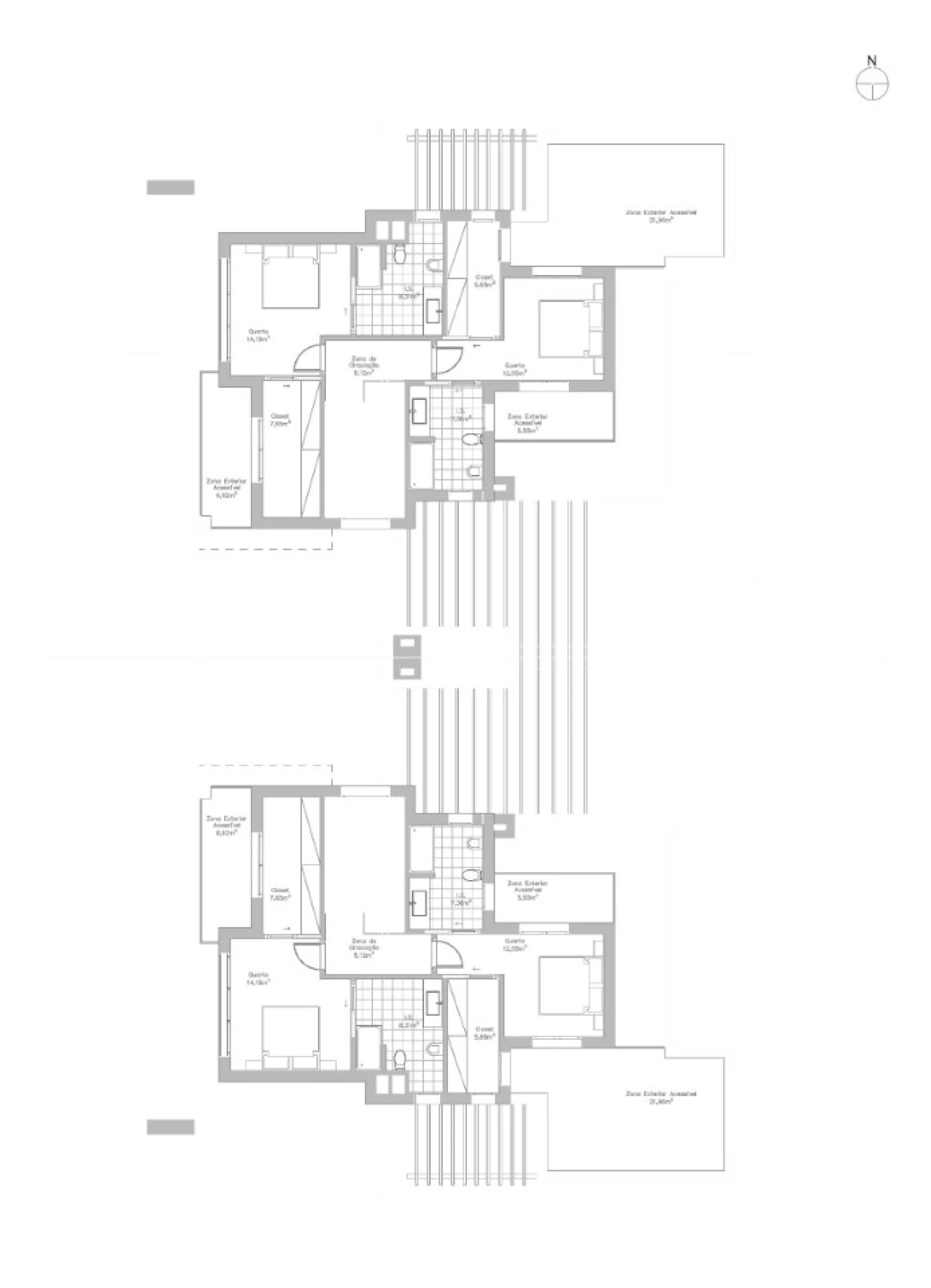
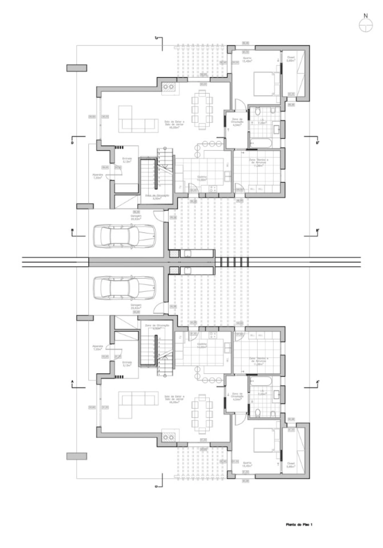
Terreno com projeto para moradia, de linhas modernas, desenvolvida em 2 pisos, rés do chão, 1º piso, garagem, possibilidade de piscina.
Lote - 4570,25
Área bruta construção - 3 08.15 m2
Implantação - 193.35 m2.

Localiza se em zona habitacional calma com vistas desafogadas numa freguesia do concelho da Lourinhã. Goza de boas acessibilidades e excelente disposição solar.

Localização

Miragaia e Marteleira, Lourinhã, Lisboa

Informação do anúncio

ID do anúncio 1702842
Referência Externa TC615
Atualizado em 26/04/2026 16:37:59
Gageiro e Santos - S.& N. Gageiro - Mediação Imobiliária, Lda. AMI 7420
Referência do imóvel: TC615
Phone
Chamada para a rede fixa nacional
Gageiro e Santos - S.& N. Gageiro - Mediação Imobiliária, Lda. AMI 7420
Referência do imóvel: TC615
Phone
Chamada para a rede fixa nacional
1 / 8
Terreno para Venda em Miragaia e Marteleira Foto 1
Terreno para Venda em Miragaia e Marteleira Foto 2
Terreno para Venda em Miragaia e Marteleira Foto 3
Terreno para Venda em Miragaia e Marteleira Foto 4
Terreno para Venda em Miragaia e Marteleira Foto 5
Terreno para Venda em Miragaia e Marteleira Foto 6
Terreno para Venda em Miragaia e Marteleira Foto 7
Terreno para Venda em Miragaia e Marteleira Foto 8
Planta 1 / 2
Terreno para Venda em Miragaia e Marteleira Planta 1
Terreno para Venda em Miragaia e Marteleira Planta 2
Clicky