Lote com 1714 m2 em Vila Alegre com licença do projeto paga!
Apresentamos uma oportunidade única na prestigiada Urbanização Vila Alegre (Fernão Ferro / Seixal), uma zona reconhecida pela sua tranquilidade e qualidade de vida.
Lote Exclusivo com 1714 m² e licença do projeto paga!
Imagine ter à sua disposição 1714 m² de área, o espaço ideal para dar asas à sua imaginação e construir a moradia isolada que sempre desejou, com todos os luxos e o espaço verde que a sua família merece.
Destaques Imperdíveis:
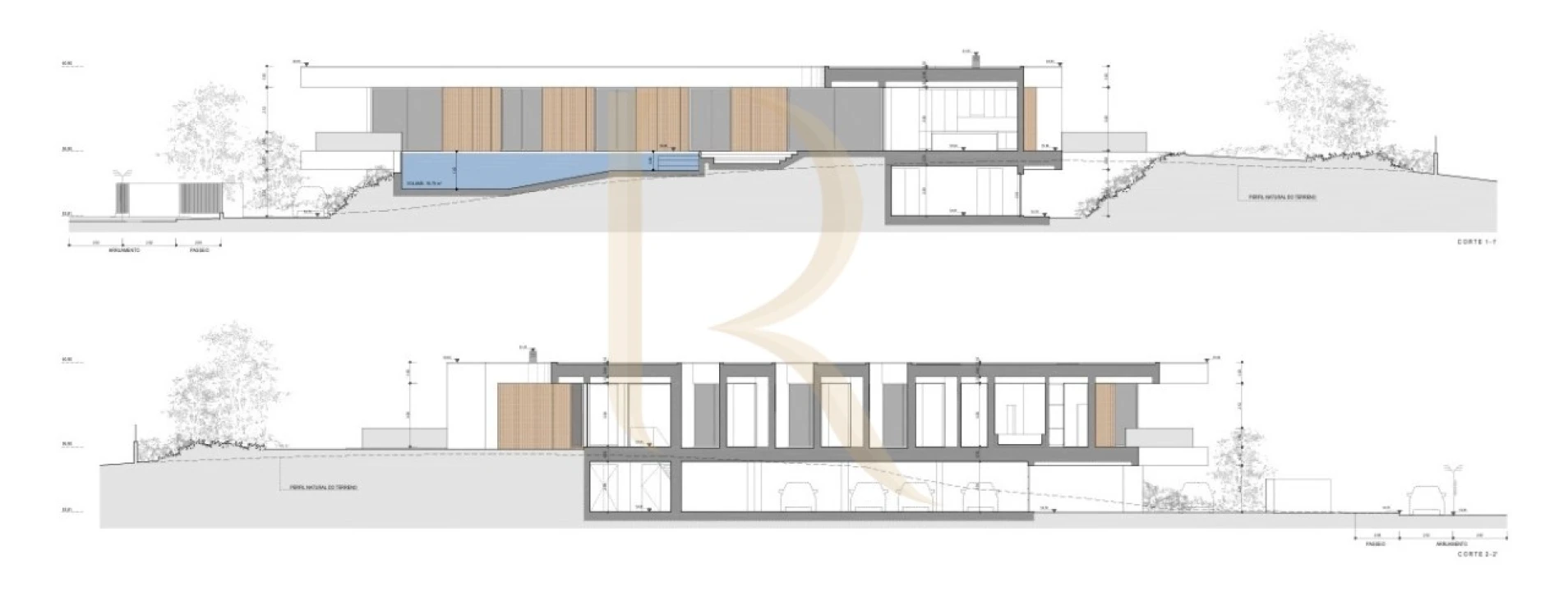
Área Generosa: 1714 m² que garantem privacidade, espaço para lazer, piscina de sonho, jardim exuberante e até uma horta.
Potencial de Construção Elevado: Este lote permite a construção de uma fantástica moradia com:
Área de Implantação: 150 m² (o que garante bastante espaço exterior!)
Área Bruta de Construção: 300 m² (ideal para uma moradia de dois pisos ou térrea com cave).
Localização Premium: Inserido na urbanização Vila Alegre, sinónimo de tranquilidade, segurança e vizinhança de qualidade.
Excelentes Acessos: Perto de comércio local, serviços, escolas e com ligações rápidas à A33, A2, e a Lisboa e Setúbal.
Proximidade da Natureza: Desfrute da vista desafogada e da proximidade com a Serra da Arrábida e as belas praias de Sesimbra e Lagoa de Albufeira.
Não perca a chance de investir no seu futuro!
Um terreno com esta dimensão, localização e potencial de construção é cada vez mais raro.
Contacte-nos hoje mesmo para mais informações ou para agendar a sua visita!
A Realiza é Intermediário de Crédito devidamente autorizado pelo Banco de Portugal.
Fazemos a gestão de todo o seu processo de financiamento bancário.
Este site utiliza cookies. Ao navegar no site estará a consentir a sua utilização. Para mais informações sobre os cookies pode consultar a
política de privacidade.