Terreno para Venda em Pegões
850.000 €
Tipo
Terreno
Negócio
Venda
Condição
Não Aplicável
Certificado Energético
Isento
Área do Terreno
108508 m²
IMÓVEL DA BANCA - Terreno Rústico com 108.508 m2 no Montijo.
IMÓVEL DA BANCA - Terreno rústico situado na freguesia de Pegões, concelho do Montijo, distrito de Setúbal.
Terreno rústico com 108.508 m2, situado a sul de Pegões-Gare entre este núcleo e a via férrea, confronta a Poente com a EN 10 e a Sul com a linha de caminho-de-ferro do Sul e rua não pavimentada que liga ao Largo José Ribeiro Santana, a Norte por zona verde e Rua da Mãe de Água que dá acesso ao aglomerado de Pegões-Gare e à EN10 e a Nascente com prédio rústico, equipamento escolar e parte da Av. 25 de Abril.
Com efeito encontra-se junto a uma estação férrea e a uma estrada nacional, bem como a uma distância de menos de 5 km da autoestrada n.o 13, a 53 km da cidade do Montijo, Ponte Vasco da Gama e Aeroporto, a cerca de 9 Km da autoestrada n.o 6 para Espanha e da autoestrada n.o 2 Algarve/Lisboa/Setúbal e também a cerca de 36 Km do Porto de Setúbal pelo que parece forçoso ter de se concluir que possui uma acessibilidade tanto local, como concelhia e mesmo metropolitana ímpar convocando a possibilidade de uma sua decisiva valorização indiscutivelmente urbana, mas empresarial.
Atualmente encontra-se sem ocupação ou utilização e com um coberto arbóreo e arbustivo predominantemente constituído por eucaliptos, pinheiros e um sobcoberto de matos, apresentando uma forma predominantemente trapezoidal com a maior dimensão - cerca de 380 m - de orientação norte, e a menor dimensão - cerca de 283 m - com uma orientação sul.
A área é atualmente classificada pelo PDM em vigor como urbanizável habitacional mista de nível IV (Pegões-Gare) para onde se indicam parâmetros de densidade bruta de 20 fogos/ha e de densidade líquida (aplicada às áreas exclusivamente destinadas a habitação ou outros usos urbanos complementares) de 30 fogos/ha.
Estes valores traduzir-se-ão por sua vez em parâmetros de ocupação do solo máxima de 0,25 e de utilização de 0,45 e um n.o máximo de pisos de três. Contudo e, não obstante, considerando a localização do terreno numa perspetiva territorial próxima, relativa a Pegões-Gare, como também numa perspetiva territorial alargada, relativa ao território concelhio, ao da Península de Setúbal e mesmo ao da AML, constata-se que possui uma situação muito privilegiada.
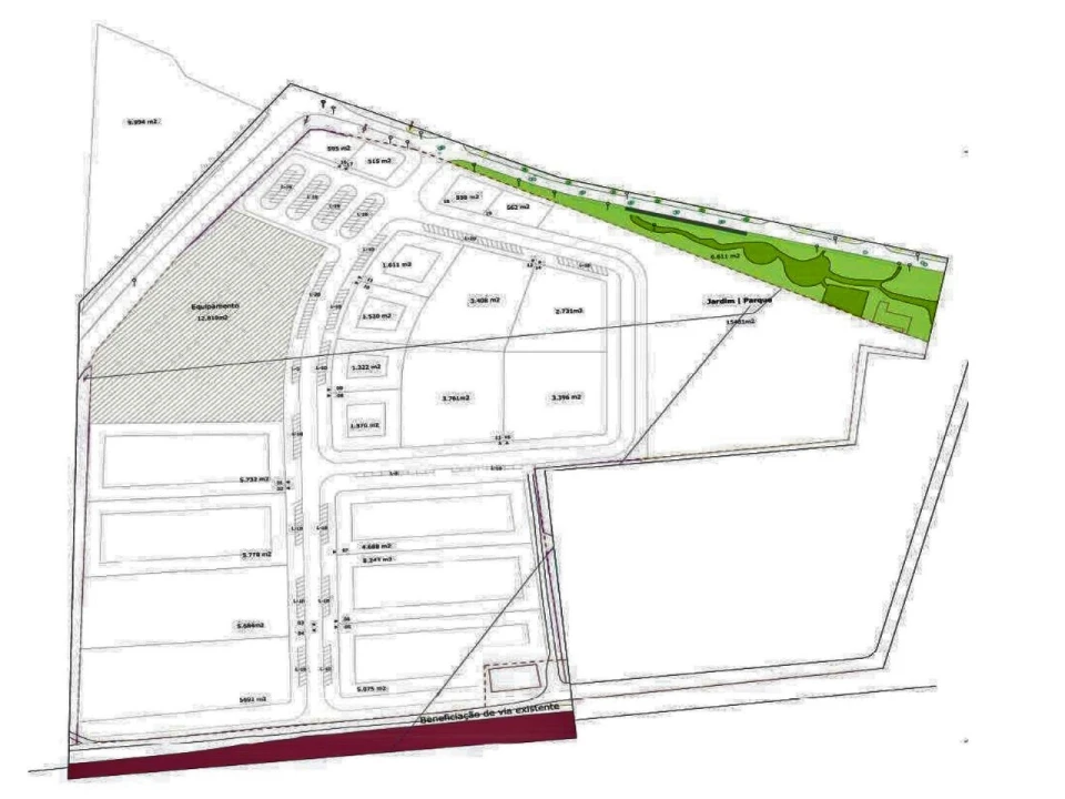
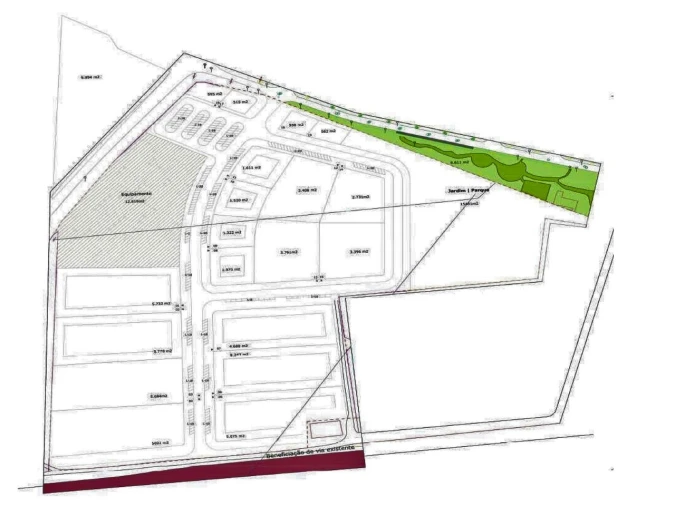
Assim, o Banco apresentou um PIP que foi aprovado na Câmara Municipal do Montijo em 09.02.2021 no qual são propostos 19 lotes com área total de 59.381m2, área de implantação máxima total de 23.752,40m2 e área de construção máxima de 34.931m2.
Os lotes 16 a 19 serão implantados em banda e os restantes lotes a implantação é isolada, com um afastamento mínimo ao limite do lote de 9 metros.
Prestamos um serviço de acompanhamento antes e depois da sua escritura.
Marque a sua Visita!
Terreno rústico com 108.508 m2, situado a sul de Pegões-Gare entre este núcleo e a via férrea, confronta a Poente com a EN 10 e a Sul com a linha de caminho-de-ferro do Sul e rua não pavimentada que liga ao Largo José Ribeiro Santana, a Norte por zona verde e Rua da Mãe de Água que dá acesso ao aglomerado de Pegões-Gare e à EN10 e a Nascente com prédio rústico, equipamento escolar e parte da Av. 25 de Abril.
Com efeito encontra-se junto a uma estação férrea e a uma estrada nacional, bem como a uma distância de menos de 5 km da autoestrada n.o 13, a 53 km da cidade do Montijo, Ponte Vasco da Gama e Aeroporto, a cerca de 9 Km da autoestrada n.o 6 para Espanha e da autoestrada n.o 2 Algarve/Lisboa/Setúbal e também a cerca de 36 Km do Porto de Setúbal pelo que parece forçoso ter de se concluir que possui uma acessibilidade tanto local, como concelhia e mesmo metropolitana ímpar convocando a possibilidade de uma sua decisiva valorização indiscutivelmente urbana, mas empresarial.
Atualmente encontra-se sem ocupação ou utilização e com um coberto arbóreo e arbustivo predominantemente constituído por eucaliptos, pinheiros e um sobcoberto de matos, apresentando uma forma predominantemente trapezoidal com a maior dimensão - cerca de 380 m - de orientação norte, e a menor dimensão - cerca de 283 m - com uma orientação sul.
A área é atualmente classificada pelo PDM em vigor como urbanizável habitacional mista de nível IV (Pegões-Gare) para onde se indicam parâmetros de densidade bruta de 20 fogos/ha e de densidade líquida (aplicada às áreas exclusivamente destinadas a habitação ou outros usos urbanos complementares) de 30 fogos/ha.
Estes valores traduzir-se-ão por sua vez em parâmetros de ocupação do solo máxima de 0,25 e de utilização de 0,45 e um n.o máximo de pisos de três. Contudo e, não obstante, considerando a localização do terreno numa perspetiva territorial próxima, relativa a Pegões-Gare, como também numa perspetiva territorial alargada, relativa ao território concelhio, ao da Península de Setúbal e mesmo ao da AML, constata-se que possui uma situação muito privilegiada.
Assim, o Banco apresentou um PIP que foi aprovado na Câmara Municipal do Montijo em 09.02.2021 no qual são propostos 19 lotes com área total de 59.381m2, área de implantação máxima total de 23.752,40m2 e área de construção máxima de 34.931m2.
Os lotes 16 a 19 serão implantados em banda e os restantes lotes a implantação é isolada, com um afastamento mínimo ao limite do lote de 9 metros.
Prestamos um serviço de acompanhamento antes e depois da sua escritura.
Marque a sua Visita!
Localização
Pegões, Montijo, Setúbal
Informação do anúncio
ID do anúncio
1703646
Referência Externa
VD-2201012/W9/DVD
Atualizado em
19/03/2026 03:33:45
Anunciante
Chamada para a rede fixa nacional
VD - Venda Direta Mediação Imobiliária, Lda
AMI 9537
Referência do imóvel:
VD-2201012/W9/DVD
Terreno para Venda em Pegões
Vídeo