Voltar
Terreno para Venda em Merelim (São Paio), Panoias e Parada de Tibães Foto 1
Terreno para Venda em Merelim (São Paio), Panoias e Parada de Tibães Foto 2
Terreno para Venda em Merelim (São Paio), Panoias e Parada de Tibães Foto 3
Terreno para Venda em Merelim (São Paio), Panoias e Parada de Tibães Foto 4
Terreno para Venda em Merelim (São Paio), Panoias e Parada de Tibães Foto 5

Terreno para Venda em Merelim (São Paio), Panoias e Parada de Tibães

67.000 €

Tipo
Terreno
Negócio
Venda
Área Bruta
270 m²
Área Útil
180 m²
Condição
Não Aplicável
Área do Terreno
194 m²

Terreno para moradia, bem localizado, com boa exposição solar

Terreno bem localizado, num alto ficando com vistas desafogadas para o vale. As traseiras da moradia viradas a nascente e a frente da casa a poente.

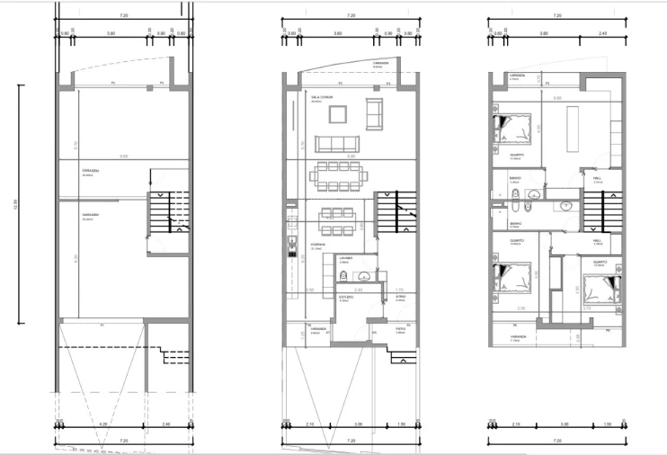
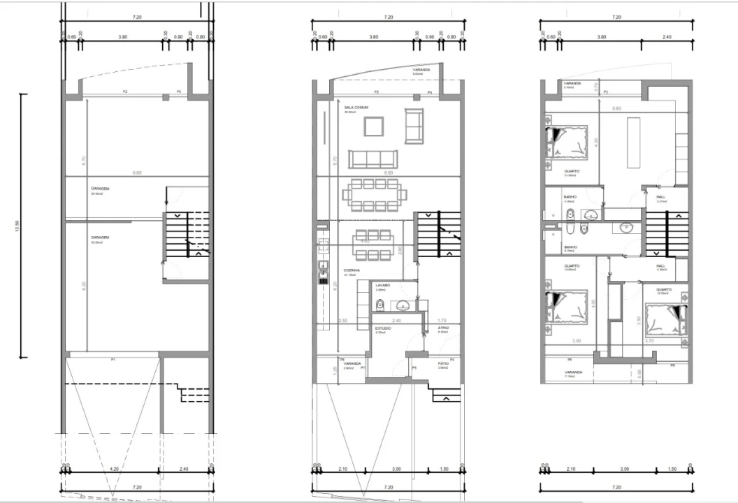
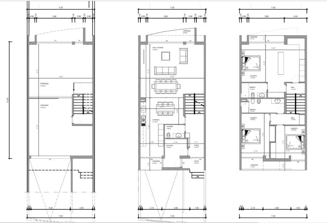
Para construção de moradia em Banda com 3 pisos, área bruta de 270 m2, área útil de 180 m2 e terreno total de 194 m2, área de jardim nas traseiras +/- 43 m2.
A disposição dos pisos desnivelados permite separar eficazmente as áreas sociais, privadas e de serviço, garantindo privacidade quando necessário, mas mantendo sempre uma ligação visual e espacial entre os diferentes ambientes. A circulação é feita de forma natural e fluída, proporcionando conforto e uma utilização mais versátil dos espaços.
Ver sugestão de planta, onde temos 1 Suite e pode vir a ter 3 suites. E no piso social, junto da entrada possibilidade de um pequeno escritório/ estúdio com 6,3 m2, ou ampliar a cozinha.

Possibilidade de construção, preço final 395.000€, com bons acabamentos e equipada.

Com supermercado, talho, peixaria, pastelaria a cerca de 800 m. A 6 km do centro de Braga

Entre em contacto com Nuno Barrocas pelo número + (telefone) WhatsApp)

Localização

Merelim (São Paio), Panoias e Parada de Tibães, Braga, Braga

Informação do anúncio

ID do anúncio 1704527
Referência Externa clix mais T 1325
Atualizado em 19/03/2026 08:01:15
Clix Mais, Lda. AMI 10825
Referência do imóvel: clix mais T 1325
Phone
Clix Mais
Clix Mais
Phone
Chamada para a rede móvel nacional
Clix Mais, Lda. AMI 10825
Referência do imóvel: clix mais T 1325
Phone
Clix Mais
Clix Mais
Phone
Chamada para a rede móvel nacional
1 / 16
Terreno para Venda em Merelim (São Paio), Panoias e Parada de Tibães Foto 1
Terreno para Venda em Merelim (São Paio), Panoias e Parada de Tibães Foto 2
Terreno para Venda em Merelim (São Paio), Panoias e Parada de Tibães Foto 3
Terreno para Venda em Merelim (São Paio), Panoias e Parada de Tibães Foto 4
Terreno para Venda em Merelim (São Paio), Panoias e Parada de Tibães Foto 5
Terreno para Venda em Merelim (São Paio), Panoias e Parada de Tibães Foto 6
Terreno para Venda em Merelim (São Paio), Panoias e Parada de Tibães Foto 7
Terreno para Venda em Merelim (São Paio), Panoias e Parada de Tibães Foto 8
Terreno para Venda em Merelim (São Paio), Panoias e Parada de Tibães Foto 9
Terreno para Venda em Merelim (São Paio), Panoias e Parada de Tibães Foto 10
Terreno para Venda em Merelim (São Paio), Panoias e Parada de Tibães Foto 11
Terreno para Venda em Merelim (São Paio), Panoias e Parada de Tibães Foto 12
Terreno para Venda em Merelim (São Paio), Panoias e Parada de Tibães Foto 13
Terreno para Venda em Merelim (São Paio), Panoias e Parada de Tibães Foto 14
Terreno para Venda em Merelim (São Paio), Panoias e Parada de Tibães Foto 15
Terreno para Venda em Merelim (São Paio), Panoias e Parada de Tibães Foto 16
Planta 1 / 3
Terreno para Venda em Merelim (São Paio), Panoias e Parada de Tibães Planta 1
Terreno para Venda em Merelim (São Paio), Panoias e Parada de Tibães Planta 2
Terreno para Venda em Merelim (São Paio), Panoias e Parada de Tibães Planta 3
Clicky