Procura investir em turismo, agricultura ou construção?
Este terreno pode ser exatamente o que precisa para dar vida ao seu próximo grande projeto!
Localização: Prazeres
Área Total: 10.000 m²
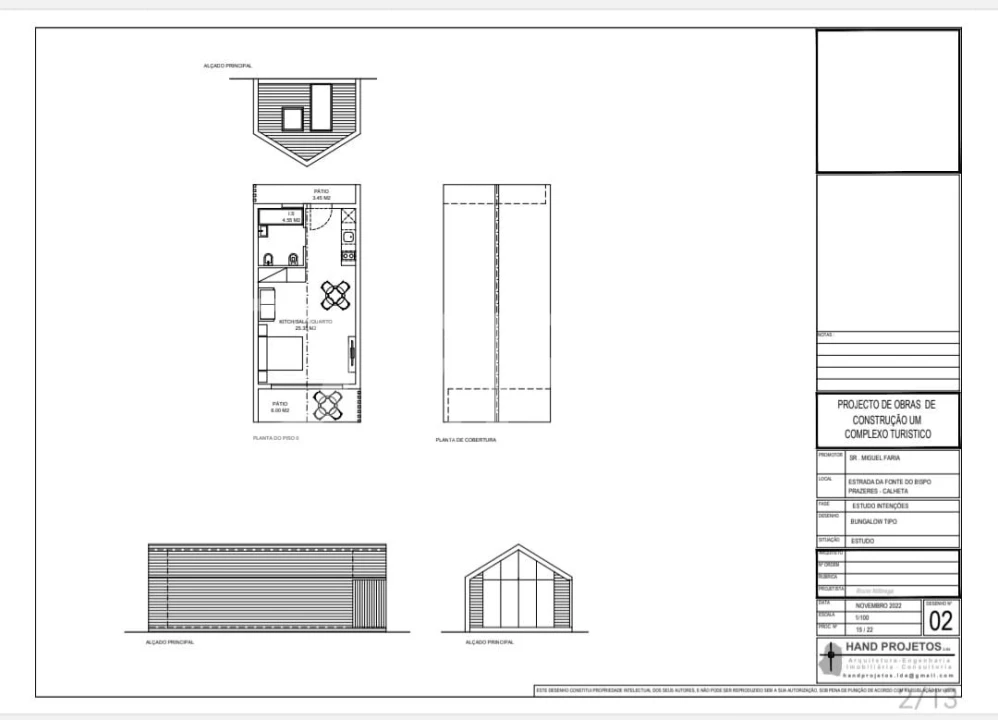
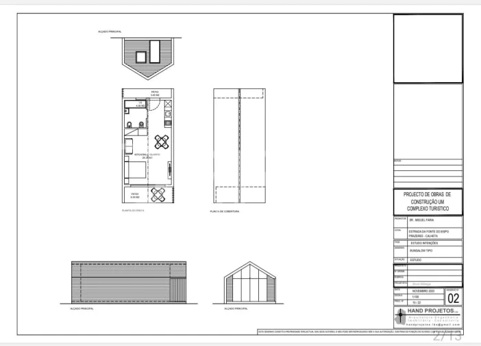
Projeto Aprovado: 17 Bungalows + Casa Mãe
Situado numa zona tranquila e envolvente, este terreno oferece uma combinação perfeita entre natureza, acessibilidade e infraestrutura. Localizado junto à Levada Nova, proporciona vistas deslumbrantes e um ambiente relaxante, ideal para turismo rural ou projetos agrícolas sustentáveis.
Infraestruturas incluídas:
Água potável
Eletricidade
Telecomunicações
Acesso rodoviário direto
Outros destaques:
Tanque com capacidade para 140.000 litros de água de rega com sistema automático
Armazém com 100 m²
Várias árvores de castanheiros
Terreno vedado com estacas de madeira e arame
Esta é uma oportunidade única para concretizar um projeto de sonho num dos locais mais encantadores da Madeira.
Este site utiliza cookies. Ao navegar no site estará a consentir a sua utilização. Para mais informações sobre os cookies pode consultar a
política de privacidade.