Terreno para Venda em São Mateus
120.000 €
Tipo
Terreno
Negócio
Venda
Condição
Não Aplicável
Certificado Energético
Isento
Área do Terreno
4730 m²
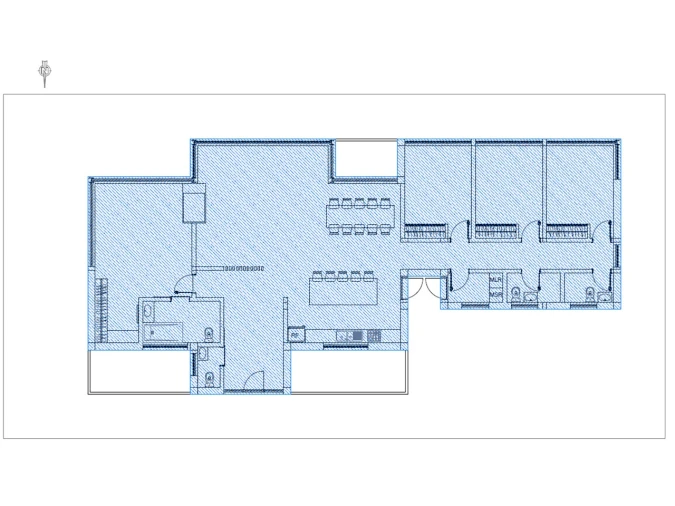
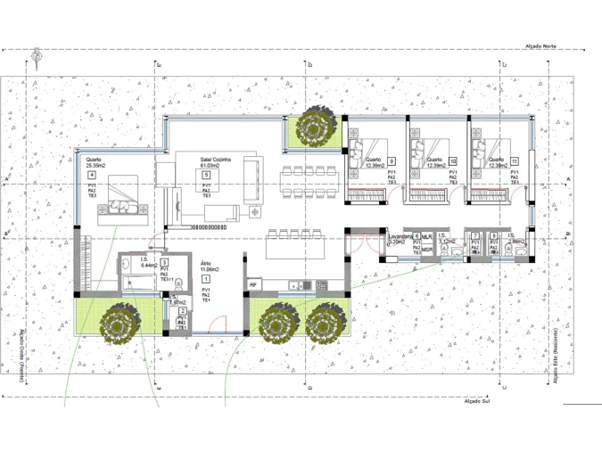
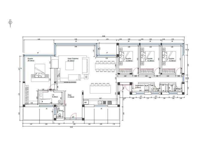
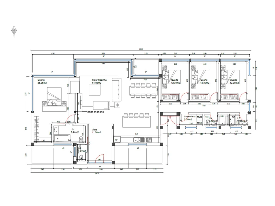
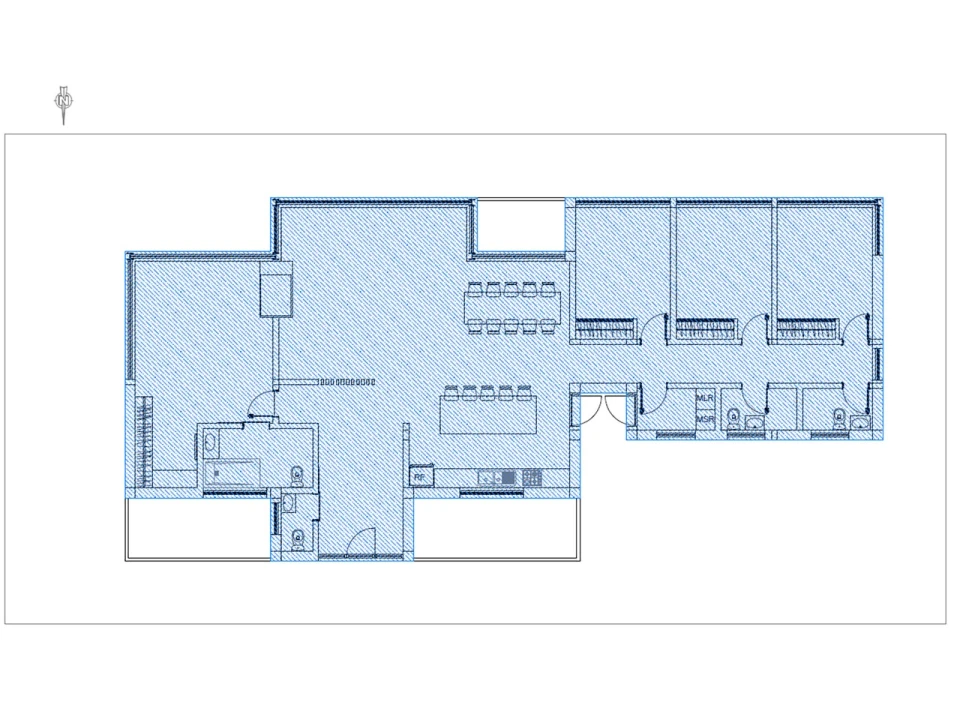
Terreno com Projeto Aprovado para Moradia T4 com Piscina e Vista Mar
Terreno de 4.730 m² na zona da Gingeira, São Mateus, com projeto aprovado e licença pronta a levantar para moradia T4 contemporânea de 203 m² com piscina.
Uma oportunidade única para quem procura construir imediatamente numa das localizações mais privilegiadas da Ilha do Pico, com vista panorâmica para o mar, montanha e vinhas.
Projeto Arquitectónico: Moradia moderna com arquitetura integrada na paisagem, construída em patamares que maximizam a vista mar.
Inclui uma suite, três quartos, sala e cozinha em open space com mais de 60 m², lavandaria e múltiplas casas de banho.
Utiliza materiais premium como pedra basáltica e madeira de criptoméria, com grandes envidraçados e varandas que privilegiam a conexão com a natureza.
A piscina está estrategicamente posicionada para usufruir da vista deslumbrante sobre o oceano e a paisagem vitivinícola.
O terreno oferece privacidade total, inserido em zona de baixa densidade habitacional rodeada pelos tradicionais currais de vinha (Património da Humanidade).
Com orientação solar sul-norte, garante luminosidade natural durante todo o dia.
O acesso faz-se por estrada asfaltada com 100 metros finais em gravilha.
Água e eletricidade disponíveis a 100 metros.
A localização estratégica oferece proximidade a múltiplas zonas balneares: Piscina de São Mateus (3,5 km), Porto da Praínha do Galeão (7 km) e Piscina Natural do Pocinho (9,5 km). A 14 km da Vila da Madalena, onde acede a todos os serviços essenciais.
Ideal para quem procura construir residência de elevado padrão ou investimento turístico diferenciado, com todas as aprovações concluídas e pronto para iniciar obras imediatamente.
A combinação de projeto aprovado, vista excecional e localização premium fazem desta propriedade uma oportunidade rara no mercado do Pico.
Agende a sua visita e conheça este projeto único com uma das vistas mais impressionantes da ilha.
Tratamos do seu Crédito Habitação de forma simples, transparente e eficaz. Negociamos as melhores condições para o seu caso.
EasyGest Finance, o seu Intermediário de crédito de confiança, certificado pelo Banco de Portugal com o nº 0001802.
Ajudamos com todo o processo! Entre em contacto connosco ou deixe-nos os seus dados e entraremos em contacto assim que possível!
AZ97664MK
Uma oportunidade única para quem procura construir imediatamente numa das localizações mais privilegiadas da Ilha do Pico, com vista panorâmica para o mar, montanha e vinhas.
Projeto Arquitectónico: Moradia moderna com arquitetura integrada na paisagem, construída em patamares que maximizam a vista mar.
Inclui uma suite, três quartos, sala e cozinha em open space com mais de 60 m², lavandaria e múltiplas casas de banho.
Utiliza materiais premium como pedra basáltica e madeira de criptoméria, com grandes envidraçados e varandas que privilegiam a conexão com a natureza.
A piscina está estrategicamente posicionada para usufruir da vista deslumbrante sobre o oceano e a paisagem vitivinícola.
O terreno oferece privacidade total, inserido em zona de baixa densidade habitacional rodeada pelos tradicionais currais de vinha (Património da Humanidade).
Com orientação solar sul-norte, garante luminosidade natural durante todo o dia.
O acesso faz-se por estrada asfaltada com 100 metros finais em gravilha.
Água e eletricidade disponíveis a 100 metros.
A localização estratégica oferece proximidade a múltiplas zonas balneares: Piscina de São Mateus (3,5 km), Porto da Praínha do Galeão (7 km) e Piscina Natural do Pocinho (9,5 km). A 14 km da Vila da Madalena, onde acede a todos os serviços essenciais.
Ideal para quem procura construir residência de elevado padrão ou investimento turístico diferenciado, com todas as aprovações concluídas e pronto para iniciar obras imediatamente.
A combinação de projeto aprovado, vista excecional e localização premium fazem desta propriedade uma oportunidade rara no mercado do Pico.
Agende a sua visita e conheça este projeto único com uma das vistas mais impressionantes da ilha.
Tratamos do seu Crédito Habitação de forma simples, transparente e eficaz. Negociamos as melhores condições para o seu caso.
EasyGest Finance, o seu Intermediário de crédito de confiança, certificado pelo Banco de Portugal com o nº 0001802.
Ajudamos com todo o processo! Entre em contacto connosco ou deixe-nos os seus dados e entraremos em contacto assim que possível!
AZ97664MK
Localização
São Mateus, Madalena, Ilha do Pico
Informação do anúncio
ID do anúncio
1709901
Referência Externa
AZ97664MK
Atualizado em
17/04/2026 14:11:11
Consultor
EasyGest Mediação Imobiliária
Terreno para Venda em São Mateus
Vídeo