Terreno para Venda em São João Baptista
105.000 €
Tipo
Terreno
Negócio
Venda
Área Bruta
846 m²
Área Útil
846 m²
Área do Terreno
402 m²
Descrição
Identificação do imóvel: ZMPT586893
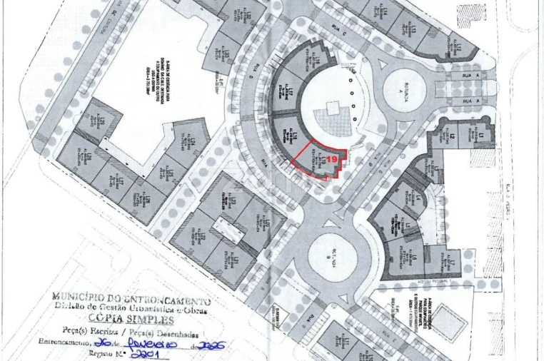
Oportunidade única de investimento no Entroncamento!
Apresentamos o Lote 19, localizado na urbanização da Quinta da Capela, uma zona em expansão que se destaca por um projeto de arquitetura moderno e arrojado, pensado para proporcionar uma excelente qualidade de vida a quem aqui venha a residir ou investir.
Este lote dispõe de viabilidade de construção definida em alvará de loteamento para um edifício composto por 6 fogos habitacionais (3 apartamentos T3 e 3 apartamentos T4), e ainda 4 espaços destinados a comércio, permitindo uma conjugação equilibrada entre habitação e serviços.
Características do lote:
- Área do lote / implantação: 408,35 m²
- Número de pisos: 4 acima do solo + cave
- Área de habitação: 1.119,50 m²
- Área de comércio: 313,25 m²
- Área de cave (garagem): 408,35 m²
Inserido numa localização estratégica, o lote beneficia da proximidade a estabelecimentos de ensino, como a Escola Básica António Gedeão e a Escola Básica 2/3 Dr. Ruy D’Andrade, bem como de diversos serviços e comércio local. Conta ainda com rápidos acessos ao IC-3, facilitando a mobilidade para outras zonas da região.
Ideal para promotores e investidores que procuram um projeto diferenciador, numa zona com forte potencial de valorização e elevada procura habitacional.
Para mais informações, não hesite em contactar.
3 razões para comprar com a Zome
+ Acompanhamento
Com uma preparação e experiência única no mercado imobiliário, os consultores Zome põem toda a sua dedicação em dar-lhe o melhor acompanhamento, orientando-o com a máxima confiança, na direção certa das suas necessidades e ambições. Daqui para a frente, vamos criar uma relação próxima e escutar com atenção as suas expectativas, porque a nossa prioridade é a sua felicidade! Porque é importante que sinta que está acompanhado, e que estamos consigo sempre.
+ Simples
Os consultores Zome têm uma formação única no mercado, ancorada na partilha de experiência prática entre profissionais e fortalecida pelo conhecimento de neurociência aplicada que lhes permite simplificar e tornar mais eficaz a sua experiência imobiliária. Deixe para trás os pesadelos burocráticos porque na Zome encontra o apoio total de uma equipa experiente e multidisciplinar que lhe dá suporte prático em todos os aspetos fundamentais, para que a sua experiência imobiliária supere as expectativas.
+ Feliz
O nosso maior valor é entregar-lhe felicidade! Liberte-se de preocupações e ganhe o tempo de qualidade que necessita para se dedicar ao que lhe faz mais feliz. Agimos diariamente para trazer mais valor à sua vida com o aconselhamento fiável de que precisa, para juntos, conseguirmos atingir os melhores resultados. Com a Zome nunca vai estar perdido ou desacompanhado e encontrará algo que não tem preço: a sua máxima tranquilidade! É assim que se vai sentir ao longo de toda a experiência: Tranquilo, seguro, confortável e... FELIZ!
Notas:
1. Caso seja um consultor imobiliário, este imóvel está disponível para partilha de negócio. Não hesite em apresentar aos seus clientes compradores e fale connosco para agendar a sua visita.
2. Para maior facilidade na identificação deste imóvel, por favor, refira o respetivo ID ZMPT.
Oportunidade única de investimento no Entroncamento!
Apresentamos o Lote 19, localizado na urbanização da Quinta da Capela, uma zona em expansão que se destaca por um projeto de arquitetura moderno e arrojado, pensado para proporcionar uma excelente qualidade de vida a quem aqui venha a residir ou investir.
Este lote dispõe de viabilidade de construção definida em alvará de loteamento para um edifício composto por 6 fogos habitacionais (3 apartamentos T3 e 3 apartamentos T4), e ainda 4 espaços destinados a comércio, permitindo uma conjugação equilibrada entre habitação e serviços.
Características do lote:
- Área do lote / implantação: 408,35 m²
- Número de pisos: 4 acima do solo + cave
- Área de habitação: 1.119,50 m²
- Área de comércio: 313,25 m²
- Área de cave (garagem): 408,35 m²
Inserido numa localização estratégica, o lote beneficia da proximidade a estabelecimentos de ensino, como a Escola Básica António Gedeão e a Escola Básica 2/3 Dr. Ruy D’Andrade, bem como de diversos serviços e comércio local. Conta ainda com rápidos acessos ao IC-3, facilitando a mobilidade para outras zonas da região.
Ideal para promotores e investidores que procuram um projeto diferenciador, numa zona com forte potencial de valorização e elevada procura habitacional.
Para mais informações, não hesite em contactar.
3 razões para comprar com a Zome
+ Acompanhamento
Com uma preparação e experiência única no mercado imobiliário, os consultores Zome põem toda a sua dedicação em dar-lhe o melhor acompanhamento, orientando-o com a máxima confiança, na direção certa das suas necessidades e ambições. Daqui para a frente, vamos criar uma relação próxima e escutar com atenção as suas expectativas, porque a nossa prioridade é a sua felicidade! Porque é importante que sinta que está acompanhado, e que estamos consigo sempre.
+ Simples
Os consultores Zome têm uma formação única no mercado, ancorada na partilha de experiência prática entre profissionais e fortalecida pelo conhecimento de neurociência aplicada que lhes permite simplificar e tornar mais eficaz a sua experiência imobiliária. Deixe para trás os pesadelos burocráticos porque na Zome encontra o apoio total de uma equipa experiente e multidisciplinar que lhe dá suporte prático em todos os aspetos fundamentais, para que a sua experiência imobiliária supere as expectativas.
+ Feliz
O nosso maior valor é entregar-lhe felicidade! Liberte-se de preocupações e ganhe o tempo de qualidade que necessita para se dedicar ao que lhe faz mais feliz. Agimos diariamente para trazer mais valor à sua vida com o aconselhamento fiável de que precisa, para juntos, conseguirmos atingir os melhores resultados. Com a Zome nunca vai estar perdido ou desacompanhado e encontrará algo que não tem preço: a sua máxima tranquilidade! É assim que se vai sentir ao longo de toda a experiência: Tranquilo, seguro, confortável e... FELIZ!
Notas:
1. Caso seja um consultor imobiliário, este imóvel está disponível para partilha de negócio. Não hesite em apresentar aos seus clientes compradores e fale connosco para agendar a sua visita.
2. Para maior facilidade na identificação deste imóvel, por favor, refira o respetivo ID ZMPT.
Localização
Rua Jornal O Entroncamento
São João Baptista, Entroncamento, Santarém
A localização exacta do imóvel não está disponível. O mapa apresenta a zona aproximada.
Informação do anúncio
ID do anúncio
1718040
Referência Externa
ZMPT586893
Atualizado em
26/04/2026 06:04:06
Terreno para Venda em São João Baptista