Terreno para Venda em Loule (São Sebastião)
195.000 €
Tipo
Terreno
Negócio
Venda
Área Útil
192 m²
Condição
Novo
Certificado Energético
Isento
Área do Terreno
470 m²
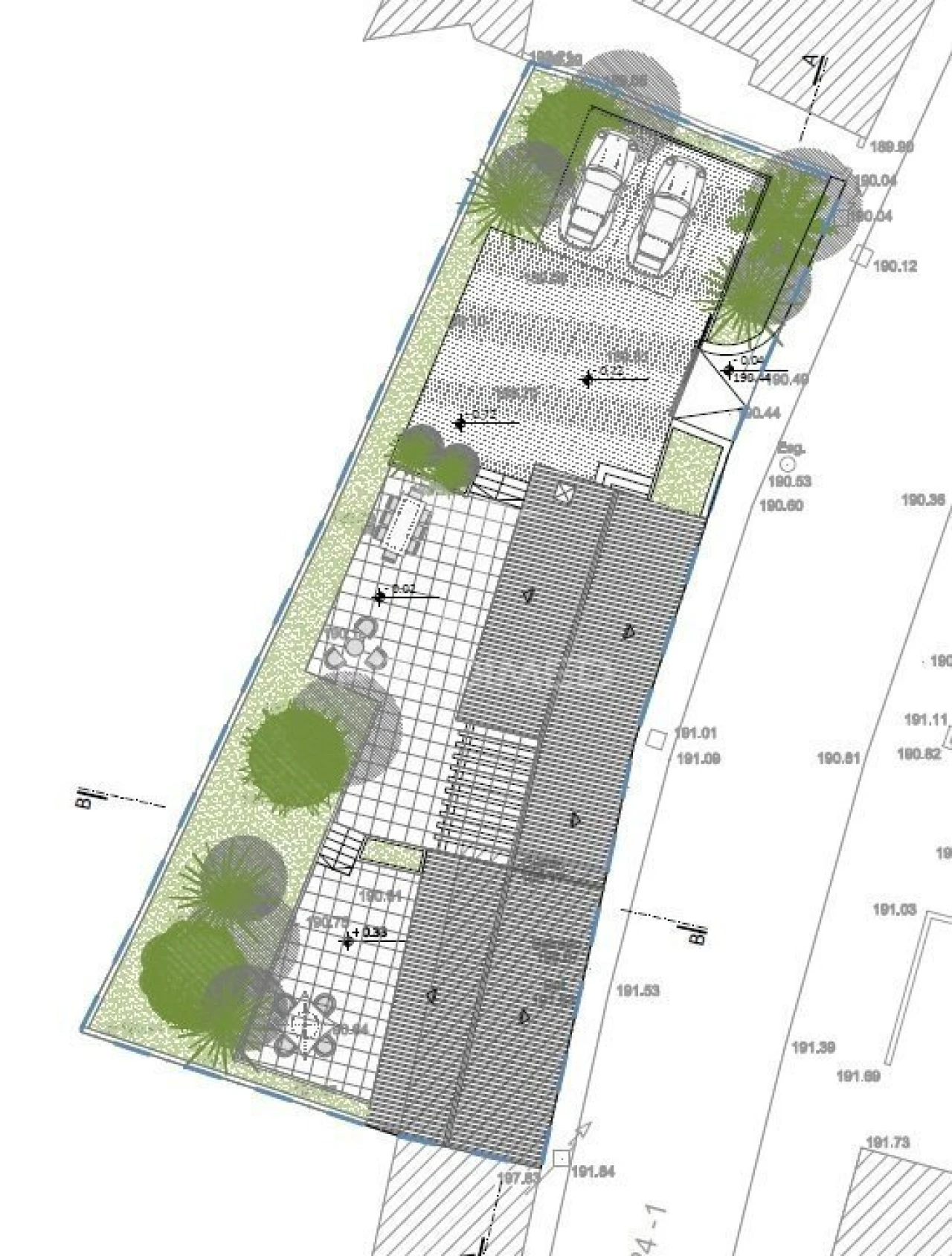
Loulé - Terreno urbano para construção com projeto aprovado
Oportunidade de investimento em Vale da Boa Hora - Loulé, Terreno urbano com 470m², inserido em zona tranquila, de enquadramento natural e boa exposição solar, com projeto aprovado para construção de moradia familiar de dois pisos, pronto a iniciar obra, evitando demoras e incertezas de licenciamento.
Projeto da Moradia: 3 quartos, sendo 1 em suíte com vestiário, 3 wc, com uma sala de estar ampla e luminosa, lavandaria, arrumos e carpot 2 automóveis
A moradia foi concebida para oferecer conforto, funcionalidade e excelente aproveitamento de áreas, privilegiando a ligação ao espaço exterior, com potencial para jardim, zona de lazer e eventual piscina.
Localização estratégica, a poucos minutos da autoestrada, do centro de Loulé e do aeroporto Internacional de Faro, com bons acessos, privacidade e ambiente campestre, ideal para residência permanente, segunda habitação ou investimento numa das zonas mais valorizadas do Algarve.
Uma propriedade que reúne localização, dimensão e comodidade.
Área do terreno: 470m² -VU: 468,08 €/m²
Descubra um projeto onde conforto, espaço e qualidade de vida se encontram de forma harmoniosa.
Projeto da Moradia: 3 quartos, sendo 1 em suíte com vestiário, 3 wc, com uma sala de estar ampla e luminosa, lavandaria, arrumos e carpot 2 automóveis
A moradia foi concebida para oferecer conforto, funcionalidade e excelente aproveitamento de áreas, privilegiando a ligação ao espaço exterior, com potencial para jardim, zona de lazer e eventual piscina.
Localização estratégica, a poucos minutos da autoestrada, do centro de Loulé e do aeroporto Internacional de Faro, com bons acessos, privacidade e ambiente campestre, ideal para residência permanente, segunda habitação ou investimento numa das zonas mais valorizadas do Algarve.
Uma propriedade que reúne localização, dimensão e comodidade.
Área do terreno: 470m² -VU: 468,08 €/m²
Descubra um projeto onde conforto, espaço e qualidade de vida se encontram de forma harmoniosa.
Localização
Loule (São Sebastião), Loulé, Faro
Informação do anúncio
ID do anúncio
1723086
Referência Externa
PD-058694
Atualizado em
26/04/2026 07:22:56
Consultor
Paulo Costa
Terreno para Venda em Loule (São Sebastião)