Moradia T3 para Venda em Arcozelo Foto 1
Moradia T3 para Venda em Arcozelo Foto 2
Moradia T3 para Venda em Arcozelo Foto 3
Moradia T3 para Venda em Arcozelo Foto 4
Moradia T3 para Venda em Arcozelo Foto 5

Moradia T3 para Venda em Arcozelo

762.000 €

Tipo
Moradia
Negócio
Venda
Quartos
3
Casas de Banho
3
Área Útil
179 m²
Condição
Novo
Certificado Energético
A

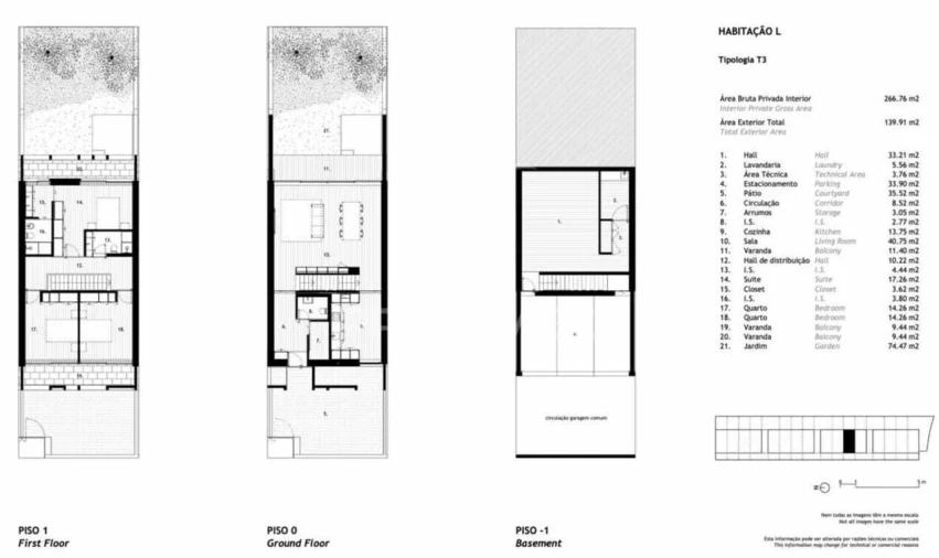
Moradia T3 em condomínio fechado - Arcozelo

Fração L - Nascente / Poente
O "Privilege Gaia" é um projeto inovador e inspirador que une arquitetura vanguardista à harmonia da natureza.
São 16 moradias de estilo minimalista, definidas por linhas simples, espaços amplos e abertos, com 3 quartos e varandas com grandes janelas que proporcionam uma abundante entrada de luz natural. As moradias contam ainda com zona de lavandaria independente, arrumos e estacionamento privativo.
Inspirado pelo ambiente natural e pela magnífica luz da costa atlântica, o Privilege Gaia nasce para oferecer um estilo de vida equilibrado entre conforto e tranquilidade.
Localizado em Arcozelo, a apenas 10 km da cidade do Porto, o projeto encontra-se numa zona consolidada, rodeada de praias, parques, campos de golfe, e com todos os serviços essenciais ao dia a dia. Oferece ainda excelentes acessos às principais vias de comunicação, seja de carro ou de comboio.
Possibilidade de instalação de piscina de 5mx4m, com estrutura em betão, por mais 30.000 € (sem aquecimento e, sem bomba de calor).
Privilege Gaia é um lugar para viver... e para sonhar.
Infraestruturas
Espaços exteriores e conforto
Jardim privativo
Zona verde espaçosa
Estacionamento privado
Infraestrutura preparada para futura instalação de piscina
Pré-instalação para carregamento de viaturas elétricas
Funcionalidade e arrumação
Lavandaria
Arrumos
Armários embutidos
Acabamentos e equipamentos de qualidade
Pavimento multicamadas com acabamento em madeira nobre
Tetos falsos em gesso cartonado com iluminação integrada
Eletrodomésticos de gama alta
Toalheiros elétricos
Conforto térmico e segurança
Sistema de climatização com ar condicionado
Bomba de calor aerotérmica para aquecimento de águas
Porta de segurança
Sistema de videoporteiro
Sistema integrado de controlo de iluminação e estores
Proteção solar e privacidade
Telas interiores elétricas tipo "Blackout" com sistema de calhas nos quartos
Acessibilidades
Ligações rodoviárias e transportes públicos
Acesso rápido à A29
Estação Ferroviária de Miramar - 3 min
Cidade do Porto - 15 min
Pontos de interesse e lazer
Capela do Senhor da Pedra - 5 min
Miramar Golf Club - 4 min
Passadiços da Ribeira do Espírito Santo - 2 min
Serviços de saúde
Centro Hospitalar Vila Nova de Gaia / Espinho - 9 min

Localização

Arcozelo, Vila Nova de Gaia, Porto

Informação do anúncio

ID do anúncio 1724554
Referência Externa PD-055756
Atualizado em 04/04/2026 08:18:16
Predimed AMI 22503
Referência do imóvel: PD-055756
Phone
Chamada para a rede móvel nacional
Predimed AMI 22503
Referência do imóvel: PD-055756
Phone
Chamada para a rede móvel nacional
1 / 10
Moradia T3 para Venda em Arcozelo Foto 1
Moradia T3 para Venda em Arcozelo Foto 2
Moradia T3 para Venda em Arcozelo Foto 3
Moradia T3 para Venda em Arcozelo Foto 4
Moradia T3 para Venda em Arcozelo Foto 5
Moradia T3 para Venda em Arcozelo Foto 6
Moradia T3 para Venda em Arcozelo Foto 7
Moradia T3 para Venda em Arcozelo Foto 8
Moradia T3 para Venda em Arcozelo Foto 9
Moradia T3 para Venda em Arcozelo Foto 10
Clicky