Terreno para Venda em Sarilhos Grandes
135.000 €
Tipo
Terreno
Negócio
Venda
Área Útil
213 m²
Condição
Novo
Certificado Energético
Isento
Área do Terreno
213 m²
Terreno para a Construção em Sarrilhos Grandes - Montijo
Localizado em Sarrilhos Grandes, no concelho do Montijo, este terreno apresenta comunicação prévia do projeto de arquitetura aprovada, o que permite avançar imediatamente para a fase de projeto das especialidades e posterior construção. A área destina-se à edificação de uma moradia em banda, com um programa arquitectónico bem definido e potencial para quem pretende materializar a sua habitação própria.
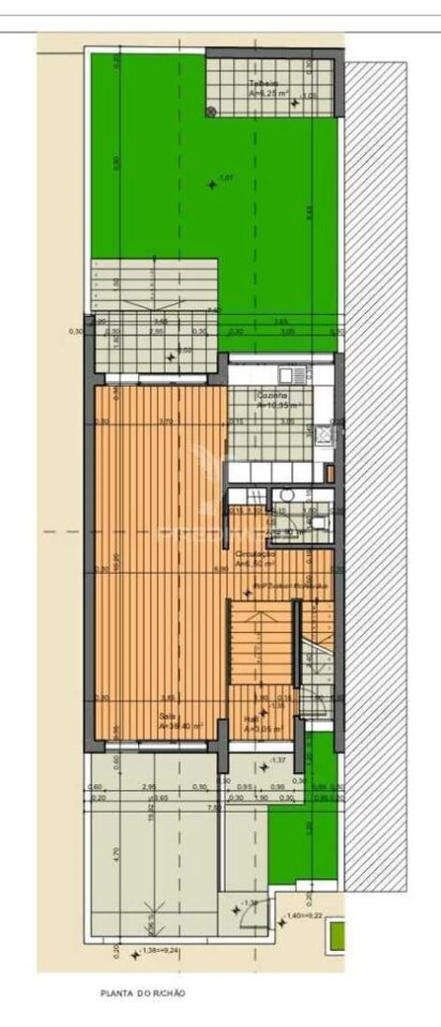
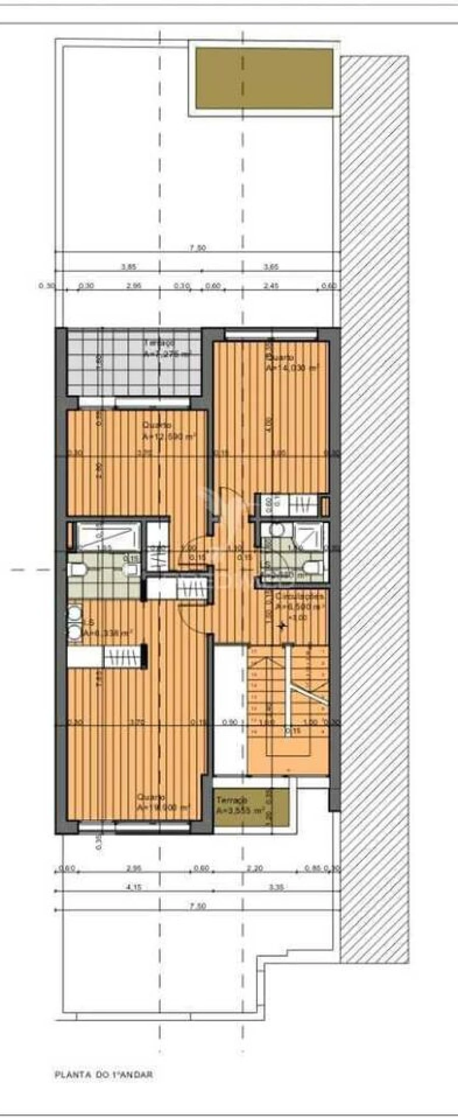
O projeto prevê uma moradia de dois pisos habitáveis, complementados por um sótão e uma cave que inclui garagem. A distribuição proposta oferece versatilidade, permitindo diferentes configurações de espaços conforme as necessidades do proprietário. O exterior conta com área para jardim e telheiro, elementos que ampliam as possibilidades de usufruto do imóvel.
A localização privilegiada em Sarrilhos Grandes garante proximidade a serviços essenciais, comércio local e vias de acesso rápidas para o Montijo e Lisboa, através da Ponte Vasco da Gama. O terreno situa-se numa zona em desenvolvimento, com excelentes perspetivas de valorização.
Características Principais:
- Terreno com comunicação prévia aprovada
- Projeto de moradia em banda
- 2 pisos habitáveis + sótão + cave
- Cave com garagem
- Área exterior com jardim e telheiro
- Zona tranquila com boa acessibilidade
- Proximidade a serviços e transportes
Este terreno representa uma oportunidade única para quem procura construir a sua habitação de raiz numa zona em crescimento, com todas as autorizações prévias já regularizadas. A existência de projeto aprovado agiliza todo o processo, permitindo um início rápido da obra.
A moradia projetada combina funcionalidade e qualidade de vida, com espaços bem distribuídos e áreas exteriores privativas. A cave garante o estacionamento protegido, enquanto o jardim oferece possibilidades de lazer ao ar livre.
Sarrilhos Grandes destaca-se pela sua localização estratégica no Montijo, com fácil acesso a Lisboa e ao distrito de Setúbal. A zona apresenta um crescimento sustentado, tornando este investimento interessante tanto para habitação própria como para fins patrimoniais.
Condições de Construção:
- Área bruta de construção conforme projeto
- Cumpre todos os requisitos municipais
- Possibilidade de personalização nas especialidades
- Infraestruturas básicas próximas
Este terreno oferece as condições ideais para quem pretende construir uma moradia moderna e funcional, num local bem servido de equipamentos e com excelentes acessos. A existência de projeto aprovado representa uma vantagem significativa, eliminando entraves burocráticos iniciais e permitindo um processo de construção mais célere.
A tipologia em banda assegura privacidade e eficiência energética, enquanto a distribuição proposta maximiza o aproveitamento do espaço. A cave amplia a área útil da habitação, proporcionando versatilidade de utilização.
Com uma localização que equilibra tranquilidade e conveniência, este terreno em Sarrilhos Grandes posiciona-se como uma escolha acertada para investimento habitacional na região do Montijo. A combinação entre projeto aprovado, dimensões generosas e potencial de valorização fazem desta oportunidade um caso a considerar no mercado imobiliário atual.
O projeto prevê uma moradia de dois pisos habitáveis, complementados por um sótão e uma cave que inclui garagem. A distribuição proposta oferece versatilidade, permitindo diferentes configurações de espaços conforme as necessidades do proprietário. O exterior conta com área para jardim e telheiro, elementos que ampliam as possibilidades de usufruto do imóvel.
A localização privilegiada em Sarrilhos Grandes garante proximidade a serviços essenciais, comércio local e vias de acesso rápidas para o Montijo e Lisboa, através da Ponte Vasco da Gama. O terreno situa-se numa zona em desenvolvimento, com excelentes perspetivas de valorização.
Características Principais:
- Terreno com comunicação prévia aprovada
- Projeto de moradia em banda
- 2 pisos habitáveis + sótão + cave
- Cave com garagem
- Área exterior com jardim e telheiro
- Zona tranquila com boa acessibilidade
- Proximidade a serviços e transportes
Este terreno representa uma oportunidade única para quem procura construir a sua habitação de raiz numa zona em crescimento, com todas as autorizações prévias já regularizadas. A existência de projeto aprovado agiliza todo o processo, permitindo um início rápido da obra.
A moradia projetada combina funcionalidade e qualidade de vida, com espaços bem distribuídos e áreas exteriores privativas. A cave garante o estacionamento protegido, enquanto o jardim oferece possibilidades de lazer ao ar livre.
Sarrilhos Grandes destaca-se pela sua localização estratégica no Montijo, com fácil acesso a Lisboa e ao distrito de Setúbal. A zona apresenta um crescimento sustentado, tornando este investimento interessante tanto para habitação própria como para fins patrimoniais.
Condições de Construção:
- Área bruta de construção conforme projeto
- Cumpre todos os requisitos municipais
- Possibilidade de personalização nas especialidades
- Infraestruturas básicas próximas
Este terreno oferece as condições ideais para quem pretende construir uma moradia moderna e funcional, num local bem servido de equipamentos e com excelentes acessos. A existência de projeto aprovado representa uma vantagem significativa, eliminando entraves burocráticos iniciais e permitindo um processo de construção mais célere.
A tipologia em banda assegura privacidade e eficiência energética, enquanto a distribuição proposta maximiza o aproveitamento do espaço. A cave amplia a área útil da habitação, proporcionando versatilidade de utilização.
Com uma localização que equilibra tranquilidade e conveniência, este terreno em Sarrilhos Grandes posiciona-se como uma escolha acertada para investimento habitacional na região do Montijo. A combinação entre projeto aprovado, dimensões generosas e potencial de valorização fazem desta oportunidade um caso a considerar no mercado imobiliário atual.
Localização
Sarilhos Grandes, Montijo, Setúbal
Informação do anúncio
ID do anúncio
1725669
Referência Externa
PD-054301
Atualizado em
26/04/2026 07:23:26
Terreno para Venda em Sarilhos Grandes