Terreno para Venda em Ericeira
690.000 €
Tipo
Terreno
Negócio
Venda
Condição
Não aplicável
Certificado Energético
ND
Área do Terreno
3062 m²
Terreno - Ericeira 4 km, A Casa das Casas
NG_LB
A MAIS VALIA DO IMÓVEL:
Terreno com 3.062m², com projeto aprovado para empreendimento turístico, situado a apenas 4 km do centro da Vila da Ericeira, muito próximo das famosas praias como Coxos, São Lourenço, Ribeira D'Ilhas, entre outras.
DESCRIÇÃO DO IMÓVEL:
a. Área 3.062m²
b. Com viabilidade de construção
c. Com projeto aprovado
d. Área de construção aprovada 744m²
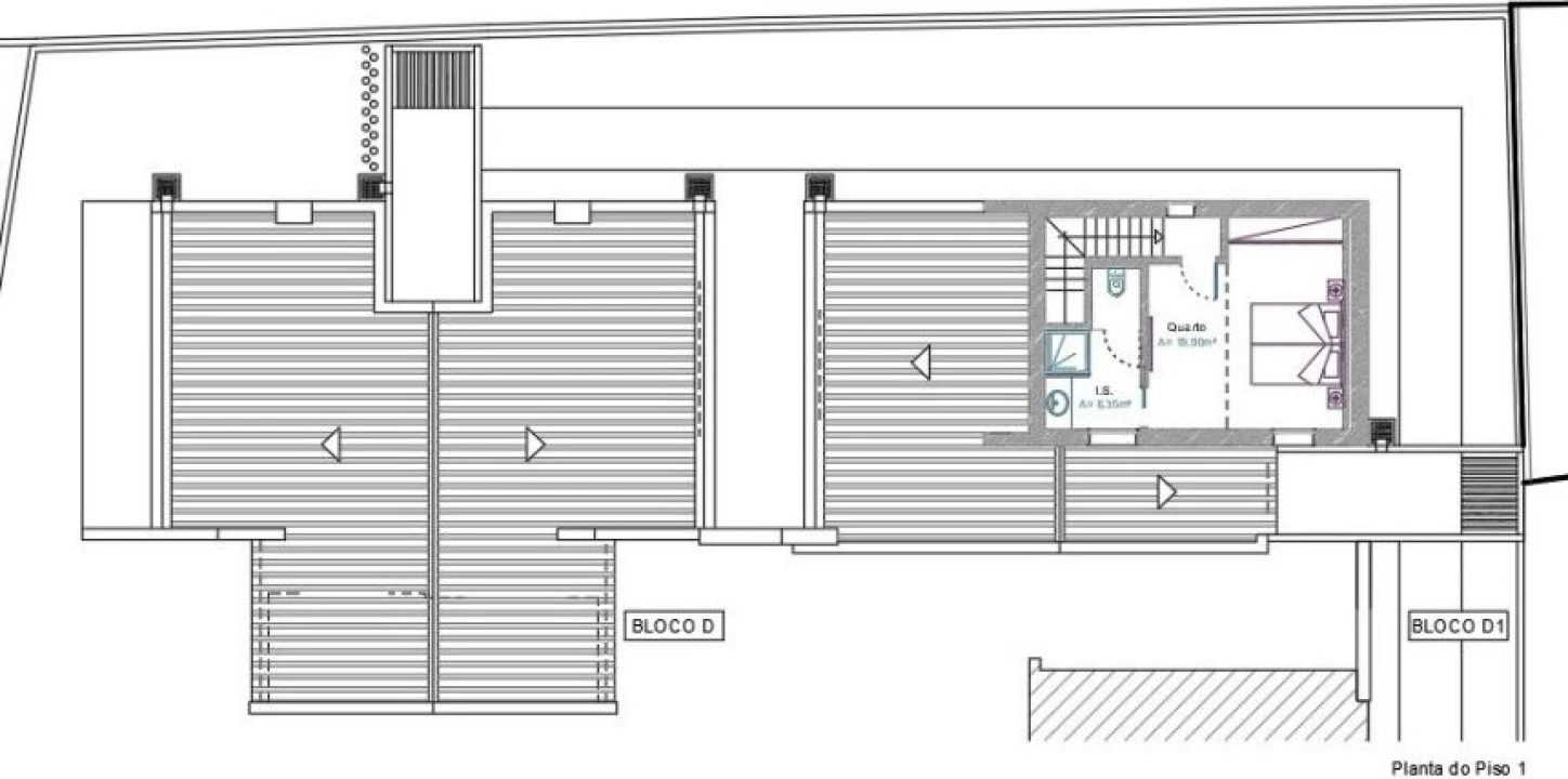
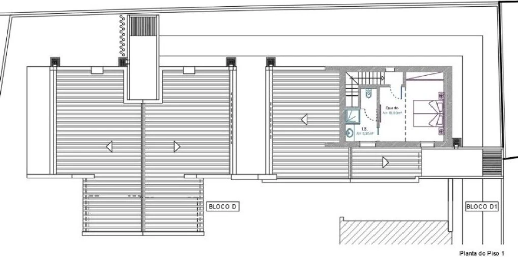
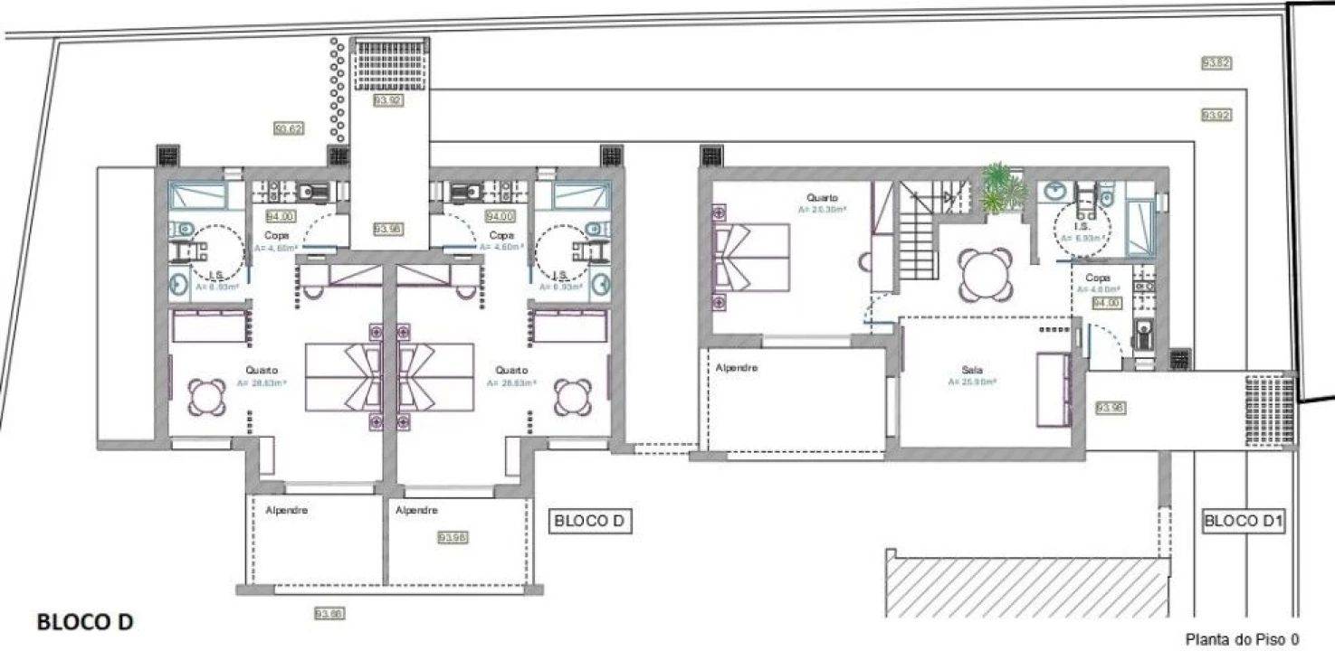
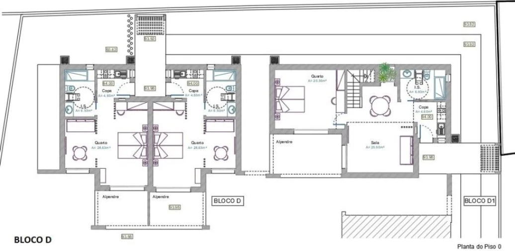
e. Descrição do que está aprovado:
- 10 unidades de acomodação, juntamente com serviços de apoio, num total de 32 camas.
INFRAESTRURURAS:
Iluminação pública
Saneamento básico
Luz
Gás
Água
DESCRIÇÃO DETALHADA:
Terreno com área de 3.062m², com projeto aprovado para construção de empreendimento turístico na tipologia de apartamentos turísticos, constituído por um conjunto de 10 unidades de alojamento (22 camas), respetivos serviços de apoio e jardim comum com piscina e estacionamentos. Com 1 a 2 pisos acima do solo e área bruta de construção de 775m².
A informação disponibilizada não dispensa a consulta de técnico especializado e/ou parecer das Autoridades competentes.
APRECIAÇÃO DO IMÓVEL:
Terreno com viabilidade aprovada pela Câmara Municipal de Mafra e pelo Turismo de Portugal, para construção de empreendimento turístico na tipologia de apartamentos turísticos com área de bruta de construção de 774m².
O projeto compreende um conjunto de 10 unidades de acomodação, juntamente com serviços de apoio, oferecendo um total de 32 camas.
Cada apartamento foi cuidadosamente projetado para incluir um hall de entrada, uma área de apoio para refeições, uma casa de banho e um acesso ao quarto. O quarto é amplo, com espaços distintos para dormir e relaxar.
Excelente investimento para quem procura boa rentabilidade no setor do turismo.
Uma área muito procurada, devido á proximidade da Reserva mundial de surf e primeira da Europa.
Venha conhecer este fantástico projeto!
INFORMAÇÕES COMPLEMENTARES:
- Áreas retiradas do projeto
* Toda a informação disponível não dispensa a confirmação por parte da mediadora bem como a consulta da documentação do imóvel. *
A MAIS VALIA DO IMÓVEL:
Terreno com 3.062m², com projeto aprovado para empreendimento turístico, situado a apenas 4 km do centro da Vila da Ericeira, muito próximo das famosas praias como Coxos, São Lourenço, Ribeira D'Ilhas, entre outras.
DESCRIÇÃO DO IMÓVEL:
a. Área 3.062m²
b. Com viabilidade de construção
c. Com projeto aprovado
d. Área de construção aprovada 744m²
e. Descrição do que está aprovado:
- 10 unidades de acomodação, juntamente com serviços de apoio, num total de 32 camas.
INFRAESTRURURAS:
Iluminação pública
Saneamento básico
Luz
Gás
Água
DESCRIÇÃO DETALHADA:
Terreno com área de 3.062m², com projeto aprovado para construção de empreendimento turístico na tipologia de apartamentos turísticos, constituído por um conjunto de 10 unidades de alojamento (22 camas), respetivos serviços de apoio e jardim comum com piscina e estacionamentos. Com 1 a 2 pisos acima do solo e área bruta de construção de 775m².
A informação disponibilizada não dispensa a consulta de técnico especializado e/ou parecer das Autoridades competentes.
APRECIAÇÃO DO IMÓVEL:
Terreno com viabilidade aprovada pela Câmara Municipal de Mafra e pelo Turismo de Portugal, para construção de empreendimento turístico na tipologia de apartamentos turísticos com área de bruta de construção de 774m².
O projeto compreende um conjunto de 10 unidades de acomodação, juntamente com serviços de apoio, oferecendo um total de 32 camas.
Cada apartamento foi cuidadosamente projetado para incluir um hall de entrada, uma área de apoio para refeições, uma casa de banho e um acesso ao quarto. O quarto é amplo, com espaços distintos para dormir e relaxar.
Excelente investimento para quem procura boa rentabilidade no setor do turismo.
Uma área muito procurada, devido á proximidade da Reserva mundial de surf e primeira da Europa.
Venha conhecer este fantástico projeto!
INFORMAÇÕES COMPLEMENTARES:
- Áreas retiradas do projeto
* Toda a informação disponível não dispensa a confirmação por parte da mediadora bem como a consulta da documentação do imóvel. *
Localização
Ericeira, Mafra, Lisboa
Informação do anúncio
ID do anúncio
1726647
Referência Externa
ER-V24086
Atualizado em
26/04/2026 07:25:30
Anunciante
Chamada para a rede fixa nacional
A Casa das Casas
AMI 14377
Referência do imóvel:
ER-V24086
Terreno para Venda em Ericeira