Terreno para Venda em Ericeira
2.370.000 €
Tipo
Terreno
Negócio
Venda
Condição
Não aplicável
Certificado Energético
ND
Área do Terreno
21249 m²
Terreno - Ericeira centro 2 km, A Casa das Casas
Cond_
- NG_TC
A MAIS VALIA DO IMÓVEL:
Terreno com 21.249m², com projeto aprovado pelo Turismo de Portugal para empreendimento turístico de 4 estrelas.
DESCRIÇÃO DO IMÓVEL:
a. Área 21.249m²
b. Com viabilidade de construção
c. Com projeto aprovado pelo turismo de Portugal e em aprovação pela CMMafra
d. Área de construção aprovada 2.848,25m²
Composto por 30 unidades de Alojamento local, de Tipologias T1/T2 e T3 e 2 edifícios de apoio ao empreendimento, tendo na totalidade 2.848,25m² de construção e capacidade para 87 camas.
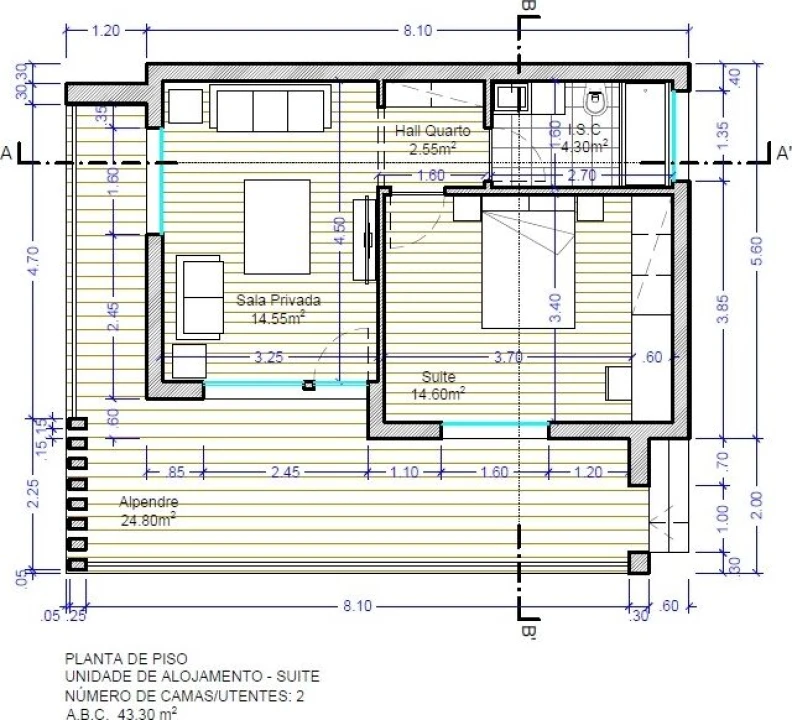
12 moradias T1 com área de 43,3m² e capacidade para 24 camas
12 moradias T2 com a área de 64,6m² e capacidade para 48 camas
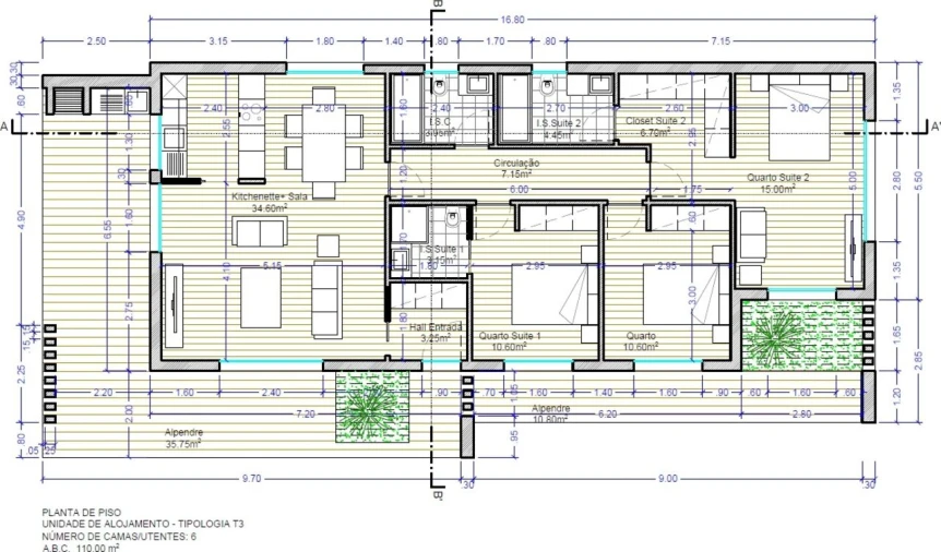
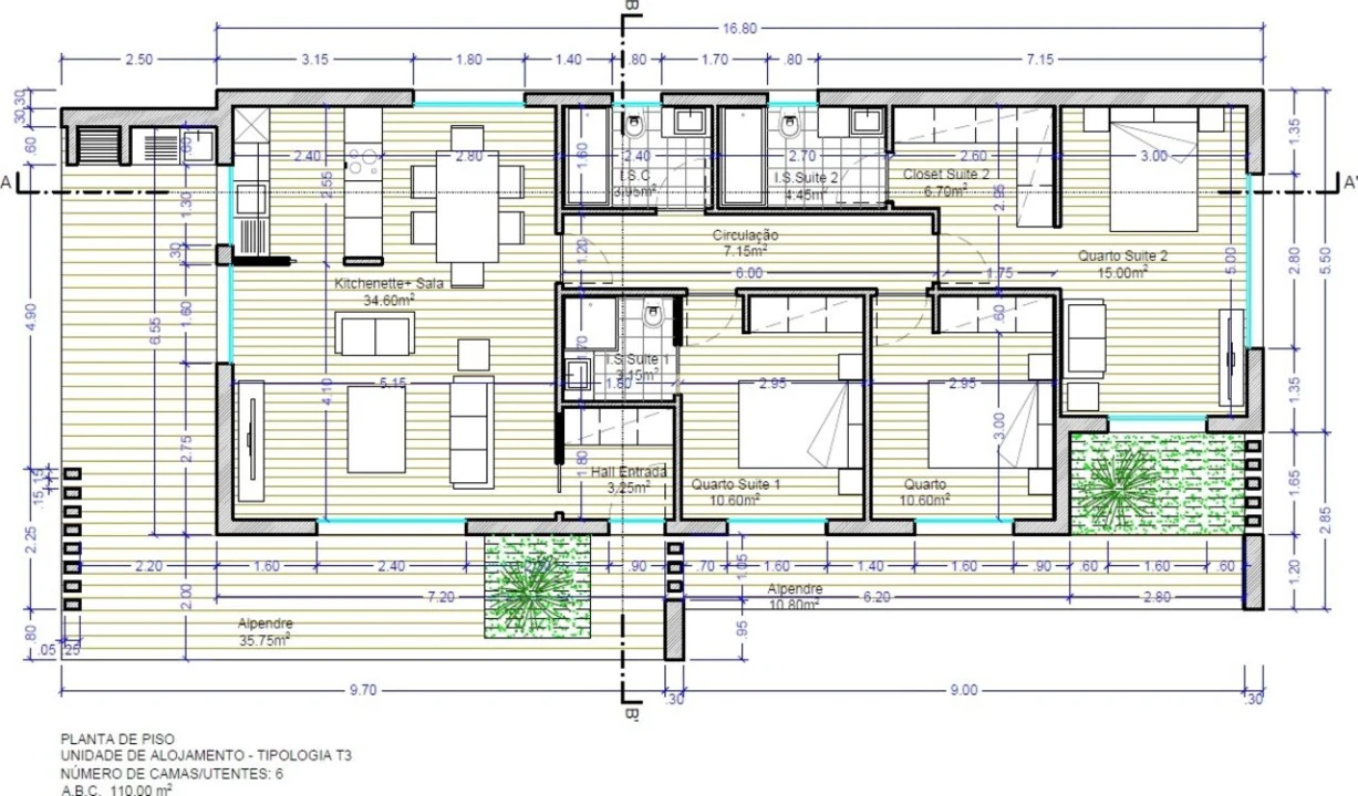
2 moradias T3 com a área de 110m² e capacidade para 12 camas
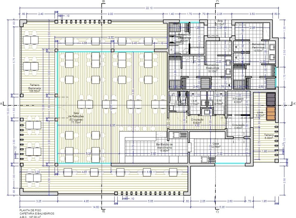
Edifício principal com receção, Bar, e 3 zonas de Alojamento com 3 camas com a área total de 254,9m².
Edifício de apoio à piscina, com restaurante e balneários com a área de 187m².
O empreendimento dispõe ainda de 36 lugares de estacionamento e lago artificial junto à piscina.
INFRAESTRUTURAS:
Iluminação pública
Saneamento básico
Luz
Gás
DESCRIÇÃO DETALHADA:
Terreno com área de 21.249m² com viabilidade aprovada em 19/10/2021, para construção de 30 unidades de alojamento local com 2.848,25m², com área de implantação máxima de 2.848,25m², com projeto. A área máxima de construção poderá ser no máximo de 2.848,25m² e/ou no máximo de 30 unidades de alojamento local.
APRECIAÇÃO DO IMÓVEL:
Vende-se terreno com aproximadamente 21.249m², situado numa localização privilegiada, a apenas 2 km do centro. Orientado a Sul, este espaço beneficia de excelente exposição solar ao longo de todo o dia.
Conta com projeto aprovado pelo Turismo de Portugal para a construção de um empreendimento turístico rural de 4 estrelas, uma oportunidade única para quem deseja investir no setor do turismo ou criar um refúgio de charme no coração da natureza.
Não perca a chance de adquirir este terreno com potencial extraordinário e transformar o seu projeto em realidade.
* Toda a informação disponível não dispensa a confirmação por parte da mediadora bem como a consulta da documentação do imóvel. *
- NG_TC
A MAIS VALIA DO IMÓVEL:
Terreno com 21.249m², com projeto aprovado pelo Turismo de Portugal para empreendimento turístico de 4 estrelas.
DESCRIÇÃO DO IMÓVEL:
a. Área 21.249m²
b. Com viabilidade de construção
c. Com projeto aprovado pelo turismo de Portugal e em aprovação pela CMMafra
d. Área de construção aprovada 2.848,25m²
Composto por 30 unidades de Alojamento local, de Tipologias T1/T2 e T3 e 2 edifícios de apoio ao empreendimento, tendo na totalidade 2.848,25m² de construção e capacidade para 87 camas.
12 moradias T1 com área de 43,3m² e capacidade para 24 camas
12 moradias T2 com a área de 64,6m² e capacidade para 48 camas
2 moradias T3 com a área de 110m² e capacidade para 12 camas
Edifício principal com receção, Bar, e 3 zonas de Alojamento com 3 camas com a área total de 254,9m².
Edifício de apoio à piscina, com restaurante e balneários com a área de 187m².
O empreendimento dispõe ainda de 36 lugares de estacionamento e lago artificial junto à piscina.
INFRAESTRUTURAS:
Iluminação pública
Saneamento básico
Luz
Gás
DESCRIÇÃO DETALHADA:
Terreno com área de 21.249m² com viabilidade aprovada em 19/10/2021, para construção de 30 unidades de alojamento local com 2.848,25m², com área de implantação máxima de 2.848,25m², com projeto. A área máxima de construção poderá ser no máximo de 2.848,25m² e/ou no máximo de 30 unidades de alojamento local.
APRECIAÇÃO DO IMÓVEL:
Vende-se terreno com aproximadamente 21.249m², situado numa localização privilegiada, a apenas 2 km do centro. Orientado a Sul, este espaço beneficia de excelente exposição solar ao longo de todo o dia.
Conta com projeto aprovado pelo Turismo de Portugal para a construção de um empreendimento turístico rural de 4 estrelas, uma oportunidade única para quem deseja investir no setor do turismo ou criar um refúgio de charme no coração da natureza.
Não perca a chance de adquirir este terreno com potencial extraordinário e transformar o seu projeto em realidade.
* Toda a informação disponível não dispensa a confirmação por parte da mediadora bem como a consulta da documentação do imóvel. *
Localização
Ericeira, Mafra, Lisboa
Informação do anúncio
ID do anúncio
1726648
Referência Externa
ER-V21210
Atualizado em
26/04/2026 07:25:31
Anunciante
Chamada para a rede fixa nacional
A Casa das Casas
AMI 14377
Referência do imóvel:
ER-V21210
Terreno para Venda em Ericeira