Terreno para Venda em Ericeira
150.000 €
Tipo
Terreno
Negócio
Venda
Condição
Não aplicável
Certificado Energético
ND
Área do Terreno
200 m²
Lote - Ericeira 2 km, A Casa das Casas
A MAIS VALIA DO IMÓVEL:
Lotes para moradias T3 ou T4 geminadas, localizadas numa urbanização pacata a 2km da Ericeira, ótima orientação solar
Lotes vendidos com comunicação previa do projeto a CMMafra
Existindo alguns com licença de construção já paga
DESCRIÇÃO DO IMÓVEL:
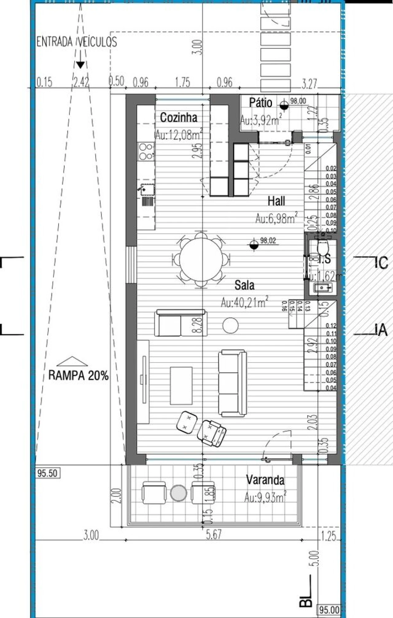
a. Área 200m²
b. Com viabilidade de construção
c. Com projeto aprovado (comunicação previa a CMMafra)
d. Área de construção aprovada 170m²
e. Licença a pagamento
f. Área máxima de construção aprovada até 170m²
INFRAESTRUTURAS:
Iluminação pública
Saneamento básico
Luz
Gás
Água
DESCRIÇÃO DETALHADA:
Lote com área de 200m², que permite a construção de moradia geminada, tendo como área de implantação máxima de 105m², com área bruta máxima de construção de 170m², distribuídos em 1 piso a baixo da cota soleira e dois acima da cota soleira (existem lotes que são 3 pisos acima da cota soleira, sendo do piso 0 garagem). Lote inserido em urbanização com projeto tipo.
A informação disponibilizada não dispensa a consulta de técnico especializado e/ou parecer das Autoridades competentes
APRECIAÇÃO DO IMÓVEL:
Loteamento de moradia geminadas, com excelente exposição solar, localizada numa pequena aldeia a 2 km da Ericeira.
Lotes vendidos com comunicação prévia do projeto à CMMafra (projeto só dará entrada na Câmara após o negócio efetivado).
Excelente exposição solar, Nascente-Sul-Poente, perto da Ericeira (cerca de 2 km do centro da vila).
Boa oportunidade de investimento!
INFORMAÇÕES COMPLEMENTARES:
- Áreas retiradas do quadro de síntese do alvará de loteamento aprovado
* Toda a informação disponível não dispensa a confirmação por parte da mediadora bem como a consulta da documentação do imóvel. *
Lotes para moradias T3 ou T4 geminadas, localizadas numa urbanização pacata a 2km da Ericeira, ótima orientação solar
Lotes vendidos com comunicação previa do projeto a CMMafra
Existindo alguns com licença de construção já paga
DESCRIÇÃO DO IMÓVEL:
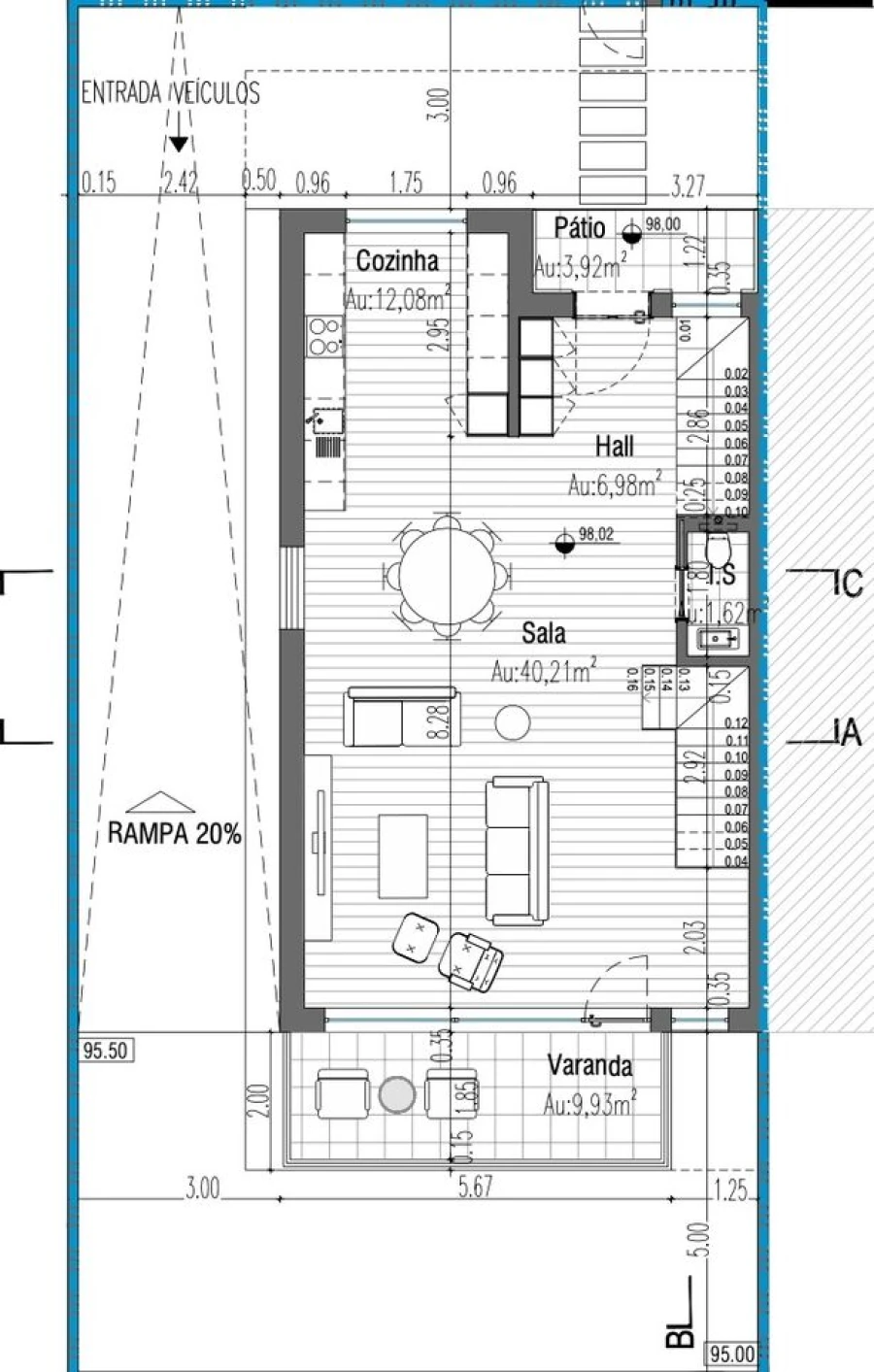
a. Área 200m²
b. Com viabilidade de construção
c. Com projeto aprovado (comunicação previa a CMMafra)
d. Área de construção aprovada 170m²
e. Licença a pagamento
f. Área máxima de construção aprovada até 170m²
INFRAESTRUTURAS:
Iluminação pública
Saneamento básico
Luz
Gás
Água
DESCRIÇÃO DETALHADA:
Lote com área de 200m², que permite a construção de moradia geminada, tendo como área de implantação máxima de 105m², com área bruta máxima de construção de 170m², distribuídos em 1 piso a baixo da cota soleira e dois acima da cota soleira (existem lotes que são 3 pisos acima da cota soleira, sendo do piso 0 garagem). Lote inserido em urbanização com projeto tipo.
A informação disponibilizada não dispensa a consulta de técnico especializado e/ou parecer das Autoridades competentes
APRECIAÇÃO DO IMÓVEL:
Loteamento de moradia geminadas, com excelente exposição solar, localizada numa pequena aldeia a 2 km da Ericeira.
Lotes vendidos com comunicação prévia do projeto à CMMafra (projeto só dará entrada na Câmara após o negócio efetivado).
Excelente exposição solar, Nascente-Sul-Poente, perto da Ericeira (cerca de 2 km do centro da vila).
Boa oportunidade de investimento!
INFORMAÇÕES COMPLEMENTARES:
- Áreas retiradas do quadro de síntese do alvará de loteamento aprovado
* Toda a informação disponível não dispensa a confirmação por parte da mediadora bem como a consulta da documentação do imóvel. *
Localização
Ericeira, Mafra, Lisboa
Informação do anúncio
ID do anúncio
1726668
Referência Externa
ER-V18168-1
Atualizado em
26/04/2026 07:25:32
Anunciante
Chamada para a rede fixa nacional
A Casa das Casas
AMI 14377
Referência do imóvel:
ER-V18168-1
Terreno para Venda em Ericeira