Voltar
Terreno para Venda em Boliqueime Foto 1
Terreno para Venda em Boliqueime Foto 2
Terreno para Venda em Boliqueime Foto 3
Terreno para Venda em Boliqueime Foto 4
Terreno para Venda em Boliqueime Foto 5

Terreno para Venda em Boliqueime

230.000 €

Tipo
Terreno
Negócio
Venda
Área Bruta
1884 m²
Área Útil
286 m²
Condição
Novo
Certificado Energético
Isento

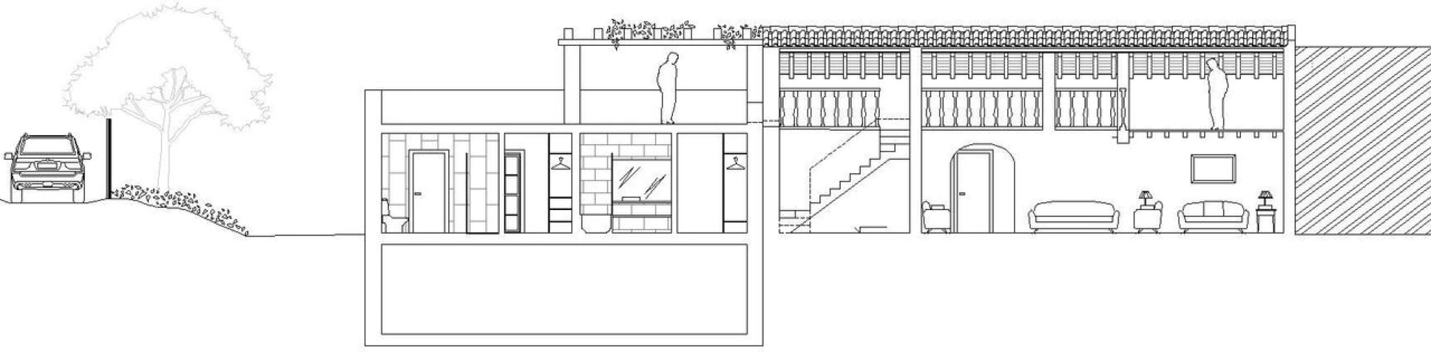
Terreno urbano para venda em Boliqueime com projeto aprovado

Terreno bem localizado com uma área total de 1884m², situado junto da vila de Boliqueime, com projecto aprovado para construção de moradia moderna de tipologia T4.
Excelente exposição solar e vistas sobre o mar e o campo.
Para mais informações contacte-nos.

Localização

Boliqueime, Loulé, Faro

Informação do anúncio

ID do anúncio 1727289
Referência Externa GA-1108
Atualizado em 05/04/2026 08:19:26
Gestalambre AMI 5729
Referência do imóvel: GA-1108
Phone
Chamada para a rede fixa nacional
Gestalambre AMI 5729
Referência do imóvel: GA-1108
Phone
Chamada para a rede fixa nacional
1 / 9
Terreno para Venda em Boliqueime Foto 1
Terreno para Venda em Boliqueime Foto 2
Terreno para Venda em Boliqueime Foto 3
Terreno para Venda em Boliqueime Foto 4
Terreno para Venda em Boliqueime Foto 5
Terreno para Venda em Boliqueime Foto 6
Terreno para Venda em Boliqueime Foto 7
Terreno para Venda em Boliqueime Foto 8
Terreno para Venda em Boliqueime Foto 9
Clicky