Voltar
Terreno para Venda em São Brás de Alportel Foto 1
Terreno para Venda em São Brás de Alportel Foto 2
Terreno para Venda em São Brás de Alportel Foto 3
Terreno para Venda em São Brás de Alportel Foto 4
Terreno para Venda em São Brás de Alportel Foto 5

Terreno para Venda em São Brás de Alportel

170.000 €

Tipo
Terreno
Negócio
Venda
Área Bruta
203 m²
Área Útil
203 m²
Condição
Novo
Certificado Energético
A
Área do Terreno
504 m²

Lote para construção de moradia com projeto aprovado - São Brás de Alportel

Lote de Terreno com 504.65m² com projeto aprovado para a construção de moradia T4 com cave, inserida num condomínio privado com 11 moradias, com piscina comum.
A licença de construção foi emitida em 9 de Dezembro de 2022, válidas por 18 meses (prorrogáveis).

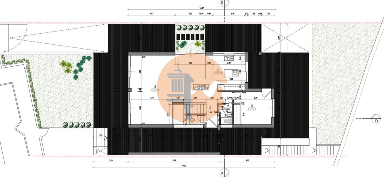
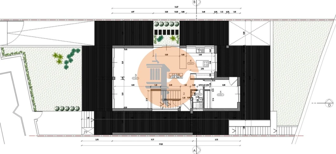
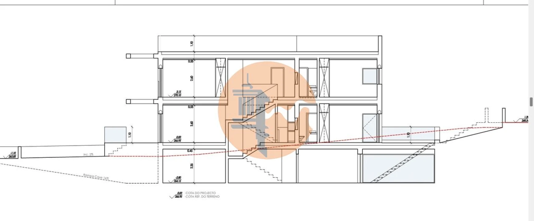
O projeto será para uma moradia de 2 pisos com 4 Quartos, cave com 242.48m², logradouro a frente e a trás.
Com localização privilegiada para quem gosta de viver num local tranquilo, contudo a apenas 3 minutos do centro de São Brás e de todos os serviços e escolas.
Venha conhecer este projeto e construa a sua casa de sonho!

Área total do lote: 504.65m²
Área de implantação do edifício: 113,25m²
Área coberta (cave + piso 0 + piso 1): 457.98m²

Rés-do-chão (113.25m²)
- Sala ampla com 51m²
- Cozinha com 15.40m²
- 1 WC completo
- 1 Quarto com 14m²

1º Piso (102.25m²)
- 1 Quarto com WC privativo e Closet (26m²)
- 1quarto com roupeiro (17m²)
- 1 Quarto com roupeiro (14m²)
- 1 WC completo

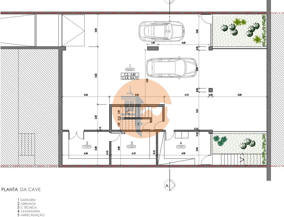
Cave (242.48m²)
- Cave ampla com possibilidade de estacionamento para vários carros, não só com acesso ao interior da moradia, bem como acesso direto ao logradouro de trás.
- Arrumos
- Zona Técnica
- Lavandaria
- Arrecadação
- Zona de Jardim

Cobertura (102.25m²)

Excelente oportunidade de investimento!

Localização

São Brás de Alportel, São Brás de Alportel, Faro

Informação do anúncio

ID do anúncio 1727957
Referência Externa SU-CS-LOT-91889
Atualizado em 26/03/2026 09:35:27
Around The Sun AMI 17215
Referência do imóvel: SU-CS-LOT-91889
Phone
Chamada para a rede fixa nacional
Around The Sun AMI 17215
Referência do imóvel: SU-CS-LOT-91889
Phone
Chamada para a rede fixa nacional
1 / 27
Terreno para Venda em São Brás de Alportel Foto 1
Terreno para Venda em São Brás de Alportel Foto 2
Terreno para Venda em São Brás de Alportel Foto 3
Terreno para Venda em São Brás de Alportel Foto 4
Terreno para Venda em São Brás de Alportel Foto 5
Terreno para Venda em São Brás de Alportel Foto 6
Terreno para Venda em São Brás de Alportel Foto 7
Terreno para Venda em São Brás de Alportel Foto 8
Terreno para Venda em São Brás de Alportel Foto 9
Terreno para Venda em São Brás de Alportel Foto 10
Terreno para Venda em São Brás de Alportel Foto 11
Terreno para Venda em São Brás de Alportel Foto 12
Terreno para Venda em São Brás de Alportel Foto 13
Terreno para Venda em São Brás de Alportel Foto 14
Terreno para Venda em São Brás de Alportel Foto 15
Terreno para Venda em São Brás de Alportel Foto 16
Terreno para Venda em São Brás de Alportel Foto 17
Terreno para Venda em São Brás de Alportel Foto 18
Terreno para Venda em São Brás de Alportel Foto 19
Terreno para Venda em São Brás de Alportel Foto 20
Terreno para Venda em São Brás de Alportel Foto 21
Terreno para Venda em São Brás de Alportel Foto 22
Terreno para Venda em São Brás de Alportel Foto 23
Terreno para Venda em São Brás de Alportel Foto 24
Terreno para Venda em São Brás de Alportel Foto 25
Terreno para Venda em São Brás de Alportel Foto 26
Terreno para Venda em São Brás de Alportel Foto 27
Clicky