Terreno para Venda em Ferreiras
7.500.000 €
Tipo
Terreno
Negócio
Venda
Área Bruta
14435 m²
Área Útil
12193 m²
Condição
Novo
Certificado Energético
Isento
Área do Terreno
31990 m²
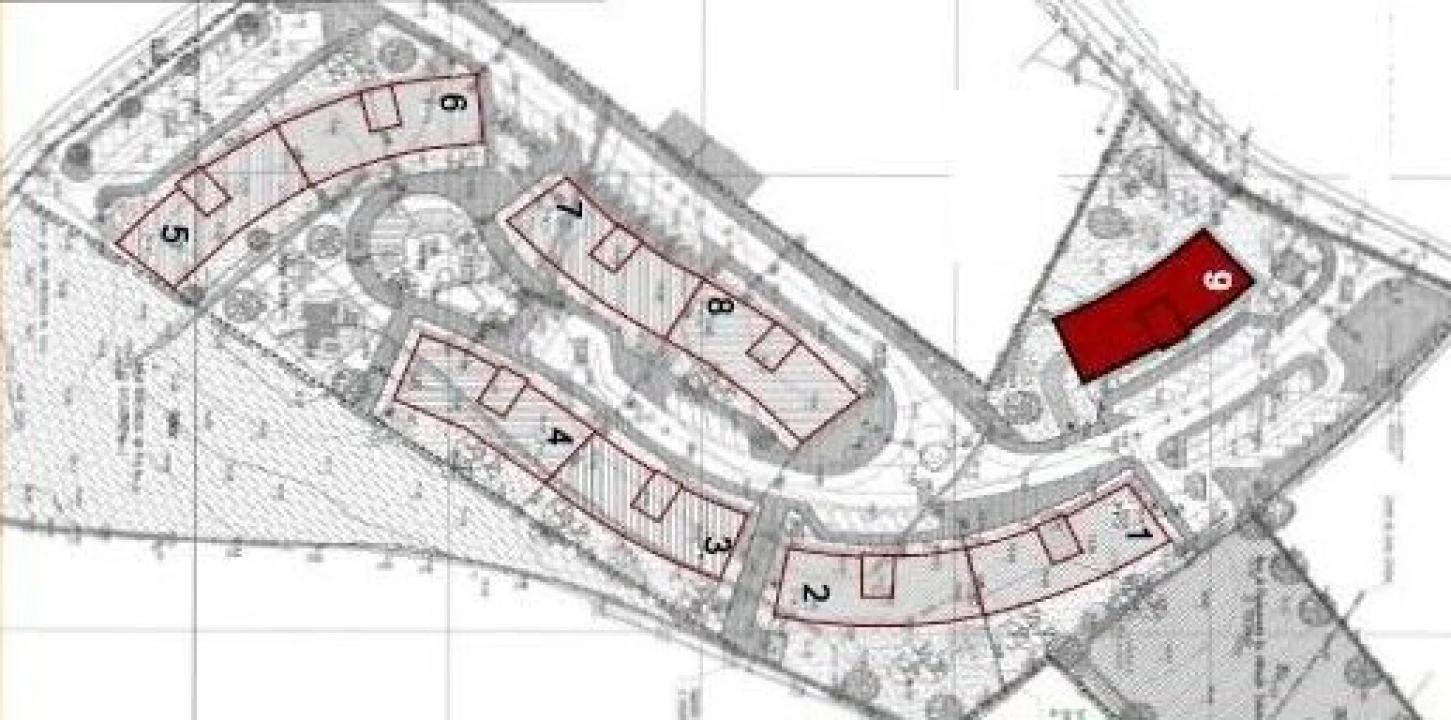
Loteamento para construção de 170 fogos - ferreiras
Bem no centro da Vila de Ferreiras, a poucos minutos de Albufeira, perto de todo o tipo de os bens e serviços.
Loteamento Habitacional constituído por 9 Lotes para a construção de 170 fogos de várias tipologias:
112 Apartamentos T1;
38 Apartamentos T2;
20 Apartamentos T3;
193 Lugares de estacionamento privados;
90 Lugares de estacionamento públicos;
1 Health Club;
Os lotes 1; 2; 3; 4; 6; 7 terão 3 pisos, os lotes 5 e 8 terão 2 pisos e o lote 9 tem previsto para o rés do chão o Health Club.
PONTOS DE INTERESSE:
Escola/Creche (1,5km), Infantário (600mts), Mercado (1,1km), Farmácia (1,2km), CTT (1,9km), Supermercado (300mts), Restaurantes (1km), Bares (1km), Estação Ferroviária (400mts), Algarve Shopping (3,6km), Praia (5,5km), Centro de Albufeira (6km), Hospital (4,8km), Terminal Rodoviário Albufeira (5,9km), Golfe (10km), Autoestrada (4,3km), Aeroporto Faro (35km).
Marque já a sua visita!
Loteamento Habitacional constituído por 9 Lotes para a construção de 170 fogos de várias tipologias:
112 Apartamentos T1;
38 Apartamentos T2;
20 Apartamentos T3;
193 Lugares de estacionamento privados;
90 Lugares de estacionamento públicos;
1 Health Club;
Os lotes 1; 2; 3; 4; 6; 7 terão 3 pisos, os lotes 5 e 8 terão 2 pisos e o lote 9 tem previsto para o rés do chão o Health Club.
PONTOS DE INTERESSE:
Escola/Creche (1,5km), Infantário (600mts), Mercado (1,1km), Farmácia (1,2km), CTT (1,9km), Supermercado (300mts), Restaurantes (1km), Bares (1km), Estação Ferroviária (400mts), Algarve Shopping (3,6km), Praia (5,5km), Centro de Albufeira (6km), Hospital (4,8km), Terminal Rodoviário Albufeira (5,9km), Golfe (10km), Autoestrada (4,3km), Aeroporto Faro (35km).
Marque já a sua visita!
Localização
Ferreiras, Albufeira, Faro
Informação do anúncio
ID do anúncio
1729415
Referência Externa
BI-CP010
Atualizado em
28/03/2026 09:01:17
Terreno para Venda em Ferreiras