Apartamento T2 para Venda em Beato
645.000 €
Tipo
Apartamento
Negócio
Venda
Quartos
2
Casas de Banho
3
Área Bruta
233 m²
Área Útil
220 m²
Condição
Não aplicável
Certificado Energético
ND
Descrição
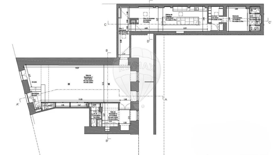
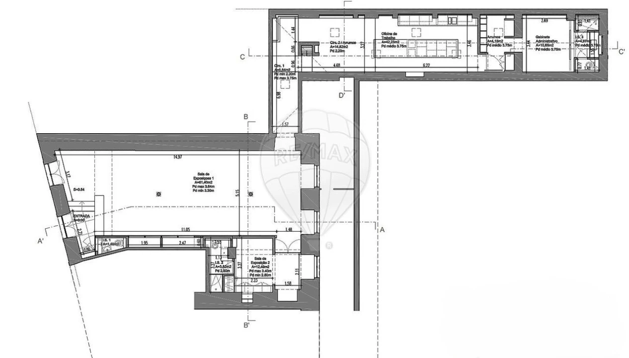
Apartamento T2 para venda - LOFT NO BEATO!
Loft único no Beato, com elevado potencial de valorização e ideal para quem
procura um espaço para transformar ao seu gosto. O imóvel, a necessitar de
obras de acabamento, apresenta áreas amplas, pé-direito alto e uma configuração versátil.
A zona social em open-space destaca-se pelos pilares originais em ferro
fundido do século XIX, que conferem caráter e um charme industrial. A zona
privada permite a criação de um, dois ou até três quartos, adaptando-se
facilmente às suas necessidades.
Localizado na Calçada do Duque de Lafões, junto ao Palácio do Grilo e
próximo do Convento do Beato, insere-se numa zona típica de Lisboa em forte
valorização, com comércio e restauração em crescimento e a poucos minutos do
rio. A apenas 10 minutos do Aeroporto de Lisboa.
O imóvel já tem afetação de habitação.
Marque a sua visita e descubra um imóvel cheio de personalidade e potencial.
2-Bedroom Apartment for Sale - Loft in Beato
Unique loft in Beato with high investment potential, ideal for those looking to create a space tailored to their own taste. The property requires renovation and offers generous areas, high ceilings, and a highly versatile layout.
The open-plan living area stands out for its original 19th-century cast-iron columns, adding character and an industrial charm. The private area allows for the creation of one, two, or even three bedrooms, easily adaptable to different needs.
Located on Calçada do Duque de Lafões, next to the Palácio do Grilo and close to the Convento do Beato, this property sits in a traditional Lisbon neighborhood undergoing strong appreciation, with growing local commerce and dining options, just minutes from the river. Only 10 minutes from Lisbon Airport.
The property is already degignated for residential use.
Schedule your visit and discover a property full of character and potential.
Loft único no Beato, com elevado potencial de valorização e ideal para quem
procura um espaço para transformar ao seu gosto. O imóvel, a necessitar de
obras de acabamento, apresenta áreas amplas, pé-direito alto e uma configuração versátil.
A zona social em open-space destaca-se pelos pilares originais em ferro
fundido do século XIX, que conferem caráter e um charme industrial. A zona
privada permite a criação de um, dois ou até três quartos, adaptando-se
facilmente às suas necessidades.
Localizado na Calçada do Duque de Lafões, junto ao Palácio do Grilo e
próximo do Convento do Beato, insere-se numa zona típica de Lisboa em forte
valorização, com comércio e restauração em crescimento e a poucos minutos do
rio. A apenas 10 minutos do Aeroporto de Lisboa.
O imóvel já tem afetação de habitação.
Marque a sua visita e descubra um imóvel cheio de personalidade e potencial.
2-Bedroom Apartment for Sale - Loft in Beato
Unique loft in Beato with high investment potential, ideal for those looking to create a space tailored to their own taste. The property requires renovation and offers generous areas, high ceilings, and a highly versatile layout.
The open-plan living area stands out for its original 19th-century cast-iron columns, adding character and an industrial charm. The private area allows for the creation of one, two, or even three bedrooms, easily adaptable to different needs.
Located on Calçada do Duque de Lafões, next to the Palácio do Grilo and close to the Convento do Beato, this property sits in a traditional Lisbon neighborhood undergoing strong appreciation, with growing local commerce and dining options, just minutes from the river. Only 10 minutes from Lisbon Airport.
The property is already degignated for residential use.
Schedule your visit and discover a property full of character and potential.
Localização
Beato, Lisboa, Lisboa
Informação do anúncio
ID do anúncio
1733315
Referência Externa
VA-125501009-528
Atualizado em
26/04/2026 07:36:50
Anunciante
Chamada para a rede fixa nacional
RE/MAX Collection Valor
AMI 6275
Referência do imóvel:
VA-125501009-528
Apartamento T2 para Venda em Beato