Terreno para Venda em Freiria
110.000 €
Tipo
Terreno
Negócio
Venda
Condição
Novo
Certificado Energético
Isento
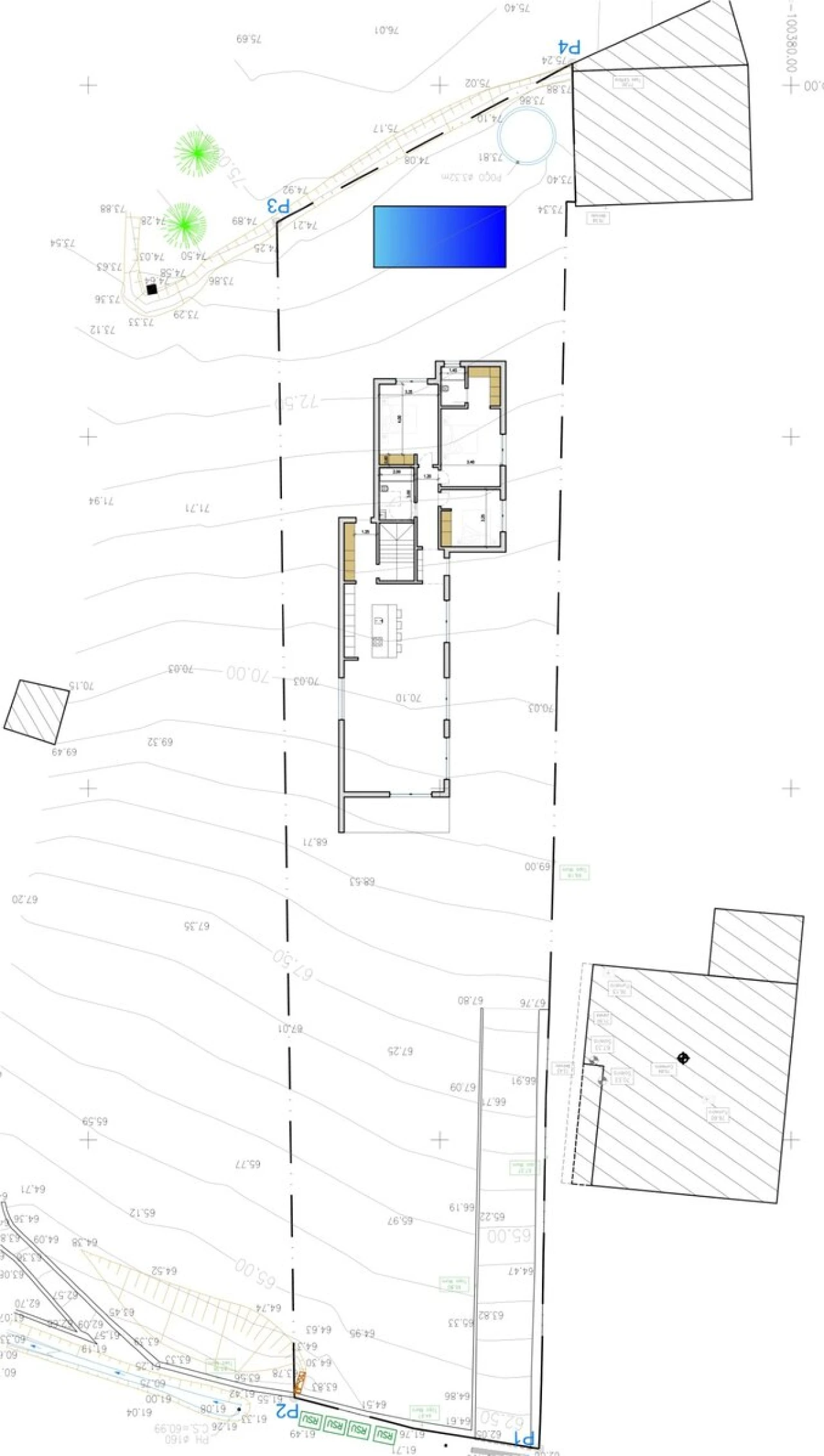
Área do Terreno
1324 m²
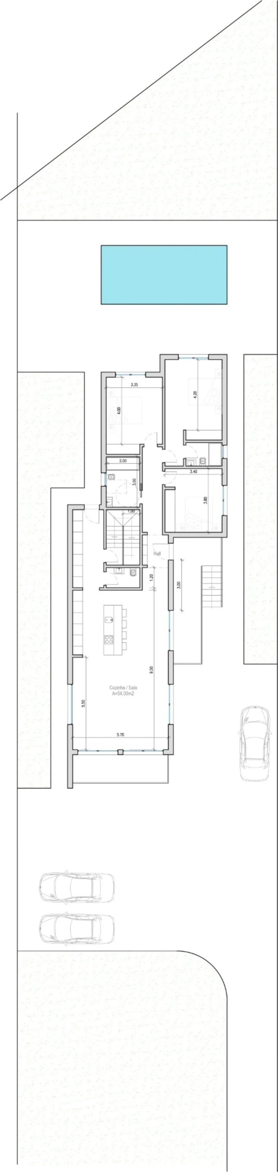
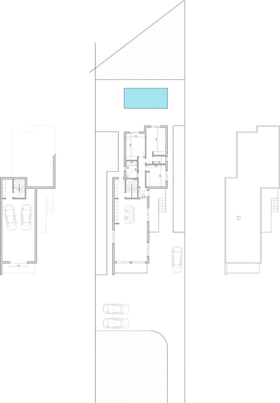
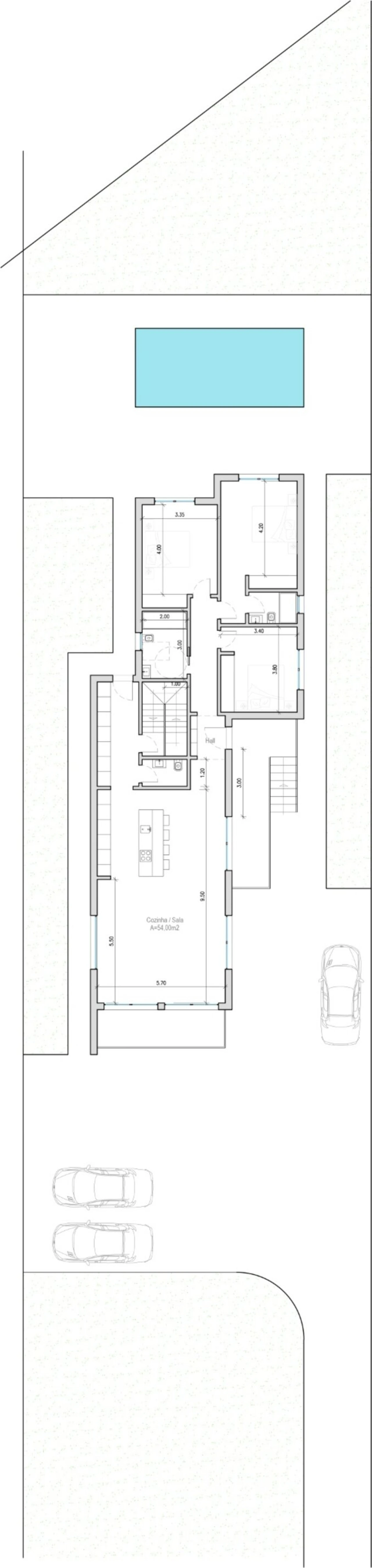
Terreno com projeto aprovado
Já imaginou construir a casa dos seus sonhos num local onde o horizonte não tem fim? Apresento-lhe este magnífico terreno com 1.324m², situado na tranquila localidade de Colaria, Freiria, no concelho de Torres Vedras.
Destaques que fazem a diferença:
Projeto Aprovado: Esqueça as burocracias e as longas esperas. Este terreno já conta com um projeto aprovado, pronto a avançar para a fase de construção.
Vista Desafogada: Desfrute de uma panorâmica deslumbrante e de uma exposição solar invejável. Onde a paz do campo encontra a proximidade da cidade.
Área Generosa: Com 1.324m², com 230m² de area util, terá espaço de sobra para jardim, piscina, horta biológica ou aquela área de lazer que sempre idealizou.
Comércio e Serviços: A poucos minutos de supermercados, farmácia, padarias tradicionais e cafés.
Educação: Proximidade de escolas de referência na região.
Acessos: Localizado a cerca de 15 minutos do centro de Torres Vedras e com excelentes acessos à A8, colocando Lisboa a apenas 45 minutos de distância.
Lazer: Perto das famosas praias da zona Oeste (Santa Cruz, Ericeira) para os seus fins de semana de descanso.
Não perca a oportunidade de investir num ativo com valorização garantida e pronto a construir.
Destaques que fazem a diferença:
Projeto Aprovado: Esqueça as burocracias e as longas esperas. Este terreno já conta com um projeto aprovado, pronto a avançar para a fase de construção.
Vista Desafogada: Desfrute de uma panorâmica deslumbrante e de uma exposição solar invejável. Onde a paz do campo encontra a proximidade da cidade.
Área Generosa: Com 1.324m², com 230m² de area util, terá espaço de sobra para jardim, piscina, horta biológica ou aquela área de lazer que sempre idealizou.
Comércio e Serviços: A poucos minutos de supermercados, farmácia, padarias tradicionais e cafés.
Educação: Proximidade de escolas de referência na região.
Acessos: Localizado a cerca de 15 minutos do centro de Torres Vedras e com excelentes acessos à A8, colocando Lisboa a apenas 45 minutos de distância.
Lazer: Perto das famosas praias da zona Oeste (Santa Cruz, Ericeira) para os seus fins de semana de descanso.
Não perca a oportunidade de investir num ativo com valorização garantida e pronto a construir.
Localização
Freiria, Torres Vedras, Lisboa
Informação do anúncio
ID do anúncio
1733891
Referência Externa
SF-SAFTI:008017
Atualizado em
26/04/2026 07:37:11
Terreno para Venda em Freiria