Voltar
Apartamento T3 para Venda em Quelfes Foto 1
Apartamento T3 para Venda em Quelfes Foto 2
Apartamento T3 para Venda em Quelfes Foto 3
Apartamento T3 para Venda em Quelfes Foto 4
Apartamento T3 para Venda em Quelfes Foto 5

Apartamento T3 para Venda em Quelfes

437.410 €

Tipo
Apartamento
Negócio
Venda
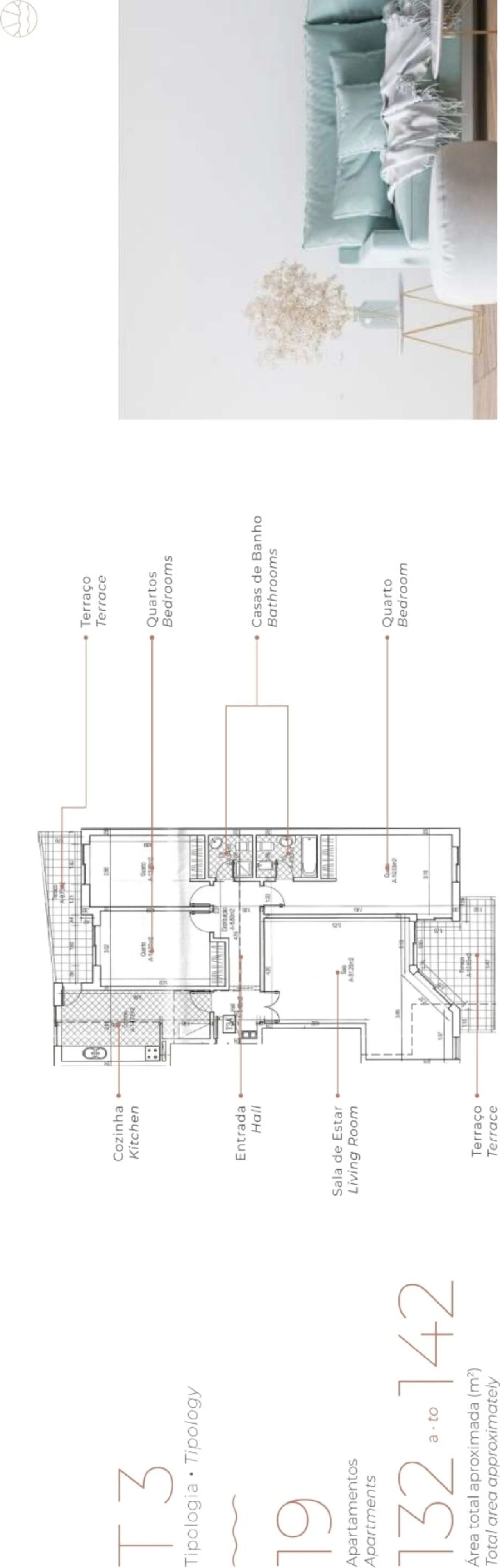
Quartos
3
Casas de Banho
2
Área Bruta
137 m²
Condição
Novo
Certificado Energético
Isento

NOVO Apartamento T3 Olhão

NOVOS pronto para escritura!
Apartamento inserido em condomínio com piscina, de design moderno e vastas áreas exteriores comuns, que são uma extensão dos apartamentos.
Os apartamentos estão inseridos em quatro blocos, num total de 45 apartamentos, numa excelente localização perto de zonas de comércio, zona de restauração e com facilidade de acesso ás principais vias (A22, Nacional 125).
A parte exterior do condomínio conta com um design moderno, podemos ainda contar com uma piscina comum.
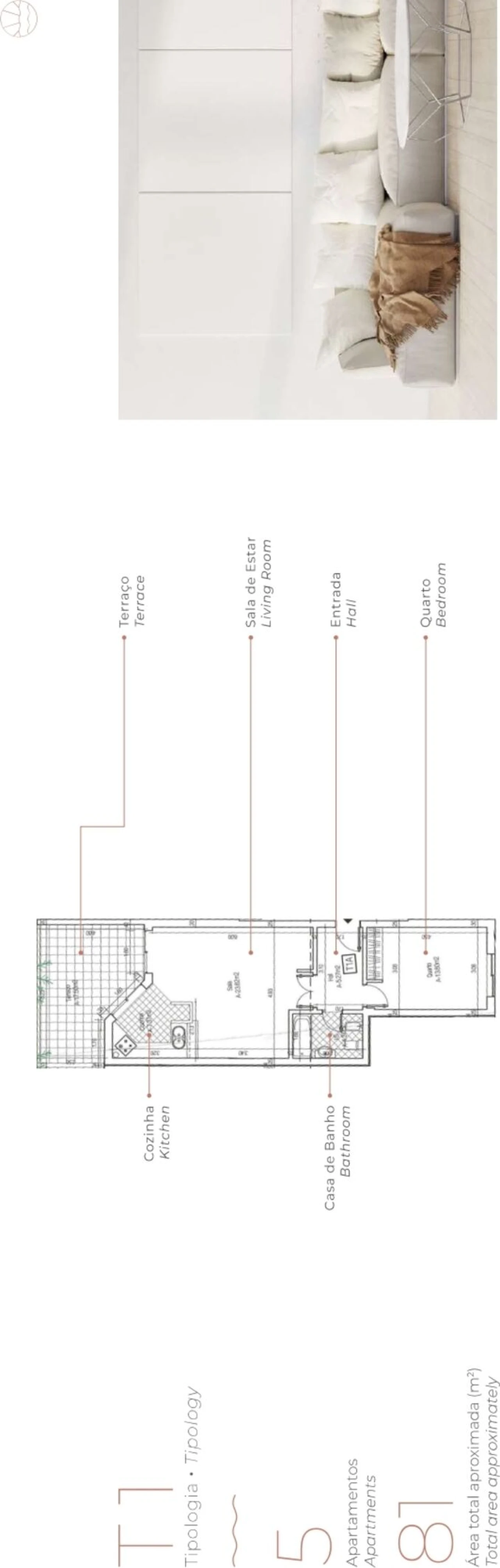
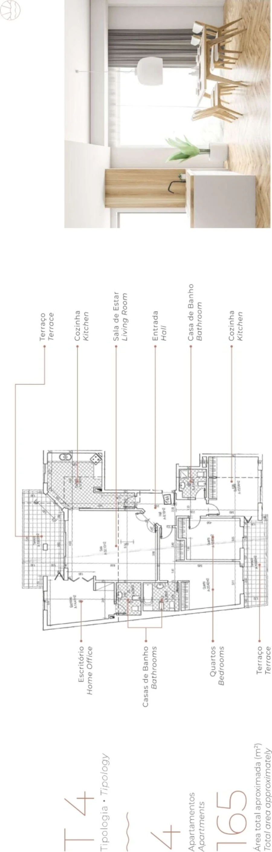
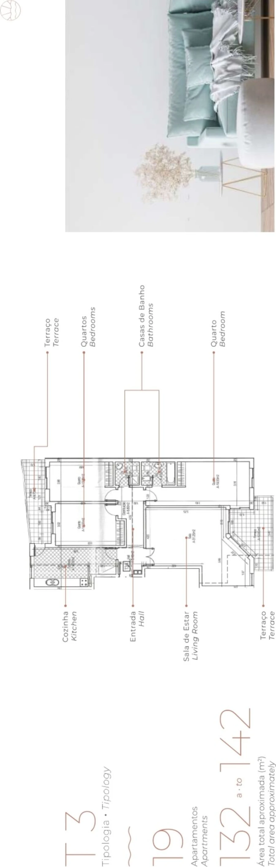
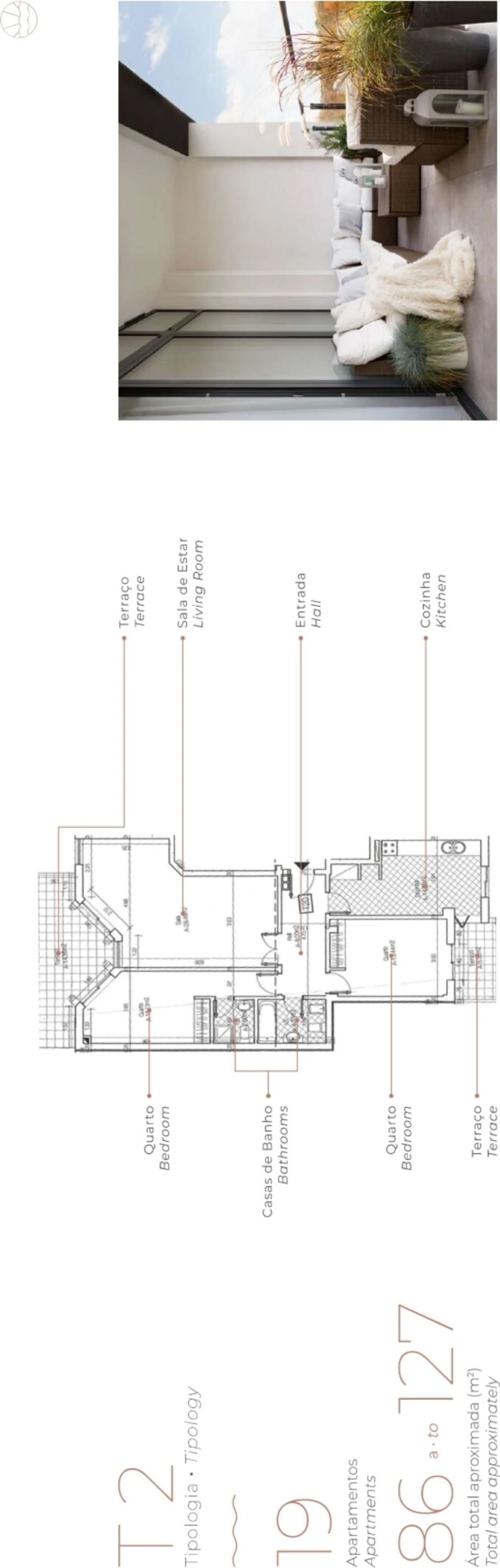
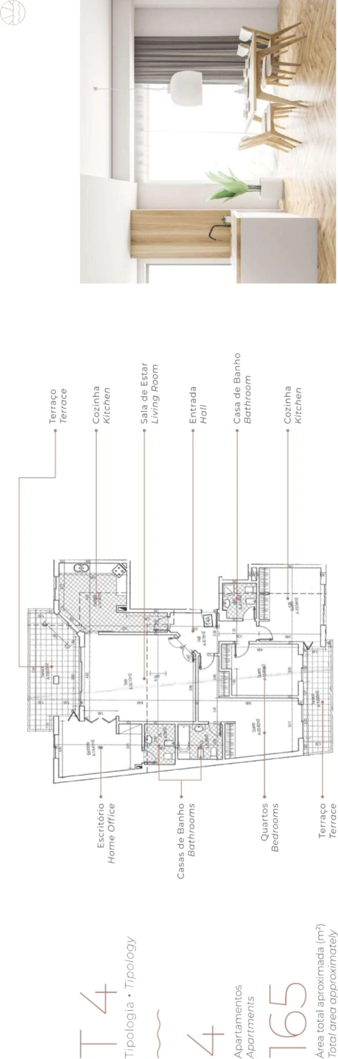
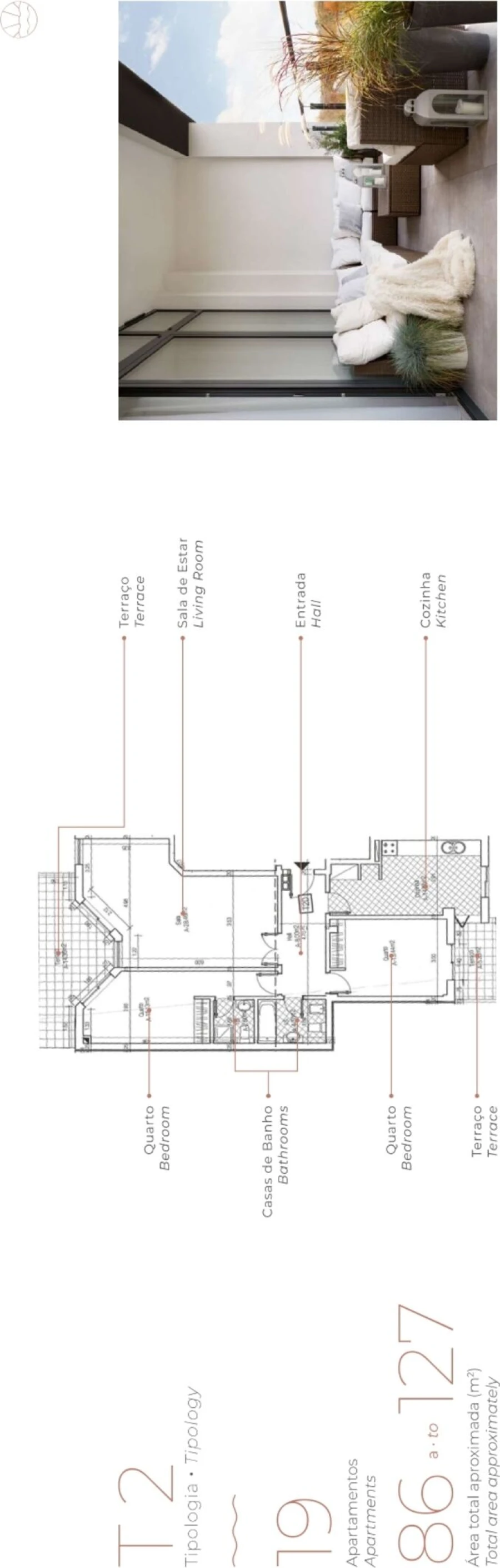
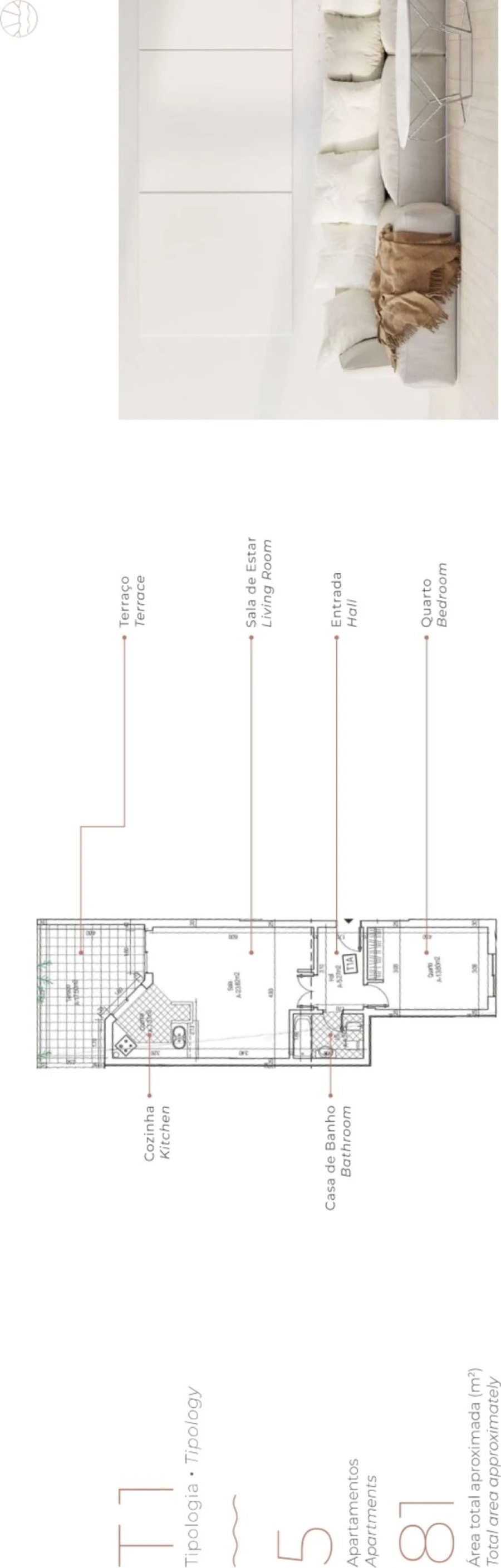
Os apartamentos T1 a T4 contam com áreas generosas, amplas e varandas alguns com vista sobre a Ria Formosa.
Cada apartamento é dotado de uma ampla sala comum com cozinha integrada e equipada, instalações sanitárias algumas em suite, e quartos com roupeiros. Os apartamentos têm estacionamento e arrecadação distribuídos pelo nível da cave.
A cidade de Olhão está localizada em pleno coração do Parque Natural da Ria Formosa, caracterizado por um extenso areal dourado e pelas suas ilhas para além do seu ecossistema único.

Localização

Quelfes, Olhão, Faro

Informação do anúncio

ID do anúncio 1734346
Referência Externa SF-SAFTI:004417
Atualizado em 03/04/2026 08:25:39
SAFTI AMI 17184
Referência do imóvel: SF-SAFTI:004417
Phone
Chamada para a rede fixa nacional
André Selas
Phone
Chamada para a rede móvel nacional
SAFTI AMI 17184
Referência do imóvel: SF-SAFTI:004417
Phone
Chamada para a rede fixa nacional
André Selas
Phone
Chamada para a rede móvel nacional
1 / 33
Apartamento T3 para Venda em Quelfes Foto 1
Apartamento T3 para Venda em Quelfes Foto 2
Apartamento T3 para Venda em Quelfes Foto 3
Apartamento T3 para Venda em Quelfes Foto 4
Apartamento T3 para Venda em Quelfes Foto 5
Apartamento T3 para Venda em Quelfes Foto 6
Apartamento T3 para Venda em Quelfes Foto 7
Apartamento T3 para Venda em Quelfes Foto 8
Apartamento T3 para Venda em Quelfes Foto 9
Apartamento T3 para Venda em Quelfes Foto 10
Apartamento T3 para Venda em Quelfes Foto 11
Apartamento T3 para Venda em Quelfes Foto 12
Apartamento T3 para Venda em Quelfes Foto 13
Apartamento T3 para Venda em Quelfes Foto 14
Apartamento T3 para Venda em Quelfes Foto 15
Apartamento T3 para Venda em Quelfes Foto 16
Apartamento T3 para Venda em Quelfes Foto 17
Apartamento T3 para Venda em Quelfes Foto 18
Apartamento T3 para Venda em Quelfes Foto 19
Apartamento T3 para Venda em Quelfes Foto 20
Apartamento T3 para Venda em Quelfes Foto 21
Apartamento T3 para Venda em Quelfes Foto 22
Apartamento T3 para Venda em Quelfes Foto 23
Apartamento T3 para Venda em Quelfes Foto 24
Apartamento T3 para Venda em Quelfes Foto 25
Apartamento T3 para Venda em Quelfes Foto 26
Apartamento T3 para Venda em Quelfes Foto 27
Apartamento T3 para Venda em Quelfes Foto 28
Apartamento T3 para Venda em Quelfes Foto 29
Apartamento T3 para Venda em Quelfes Foto 30
Apartamento T3 para Venda em Quelfes Foto 31
Apartamento T3 para Venda em Quelfes Foto 32
Apartamento T3 para Venda em Quelfes Foto 33
Clicky