Prédio para Venda em Almada, Cova da Piedade, Pragal e Cacilhas
980.000 €
Tipo
Prédio
Negócio
Venda
Área Bruta
303 m²
Área Útil
303 m²
Condição
Para Demolir ou Reconstruir
Certificado Energético
F
Prédio para reabilitação total- Cacilhas - Almada- Vista Tejo
Localizado no início da Rua Cândido dos Reis, em Cacilhas, o edifício insere-se numa zona de elevado tráfego pedonal, eixo de ligação entre o terminal dos cacilheiros e o acesso ao Cristo Rei, rodeado por diversos restaurantes de especialidade.
Prédio devoluto para reabilitação, localizado no início da Rua Cândido dos Reis, em Cacilhas, numa zona de elevado tráfego pedonal que liga o terminal dos cacilheiros ao acesso ao Cristo Rei, rodeado por diversos restaurantes de especialidade.
Inserido na praça principal, beneficia de uma posição privilegiada com vista desafogada sobre o rio Tejo, oferecendo forte visibilidade e elevado potencial comercial e turístico.
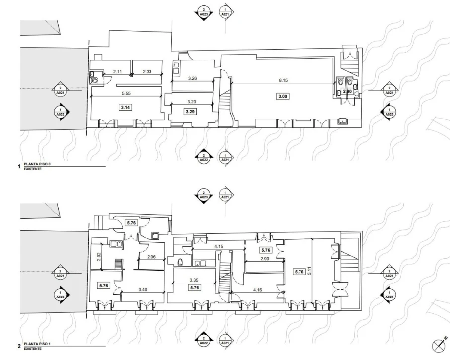
Atualmente, o imóvel encontra-se distribuído da seguinte forma:.
Rés-do-chão (comércio):
Loja com saída de fumos - 28,95 m²
Loja (antiga relojoaria) - 10 m²
Loja com saída de fumos - 57,30 m²
1.º piso (habitação):
Fração - 43,40 m²
Fração - 76,20 m²
Sótão:
Área aproximada - 102 m²
Área bruta total: 303 m² + 100m2 de esplanada
O potencial deste imóvel é verdadeiramente excecional, permitindo uma reabilitação com múltiplas valências desde restauração e comércio no piso térreo a habitação ou alojamento nos pisos superiores.
Uma oportunidade única para desenvolver um projeto distintivo numa das zonas mais emblemáticas e em crescente valorização do concelho de Almada.
Pela sua localização estratégica, este é um dos primeiros edifícios que os turistas encontram ao entrar na Rua Cândido dos Reis, principal eixo pedonal de acesso a uma das zonas mais visitadas da frente ribeirinha de Cacilhas e ponto de passagem para o Cristo Rei.
Acresce ainda o interesse e apoio demonstrado por entidades locais relativamente à reabilitação deste imóvel, o que reforça o seu enquadramento como projeto de elevado interesse urbanístico e comercial.
Num contexto de crescimento do turismo, dinamização da frente ribeirinha e valorização contínua de Cacilhas, este imóvel apresenta o enquadramento ideal para um projeto diferenciador, com forte potencial de valorização a médio e longo prazo.
Para investidores que procuram um ativo com identidade, localização e capacidade de transformação, este prédio representa uma oportunidade rara.
Esqueça Marvila, esqueça o Príncipe Real, esqueça o Bairro Alto. Tome nota: Cacilhas é a zona a acompanhar.
Prédio devoluto para reabilitação, localizado no início da Rua Cândido dos Reis, em Cacilhas, numa zona de elevado tráfego pedonal que liga o terminal dos cacilheiros ao acesso ao Cristo Rei, rodeado por diversos restaurantes de especialidade.
Inserido na praça principal, beneficia de uma posição privilegiada com vista desafogada sobre o rio Tejo, oferecendo forte visibilidade e elevado potencial comercial e turístico.
Atualmente, o imóvel encontra-se distribuído da seguinte forma:.
Rés-do-chão (comércio):
Loja com saída de fumos - 28,95 m²
Loja (antiga relojoaria) - 10 m²
Loja com saída de fumos - 57,30 m²
1.º piso (habitação):
Fração - 43,40 m²
Fração - 76,20 m²
Sótão:
Área aproximada - 102 m²
Área bruta total: 303 m² + 100m2 de esplanada
O potencial deste imóvel é verdadeiramente excecional, permitindo uma reabilitação com múltiplas valências desde restauração e comércio no piso térreo a habitação ou alojamento nos pisos superiores.
Uma oportunidade única para desenvolver um projeto distintivo numa das zonas mais emblemáticas e em crescente valorização do concelho de Almada.
Pela sua localização estratégica, este é um dos primeiros edifícios que os turistas encontram ao entrar na Rua Cândido dos Reis, principal eixo pedonal de acesso a uma das zonas mais visitadas da frente ribeirinha de Cacilhas e ponto de passagem para o Cristo Rei.
Acresce ainda o interesse e apoio demonstrado por entidades locais relativamente à reabilitação deste imóvel, o que reforça o seu enquadramento como projeto de elevado interesse urbanístico e comercial.
Num contexto de crescimento do turismo, dinamização da frente ribeirinha e valorização contínua de Cacilhas, este imóvel apresenta o enquadramento ideal para um projeto diferenciador, com forte potencial de valorização a médio e longo prazo.
Para investidores que procuram um ativo com identidade, localização e capacidade de transformação, este prédio representa uma oportunidade rara.
Esqueça Marvila, esqueça o Príncipe Real, esqueça o Bairro Alto. Tome nota: Cacilhas é a zona a acompanhar.
Localização
Almada, Cova da Piedade, Pragal e Cacilhas, Almada, Setúbal
Informação do anúncio
ID do anúncio
1737192
Referência Externa
MM0103
Atualizado em
23/04/2026 03:07:04
Consultor
Central Lisbon Real estate
Prédio para Venda em Almada, Cova da Piedade, Pragal e Cacilhas