Moradia T3 para Venda em Oleiros
429.900 €
Tipo
Moradia
Negócio
Venda
Quartos
3
Casas de Banho
3
Área Bruta
222 m²
Área Útil
222 m²
Garagem
2 lugares
Condição
Usado
Certificado Energético
A+
Área do Terreno
675 m²
Descrição
Identificação do imóvel: ZMPT586979
Moradia individual térrea T3 com escritório, situada em Oleiros, Vila Verde, a apenas 12 minutos de Braga.
Uma localização que conjuga tranquilidade, privacidade e proximidade urbana.
Implantada num generoso lote de 675 m², esta propriedade destaca-se pela sua funcionalidade, luminosidade e excelente ligação entre os espaços interiores e exteriores, proporcionando um estilo de vida confortável e harmonioso.
Existe ainda possibilidade de adquirir lote de terreno adjacente com 492 m2, perfazendo um total de 1.167 m2.
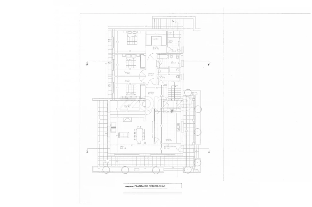
Ao nível do piso térreo, encontramos um hall de entrada amplo com roupeiro embutido, que nos conduz a uma zona social moderna e acolhedora. A cozinha ampla em conceito open space, totalmente mobilada e equipada, dispõe de porta de correr, garantindo versatilidade. A sala espaçosa com recuperador de calor a lenha oferece acesso direto ao jardim, ideal para momentos de lazer. Ainda nesta área, dispõe de um escritório, perfeito para trabalho remoto, e uma casa de banho de serviço completa com base de chuveiro.
A zona privada é composta por um hall de quartos amplo, 2 quartos com roupeiros embutidos, uma casa de banho completa com banheira, e uma suíte com closet e casa de banho privativa com base de chuveiro.
Destaca-se o facto de todas as divisões (exceto casas de banho) terem acesso direto ao exterior, reforçando a luminosidade natural e a ligação ao jardim.
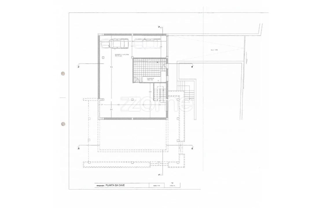
Na cave, a moradia oferece uma garagem para 2 carros, zona de arrumos, uma sala de convívio, lavandaria/casa das máquinas e espaços adicionais que aumentam a funcionalidade do imóvel.
No exterior, encontra um amplo jardim em toda a envolvência da moradia, proporcionando privacidade e um ambiente perfeito para desfrutar ao ar livre.
Em termos de conforto e eficiência, a habitação está equipada com:
- Painéis solares fotovoltaicos
- Aquecimento central a lenha
- Caixilharia em PVC com vidro duplo
- Sistema de alarme e CCTV (Vídeo-vigilância)
Pontos de interesse próximos:
- Pastelaria Nascer do Sol 5 min a pé (300 metros);
- Centro de Negócios de Oleiros/ Zona industrial 1 min (250 metros);
- Jardim de Infância e Escola 1º Ciclo de Oleiros 3 min (1.5km)
- Estrada N205 a 3 min (1,8 km);
- Estrada N201 a 5 min (2.6km);
- Vila de Prado (Farmácias, Centro de Saúde, Supermercados, Restaurantes) 5 min (3km);
- Vila Verde 10 min (8.5km);
- Braga 12 min (10km);
- Barcelos 20 min (16km);
Com uma área bruta de construção de 352 m² e 222 m² de área privativa, esta é uma excelente oportunidade para quem procura uma moradia térrea, moderna e funcional, numa zona tranquila e próxima da cidade.
Não perca esta oportunidade e agende já a sua visita!
3 razões para comprar com a Zome
+ acompanhamento
Com uma preparação e experiência única no mercado imobiliário, os consultores Zome põem toda a sua dedicação em dar-lhe o melhor acompanhamento, orientando-o com a máxima confiança, na direção certa das suas necessidades e ambições.
Daqui para a frente, vamos criar uma relação próxima e escutar com atenção as suas expectativas, porque a nossa prioridade é a sua felicidade! Porque é importante que sinta que está acompanhado, e que estamos consigo sempre.
+ simples
Os consultores Zome têm uma formação única no mercado, ancorada na partilha de experiência prática entre profissionais e fortalecida pelo conhecimento de neurociência aplicada que lhes permite simplificar e tornar mais eficaz a sua experiência imobiliária.
Deixe para trás os pesadelos burocráticos porque na Zome encontra o apoio total de uma equipa experiente e multidisciplinar que lhe dá suporte prático em todos os aspetos fundamentais, para que a sua experiência imobiliária supere as expectativas.
+ feliz
O nosso maior valor é entregar-lhe felicidade!
Liberte-se de preocupações e ganhe o tempo de qualidade que necessita para se dedicar ao que lhe faz mais feliz.
Agimos diariamente para trazer mais valor à sua vida com o aconselhamento fiável de que precisa para, juntos, conseguirmos atingir os melhores resultados.
Com a Zome nunca vai estar perdido ou desacompanhado e encontrará algo que não tem preço: a sua máxima tranquilidade!
É assim que se vai sentir ao longo de toda a experiência: Tranquilo, seguro, confortável e... FELIZ!
Notas:
1. Caso seja um consultor imobiliário, este imóvel está disponível para partilha de negócio. Não hesite em apresentar aos seus clientes compradores e fale connosco para agendar a sua visita.
2. Para maior facilidade na identificação deste imóvel, por favor, refira o respetivo ID ZMPT ou o respetivo agente que lhe tenha enviado a sugestão.
Moradia individual térrea T3 com escritório, situada em Oleiros, Vila Verde, a apenas 12 minutos de Braga.
Uma localização que conjuga tranquilidade, privacidade e proximidade urbana.
Implantada num generoso lote de 675 m², esta propriedade destaca-se pela sua funcionalidade, luminosidade e excelente ligação entre os espaços interiores e exteriores, proporcionando um estilo de vida confortável e harmonioso.
Existe ainda possibilidade de adquirir lote de terreno adjacente com 492 m2, perfazendo um total de 1.167 m2.
Ao nível do piso térreo, encontramos um hall de entrada amplo com roupeiro embutido, que nos conduz a uma zona social moderna e acolhedora. A cozinha ampla em conceito open space, totalmente mobilada e equipada, dispõe de porta de correr, garantindo versatilidade. A sala espaçosa com recuperador de calor a lenha oferece acesso direto ao jardim, ideal para momentos de lazer. Ainda nesta área, dispõe de um escritório, perfeito para trabalho remoto, e uma casa de banho de serviço completa com base de chuveiro.
A zona privada é composta por um hall de quartos amplo, 2 quartos com roupeiros embutidos, uma casa de banho completa com banheira, e uma suíte com closet e casa de banho privativa com base de chuveiro.
Destaca-se o facto de todas as divisões (exceto casas de banho) terem acesso direto ao exterior, reforçando a luminosidade natural e a ligação ao jardim.
Na cave, a moradia oferece uma garagem para 2 carros, zona de arrumos, uma sala de convívio, lavandaria/casa das máquinas e espaços adicionais que aumentam a funcionalidade do imóvel.
No exterior, encontra um amplo jardim em toda a envolvência da moradia, proporcionando privacidade e um ambiente perfeito para desfrutar ao ar livre.
Em termos de conforto e eficiência, a habitação está equipada com:
- Painéis solares fotovoltaicos
- Aquecimento central a lenha
- Caixilharia em PVC com vidro duplo
- Sistema de alarme e CCTV (Vídeo-vigilância)
Pontos de interesse próximos:
- Pastelaria Nascer do Sol 5 min a pé (300 metros);
- Centro de Negócios de Oleiros/ Zona industrial 1 min (250 metros);
- Jardim de Infância e Escola 1º Ciclo de Oleiros 3 min (1.5km)
- Estrada N205 a 3 min (1,8 km);
- Estrada N201 a 5 min (2.6km);
- Vila de Prado (Farmácias, Centro de Saúde, Supermercados, Restaurantes) 5 min (3km);
- Vila Verde 10 min (8.5km);
- Braga 12 min (10km);
- Barcelos 20 min (16km);
Com uma área bruta de construção de 352 m² e 222 m² de área privativa, esta é uma excelente oportunidade para quem procura uma moradia térrea, moderna e funcional, numa zona tranquila e próxima da cidade.
Não perca esta oportunidade e agende já a sua visita!
3 razões para comprar com a Zome
+ acompanhamento
Com uma preparação e experiência única no mercado imobiliário, os consultores Zome põem toda a sua dedicação em dar-lhe o melhor acompanhamento, orientando-o com a máxima confiança, na direção certa das suas necessidades e ambições.
Daqui para a frente, vamos criar uma relação próxima e escutar com atenção as suas expectativas, porque a nossa prioridade é a sua felicidade! Porque é importante que sinta que está acompanhado, e que estamos consigo sempre.
+ simples
Os consultores Zome têm uma formação única no mercado, ancorada na partilha de experiência prática entre profissionais e fortalecida pelo conhecimento de neurociência aplicada que lhes permite simplificar e tornar mais eficaz a sua experiência imobiliária.
Deixe para trás os pesadelos burocráticos porque na Zome encontra o apoio total de uma equipa experiente e multidisciplinar que lhe dá suporte prático em todos os aspetos fundamentais, para que a sua experiência imobiliária supere as expectativas.
+ feliz
O nosso maior valor é entregar-lhe felicidade!
Liberte-se de preocupações e ganhe o tempo de qualidade que necessita para se dedicar ao que lhe faz mais feliz.
Agimos diariamente para trazer mais valor à sua vida com o aconselhamento fiável de que precisa para, juntos, conseguirmos atingir os melhores resultados.
Com a Zome nunca vai estar perdido ou desacompanhado e encontrará algo que não tem preço: a sua máxima tranquilidade!
É assim que se vai sentir ao longo de toda a experiência: Tranquilo, seguro, confortável e... FELIZ!
Notas:
1. Caso seja um consultor imobiliário, este imóvel está disponível para partilha de negócio. Não hesite em apresentar aos seus clientes compradores e fale connosco para agendar a sua visita.
2. Para maior facilidade na identificação deste imóvel, por favor, refira o respetivo ID ZMPT ou o respetivo agente que lhe tenha enviado a sugestão.
Localização
Rua do Monte
Oleiros, Vila Verde, Braga
A localização exacta do imóvel não está disponível. O mapa apresenta a zona aproximada.
Informação do anúncio
ID do anúncio
1737202
Referência Externa
ZMPT586979
Atualizado em
17/05/2026 06:03:09
Moradia T3 para Venda em Oleiros