Apartamento T2 com Parqueamento e 2 Arrecadações | Casal da Carochia, Ramada
Ref.ª: Apartamento T2 com Parqueamento e 2 Arrecadações | Casal da Carochia, Ramada
Apartamento de tipologia T2 em excelente estado de conservação, situado numa urbanização calma e sobretudo residencial, com acesso a todo o tipo de comércio e serviços.
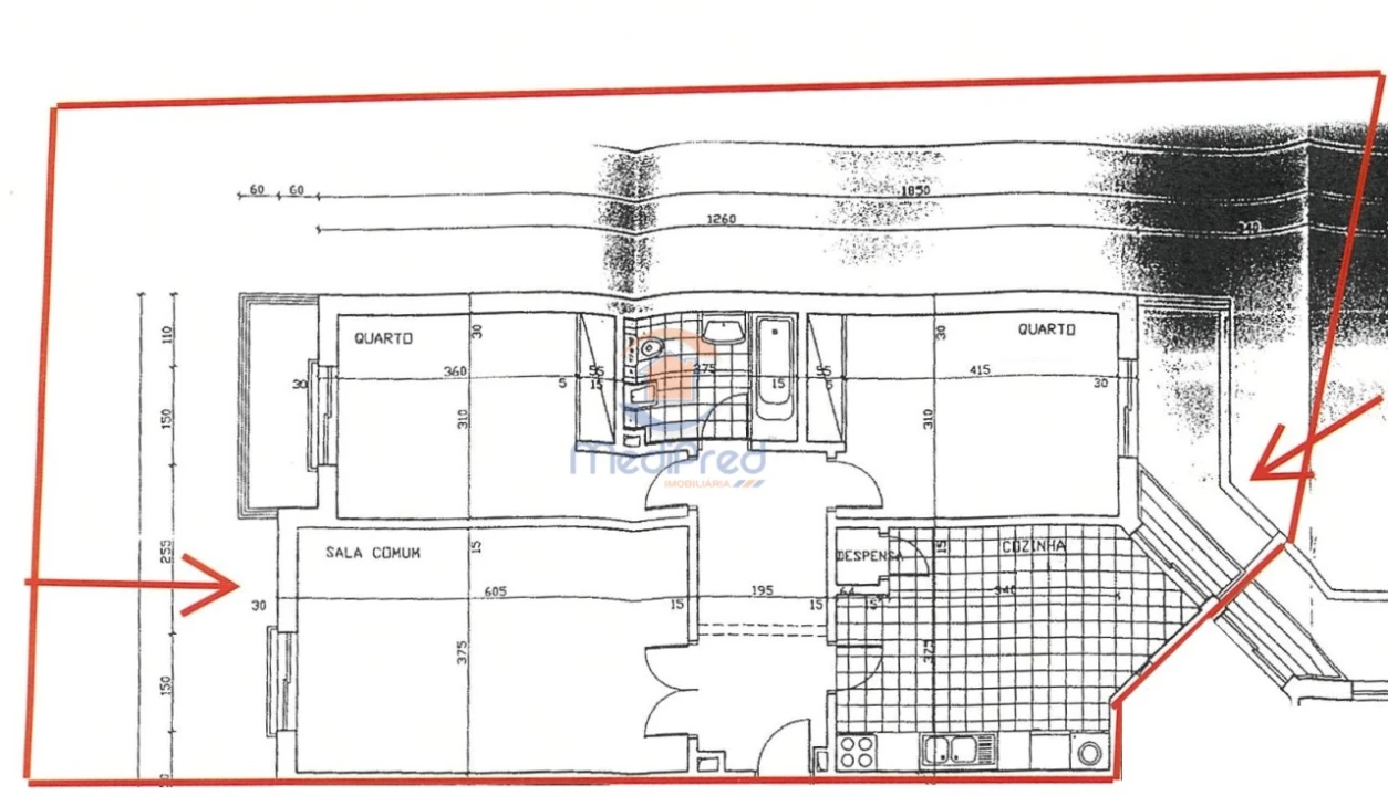
Localizado na Carochia, na Ramada, este imóvel reúne uma área útil de 96 m2 e dispõe de 2 arrecadações e 1 lugar de parqueamento.
A cozinha de 18,5 m2 encontra-se totalmente equipada - placa, frigorífico americano, exaustor, forno, microondas, máquina de lavar louça e máquina de lavar roupa. Conta ainda com o apoio de uma despensa.
A sala é bastante luminosa e espaçosa, com 24 m2.
Os dois quartos (14,7 m2 e 14,5 m2) dispõem de roupeiros embutidos.
O WC (5 m2) possui um móvel suspenso com dois lavatórios e uma banheira.
Para maximizar o espaço e arrumação, o hall de entrada (10 m2) conta com um roupeiro.
Esta fração tem ao dispor um lugar de parqueamento, com excelente acesso (entrada direta e de manobra fácil) e 2 arrecadações - uma junto ao parqueamento ( 6,20 m2) e outra situada no sótão com 6,5 m2.
Futuramente, esta localização contará com proximidade à Linha Violeta do Metropolitano de Lisboa - Metro Ligeiro de Superfície - que ligará o concelho de Odivelas ao concelho de Loures, começando junto ao Hospital Beatriz Ângelo, incluindo paragens no Jardim da Radial, Ramada (escolas), Ribeirada, Póvoa de Santo Adrião, Flamenga, Quinta do Almirante (entre outros), com uma interface na Estação de Odivelas (Linha Amarela).
Este projeto irá valorizar a localização e acessibilidade do seu futuro imóvel.
Contacte-nos para mais informações.
Marque já a sua visita!