Terreno (com projeto aprovado) - Cabo do Mundo (Praia) - Matosinhos
Terreno (com projeto aprovado) - Cabo do Mundo (Praia) - Matosinhos
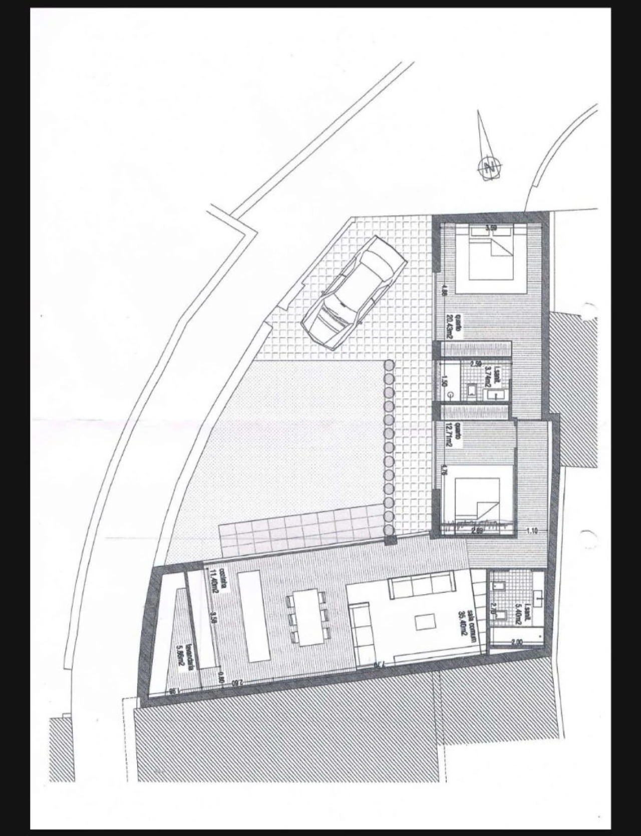
Ótimo terreno de 206m2 com projeto de construção aprovado e licença emitida (pronto a arrancar), para uma moradia T2 totalmente térrea e construída em L, casa com 123m2 de área total e com uma arquitetura super moderna.
Projeto com 2 quartos (sendo uma suite), lavandaria independente, cozinha com balcão/ilha, sala/cozinha com cerca de 47m2, etc…
(Possibilidade de chave na mão em 2 anos)
Inserido em zona residencial/rural muito tranquila, próximo das praias e com tudo nas proximidades (Hipermercados, escolas, transportes, piscinas e complexos desportivos, autoestrada A28, etc…)
Preço: 122.500€
Localização
Perafita, Lavra e Santa Cruz do Bispo, Matosinhos, Porto
Este site utiliza cookies. Ao navegar no site estará a consentir a sua utilização. Para mais informações sobre os cookies pode consultar a
política de privacidade.