Terreno para Venda em Almancil
1.500.000 €
Tipo
Terreno
Negócio
Venda
Condição
Não Aplicável
Área do Terreno
5837 m²
Terreno na EN125 com Viabilidade Comercial e Industrial
Excelente acessibilidade e potencial construtivo
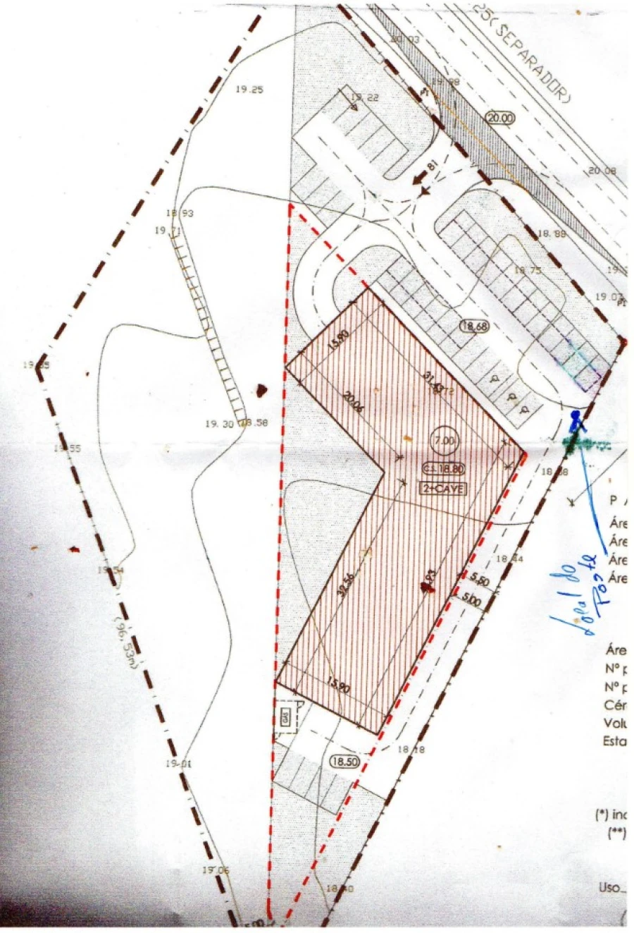
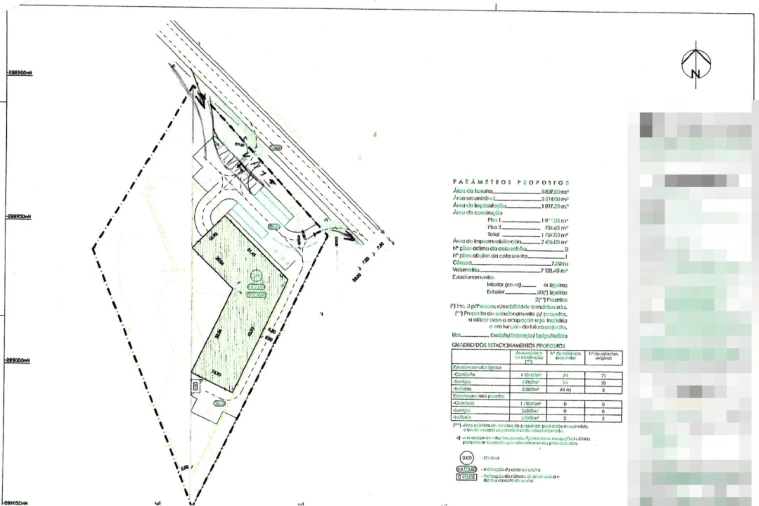
Terreno de área total de 5.837m², localizado junto à EN125, beneficiando de elevada visibilidade e acessos facilitados a ligação de serviços da rede pública.
Teve pedido de informação prévia aprovado para construção de armazém com cave e estacionamentos, destinado a fins comerciais, restauração e atividades industriais.
Uma excelente oportunidade para desenvolvimento empresarial numa das principais vias de circulação da região, com ligação estratégica às cidades do Algarve.
Marque já a sua visita através do nosso website! (Visite a seção vídeos para ficar a saber como o fazer!) Todos os agendamentos estão sujeitos a confirmação telefónica.
Para mais informações não hesite em contactar.
'A SUA CASA NO ALGARVE'
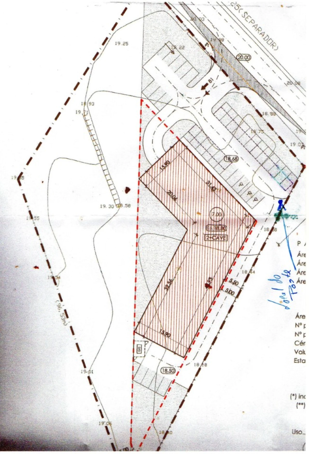
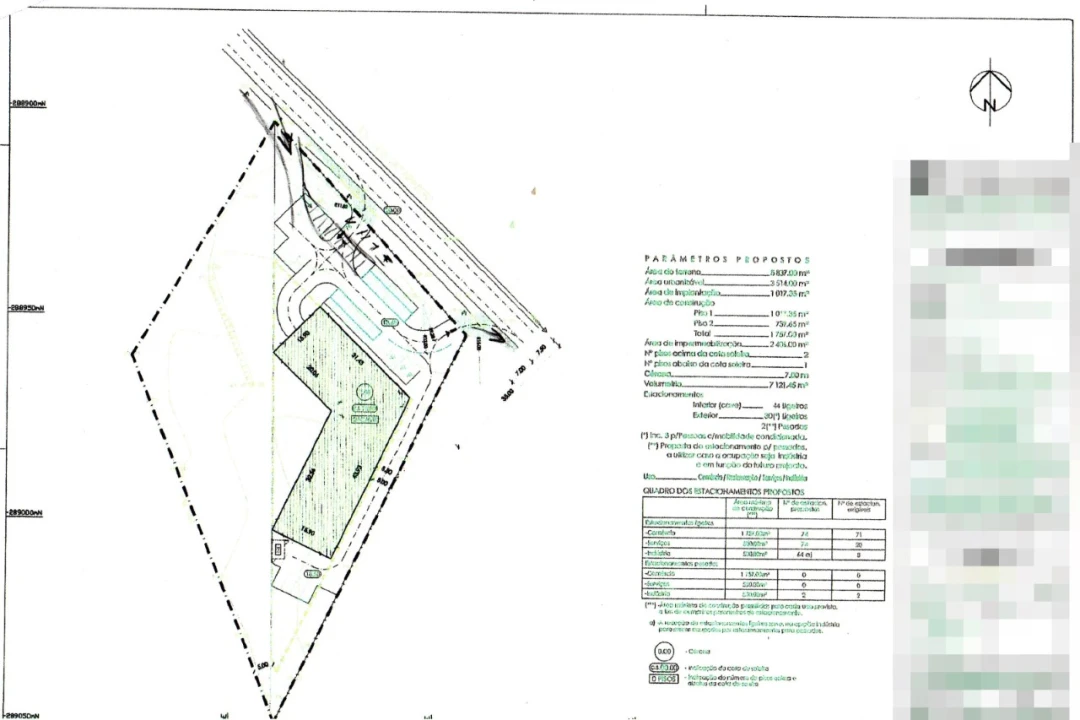
Terreno de área total de 5.837m², localizado junto à EN125, beneficiando de elevada visibilidade e acessos facilitados a ligação de serviços da rede pública.
Teve pedido de informação prévia aprovado para construção de armazém com cave e estacionamentos, destinado a fins comerciais, restauração e atividades industriais.
Uma excelente oportunidade para desenvolvimento empresarial numa das principais vias de circulação da região, com ligação estratégica às cidades do Algarve.
Marque já a sua visita através do nosso website! (Visite a seção vídeos para ficar a saber como o fazer!) Todos os agendamentos estão sujeitos a confirmação telefónica.
Para mais informações não hesite em contactar.
'A SUA CASA NO ALGARVE'
Localização
Almancil, Loulé, Faro
Informação do anúncio
ID do anúncio
1750113
Referência Externa
TER_2155_VEND
Atualizado em
02/04/2026 05:26:27
Anunciante
Chamada para a rede fixa nacional
Natural-Villas-mediaçao imobiliaria,Lda
AMI 8923
Referência do imóvel:
TER_2155_VEND
Consultor
Natural Villas
Terreno para Venda em Almancil
Vídeo