Terreno para Venda em Gulpilhares e Valadares
360.000 €
Tipo
Terreno
Negócio
Venda
Área Útil
1733 m²
Condição
Novo
Certificado Energético
Isento
Área do Terreno
1733 m²
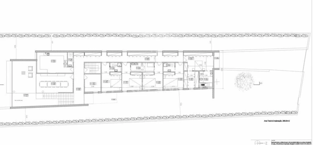
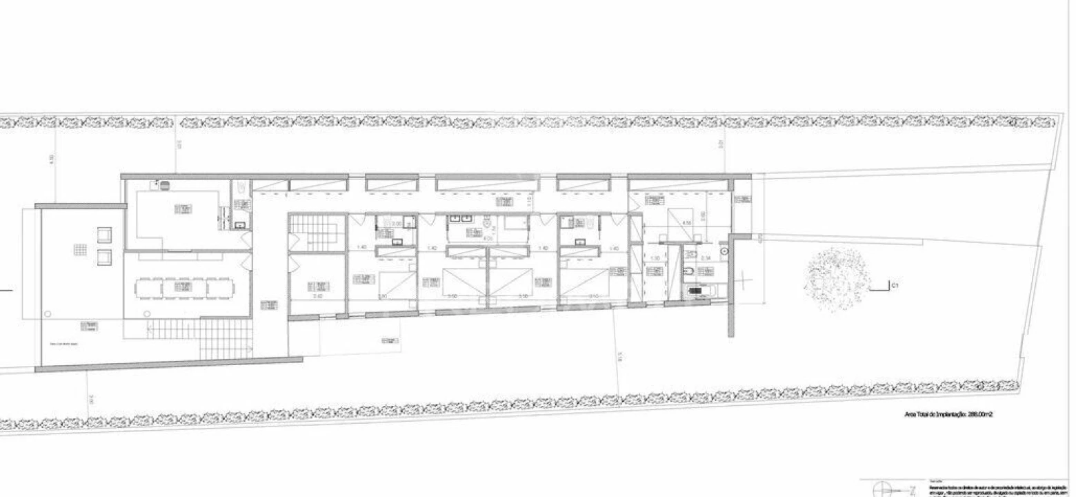
Terreno de Luxo com Projeto em Estudo Moradia V7 a 1,5km da Praia
Apresentamos um imóvel exclusivo na prestigiada zona de Francelos, Vila Nova de Gaia.
Este terreno destaca-se pela sua localização estratégica, combinando a tranquilidade de uma zona residencial com a proximidade imediata à praia e a transportes.
Localização Estratégica e Conveniência:
- Comboio à Porta: A apenas 350 metros da Estação de Comboios de Francelos, facilitando a mobilidade para o Porto, Gaia ou Aveiro.
- Proximidade ao Mar: Localizado a apenas 1,5 km das Praias de Francelos, ideal para quem valoriza a qualidade de vida junto à costa.
- Envolvência: Situado numa zona calma de moradias com excelentes acessos.
Potencial de Construção e Privacidade:
- Área Total: 1.733,08m² de terreno georreferenciado através do processo BUPi
- Projeto de Luxo: Inclui estudo para uma Moradia V7 Contemporânea com área de implantação de 288m², garagem em cave e amplas zonas de lazer.
- Privacidade Reforçada: O terreno confronta a Sul com uma serventia particular, garantindo um ambiente mais resguardado e exclusivo.
Dados Técnicos:
- Artigo Matricial: Rústico com viabilidade Urbana
- Área Registada: 1.700m² (0,170000 ha).
- Propriedade Plena: Documentação regularizada, validada via BUPi e com Escritura Pública.
Preço: 360.000€
Construa o seu futuro aqui. Entre em contacto para agendar visita!
Este terreno destaca-se pela sua localização estratégica, combinando a tranquilidade de uma zona residencial com a proximidade imediata à praia e a transportes.
Localização Estratégica e Conveniência:
- Comboio à Porta: A apenas 350 metros da Estação de Comboios de Francelos, facilitando a mobilidade para o Porto, Gaia ou Aveiro.
- Proximidade ao Mar: Localizado a apenas 1,5 km das Praias de Francelos, ideal para quem valoriza a qualidade de vida junto à costa.
- Envolvência: Situado numa zona calma de moradias com excelentes acessos.
Potencial de Construção e Privacidade:
- Área Total: 1.733,08m² de terreno georreferenciado através do processo BUPi
- Projeto de Luxo: Inclui estudo para uma Moradia V7 Contemporânea com área de implantação de 288m², garagem em cave e amplas zonas de lazer.
- Privacidade Reforçada: O terreno confronta a Sul com uma serventia particular, garantindo um ambiente mais resguardado e exclusivo.
Dados Técnicos:
- Artigo Matricial: Rústico com viabilidade Urbana
- Área Registada: 1.700m² (0,170000 ha).
- Propriedade Plena: Documentação regularizada, validada via BUPi e com Escritura Pública.
Preço: 360.000€
Construa o seu futuro aqui. Entre em contacto para agendar visita!
Localização
Gulpilhares e Valadares, Vila Nova de Gaia, Porto
Informação do anúncio
ID do anúncio
1753431
Referência Externa
PD-057833
Atualizado em
26/04/2026 07:20:49
Terreno para Venda em Gulpilhares e Valadares