Voltar
Terreno para Venda em Sande São Lourenço e Balazar Foto 1
Terreno para Venda em Sande São Lourenço e Balazar Foto 2
Terreno para Venda em Sande São Lourenço e Balazar Foto 3
Terreno para Venda em Sande São Lourenço e Balazar Foto 4
Terreno para Venda em Sande São Lourenço e Balazar Foto 5

Terreno para Venda em Sande São Lourenço e Balazar

78.900 €

Tipo
Terreno
Negócio
Venda
Área Útil
373 m²
Condição
Novo
Certificado Energético
Isento
Área do Terreno
373 m²

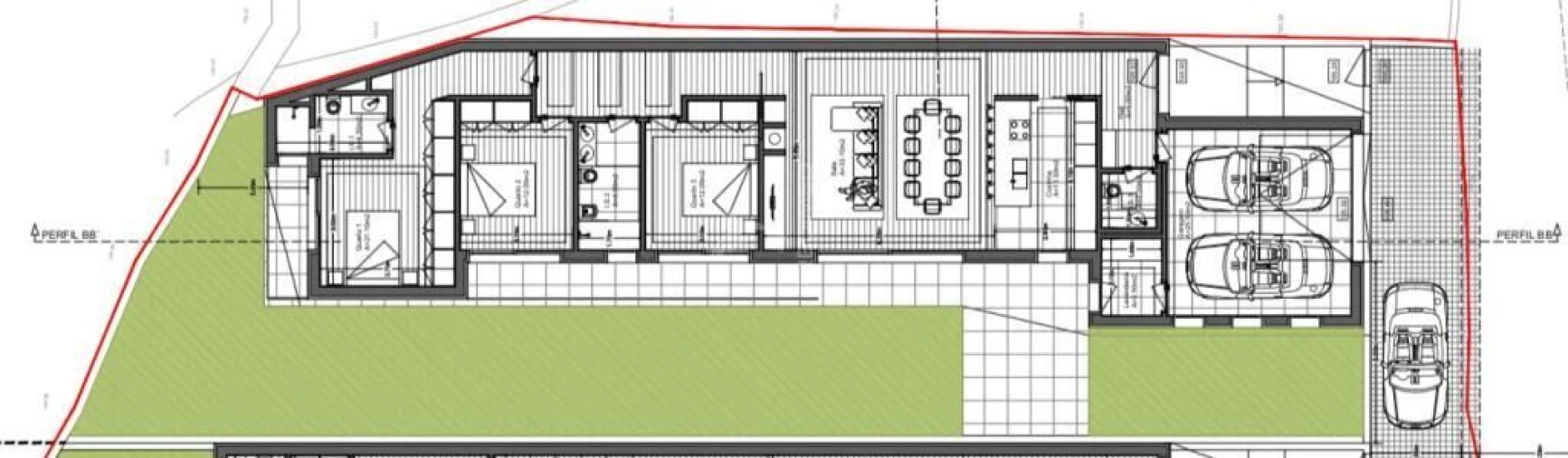
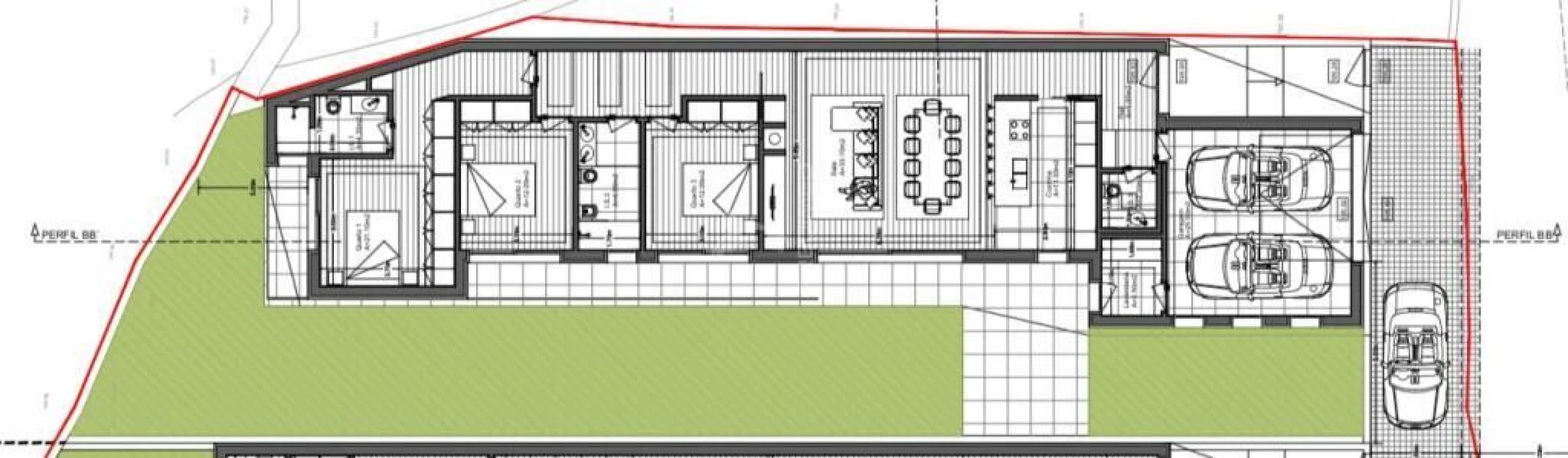
Terreno com projecto aprovado para moradia individual

Terreno para construção de moradia isolada, em zona tranquila, com ótima exposição solar e com vista desafogada.
O terreno tem projeto em aprovado na Câmara Municipal de Guimarães para uma Moradia Individual T3.
O lote permite a construção de uma moradia isolada, as áreas são:
- Área total do terreno: 373m²
- Área de implementação e construção do projeto: 221m²
O terreno está localizado numa zona de grande procura, das mais prestigiadas zonas para construção de moradias próximo da estrada Nacional 101 na freguesia de São Lourenço de Sande com excelentes acessos, a 8km de Guimarães, 9Km de Braga e da Autoestrada.
Estamos disponíveis para apresentar o projeto no local.
O meu nome é Orlando Silva e sou consultor imobiliário independente da Predimed Portugal.
Acompanho o cliente em todo processo da sua compra e o processo de financiamento com a melhor proposta de "Credito aprovado em 48 horas"!
Agende já a sua visita!

Localização

Sande São Lourenço e Balazar, Guimarães, Braga

Informação do anúncio

ID do anúncio 1753648
Referência Externa PD-054614
Atualizado em 05/04/2026 08:18:32
Predimed AMI 22503
Referência do imóvel: PD-054614
Phone
Chamada para a rede móvel nacional
Orlando Silva
Predimed AMI 22503
Referência do imóvel: PD-054614
Phone
Chamada para a rede móvel nacional
Orlando Silva
1 / 27
Terreno para Venda em Sande São Lourenço e Balazar Foto 1
Terreno para Venda em Sande São Lourenço e Balazar Foto 2
Terreno para Venda em Sande São Lourenço e Balazar Foto 3
Terreno para Venda em Sande São Lourenço e Balazar Foto 4
Terreno para Venda em Sande São Lourenço e Balazar Foto 5
Terreno para Venda em Sande São Lourenço e Balazar Foto 6
Terreno para Venda em Sande São Lourenço e Balazar Foto 7
Terreno para Venda em Sande São Lourenço e Balazar Foto 8
Terreno para Venda em Sande São Lourenço e Balazar Foto 9
Terreno para Venda em Sande São Lourenço e Balazar Foto 10
Terreno para Venda em Sande São Lourenço e Balazar Foto 11
Terreno para Venda em Sande São Lourenço e Balazar Foto 12
Terreno para Venda em Sande São Lourenço e Balazar Foto 13
Terreno para Venda em Sande São Lourenço e Balazar Foto 14
Terreno para Venda em Sande São Lourenço e Balazar Foto 15
Terreno para Venda em Sande São Lourenço e Balazar Foto 16
Terreno para Venda em Sande São Lourenço e Balazar Foto 17
Terreno para Venda em Sande São Lourenço e Balazar Foto 18
Terreno para Venda em Sande São Lourenço e Balazar Foto 19
Terreno para Venda em Sande São Lourenço e Balazar Foto 20
Terreno para Venda em Sande São Lourenço e Balazar Foto 21
Terreno para Venda em Sande São Lourenço e Balazar Foto 22
Terreno para Venda em Sande São Lourenço e Balazar Foto 23
Terreno para Venda em Sande São Lourenço e Balazar Foto 24
Terreno para Venda em Sande São Lourenço e Balazar Foto 25
Terreno para Venda em Sande São Lourenço e Balazar Foto 26
Terreno para Venda em Sande São Lourenço e Balazar Foto 27
Clicky