Terreno para Venda em Castro Verde e Casével
90.000 €
Tipo
Terreno
Negócio
Venda
Área Útil
497 m²
Condição
Novo
Certificado Energético
Isento
Área do Terreno
404 m²
Terreno com Projeto para a construção de 3 Moradias em Castro Verde
Terreno com Projeto para a construção de 3 Moradias em Castro Verde
Oportunidade Única de Investimento!
Apresentamos-lhe um lote de terreno exclusivo, situado numa zona nobre e privilegiada da Vila de Castro Verde, rodeada de espaços verdes, jardins e com proximidade a escolas e serviços essenciais. Um local perfeito para quem procura qualidade de vida, tranquilidade e, ao mesmo tempo, valorização garantida.
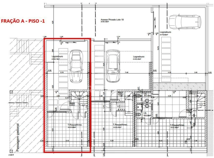
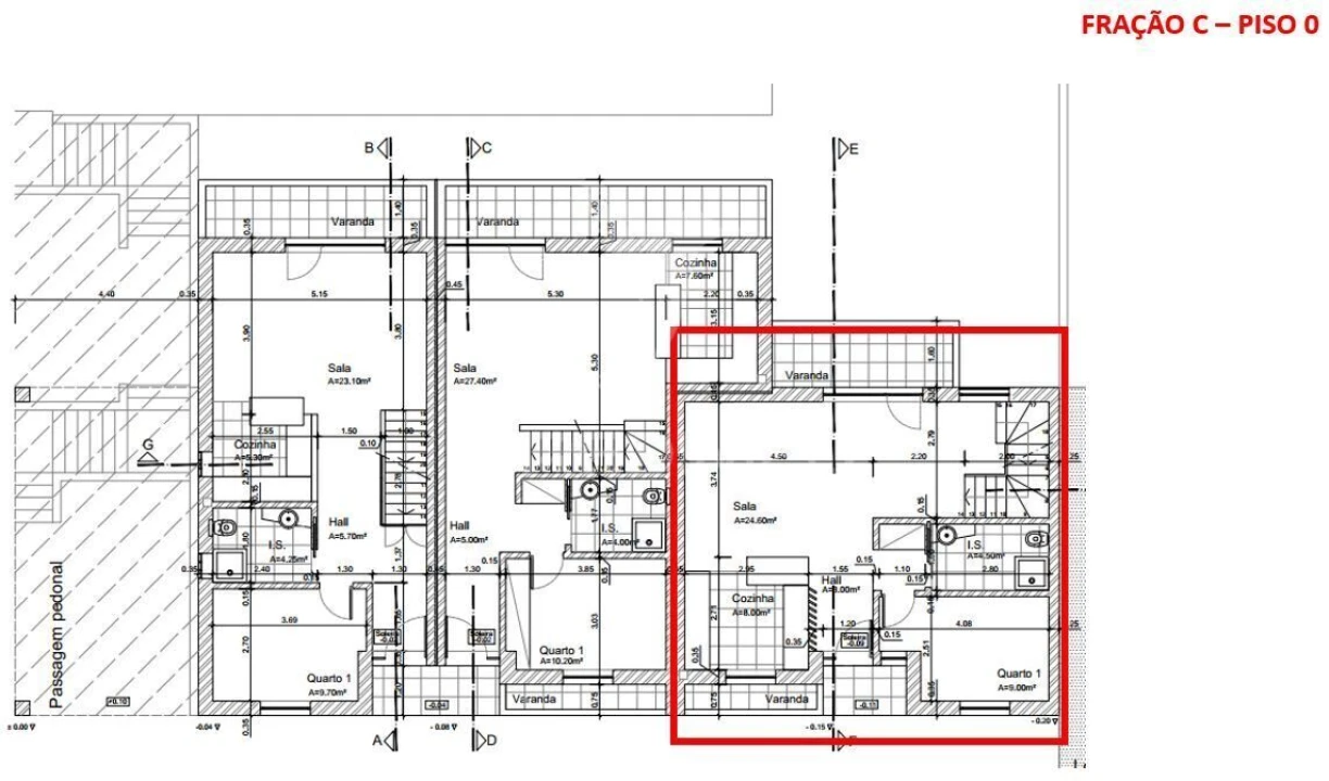
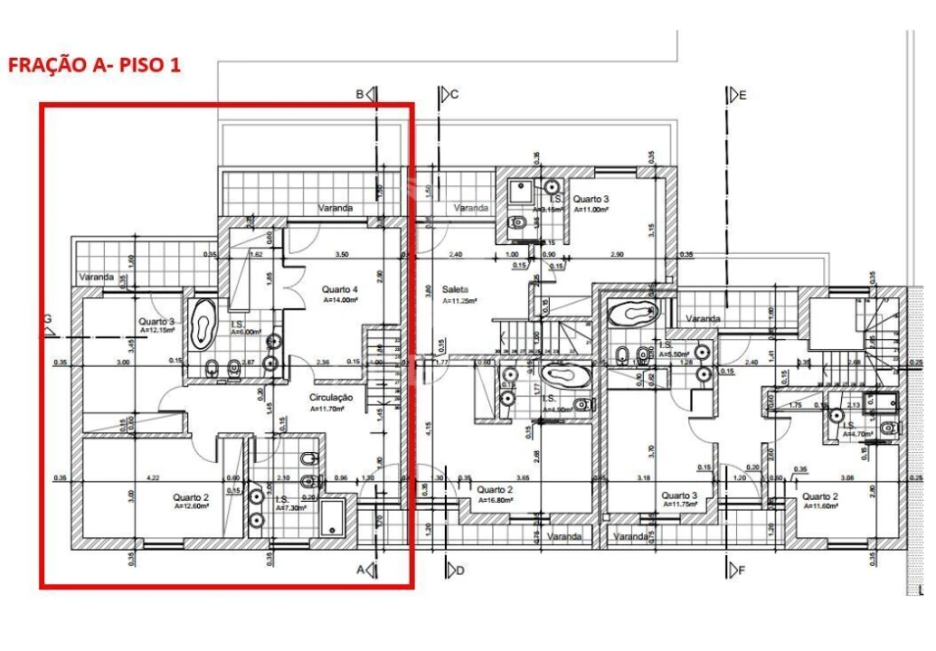
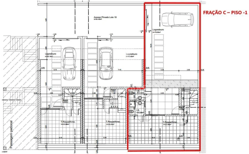
O terreno dispõe de projeto para a construção de três moradias modernas e funcionais, todas com três pisos, cave, estacionamento privativo e quintal:
Duas moradias T3 com design contemporâneo, três quartos, sendo dois em suíte, garantindo conforto e privacidade.
Uma moradia T4, ampla e elegante, com uma suíte e três quartos adicionais, ideal para famílias que privilegiam espaço e versatilidade.
Este projeto foi pensado para oferecer estética, funcionalidade e rentabilidade. Para investidores, trata-se de uma oportunidade única, um empreendimento com grande potencial de valorização e rápida recuperação do capital investido, num mercado em forte crescimento.
Zona residencial de excelência
Projeto de arquitetura e especialidades
Grande procura na área por moradias familiares
Elevado potencial de rentabilização
Um investimento sólido, seguro e sofisticado, onde a qualidade de vida e a rentabilidade se encontram.
Castro Verde fica localizado a 5 minutos da Auto Estrada, a 10 minutos das Vilas de Ourique, Aljustrel e Almodôvar, está a 20 minutos da Mina de Neves Corvo, a 30 minutos da cidade de Beja, a 40 minutos do Algarve, a 1h da Costa Alentejana e a 1h50 de Lisboa.
Para mais informações ou para marcar uma visita, fale connosco!
Oportunidade Única de Investimento!
Apresentamos-lhe um lote de terreno exclusivo, situado numa zona nobre e privilegiada da Vila de Castro Verde, rodeada de espaços verdes, jardins e com proximidade a escolas e serviços essenciais. Um local perfeito para quem procura qualidade de vida, tranquilidade e, ao mesmo tempo, valorização garantida.
O terreno dispõe de projeto para a construção de três moradias modernas e funcionais, todas com três pisos, cave, estacionamento privativo e quintal:
Duas moradias T3 com design contemporâneo, três quartos, sendo dois em suíte, garantindo conforto e privacidade.
Uma moradia T4, ampla e elegante, com uma suíte e três quartos adicionais, ideal para famílias que privilegiam espaço e versatilidade.
Este projeto foi pensado para oferecer estética, funcionalidade e rentabilidade. Para investidores, trata-se de uma oportunidade única, um empreendimento com grande potencial de valorização e rápida recuperação do capital investido, num mercado em forte crescimento.
Zona residencial de excelência
Projeto de arquitetura e especialidades
Grande procura na área por moradias familiares
Elevado potencial de rentabilização
Um investimento sólido, seguro e sofisticado, onde a qualidade de vida e a rentabilidade se encontram.
Castro Verde fica localizado a 5 minutos da Auto Estrada, a 10 minutos das Vilas de Ourique, Aljustrel e Almodôvar, está a 20 minutos da Mina de Neves Corvo, a 30 minutos da cidade de Beja, a 40 minutos do Algarve, a 1h da Costa Alentejana e a 1h50 de Lisboa.
Para mais informações ou para marcar uma visita, fale connosco!
Localização
Castro Verde e Casével, Castro Verde, Beja
Informação do anúncio
ID do anúncio
1753935
Referência Externa
PD-053821
Atualizado em
26/04/2026 07:23:40
Terreno para Venda em Castro Verde e Casével