A MAIS VALIA DO IMÓVEL:
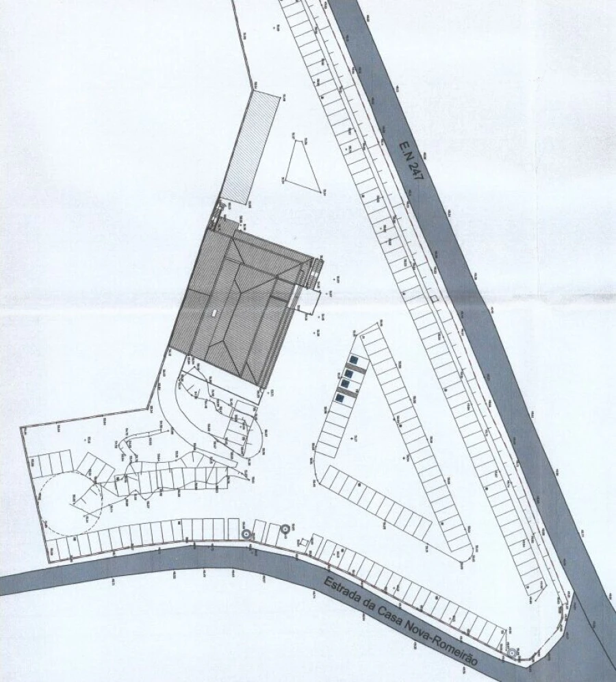
Edifício com espaço de Discoteca e Restaurante, em terreno com 10.000m², localizado a 2km da Ericeira
DESCRIÇÃO DO IMÓVEL:
Piso O
Hall de entrada
Duas pistas de dança
Quatro Bares
Dois lavabos para clientes
Um lavabo para funcionários
Um escritório
Uma copa
Piso 1
Três salas de refeições
Cozinha
Dois balcões de atendimento/serviço
Dois lavabos para clientes
Um lavabo para funcionários
Um armazém
Um escritório
DESCRIÇÃO DO EXTERIOR:
Telheiro para estacionamento de viaturas dos funcionários.
Espaço ao ar livre para estacionamento dos clientes.
APRECIAÇÃO DO IMÓVEL:
Edifício composto por espaço amplo, anteriormente utilizado como discoteca no piso 0, e restaurante no 1º andar, com estacionamento privativo. Inserido em terreno de 10.000m², sendo cerca de 6.200m² em zona urbana, localizado em zona de bastante movimento e de fácil acesso às principais vias de acesso, a apenas 2 km da vila da Ericeira.
INFORMAÇÕES COMPLEMENTARES:
- Áreas retiradas da CPU e LU
- Toda a informação disponível não dispensa a confirmação por parte da mediadora bem como a consulta da documentação do imóvel.
Este site utiliza cookies. Ao navegar no site estará a consentir a sua utilização. Para mais informações sobre os cookies pode consultar a
política de privacidade.