Terreno para Venda em Covilhã e Canhoso
49.900 €
Tipo
Terreno
Negócio
Venda
Área Bruta
185 m²
Condição
Não aplicável
Certificado Energético
Isento
Área do Terreno
590 m²
Lote / Covilhã, Covilhã
Lote de Terreno para Moradia T3 - Covilhã
Este lote de terreno com 590m² de área total já possui informação prévia favorável da Câmara Municipal da Covilhã para a construção de uma moderna moradia unifamiliar T3.
A futura habitação terá cerca de 185,6m² de área de construção, distribuída em 3 pisos, oferecendo uma combinação perfeita de modernidade, conforto e funcionalidade.
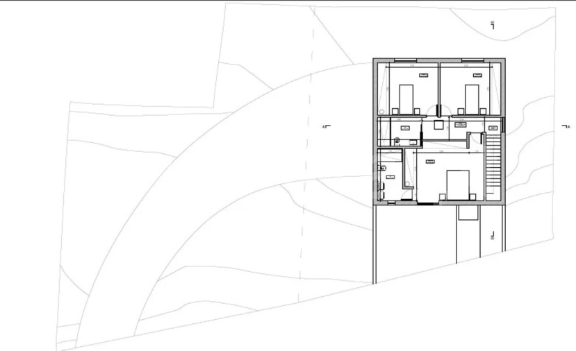
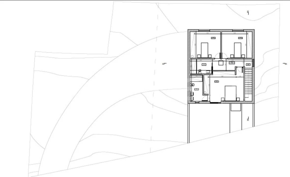
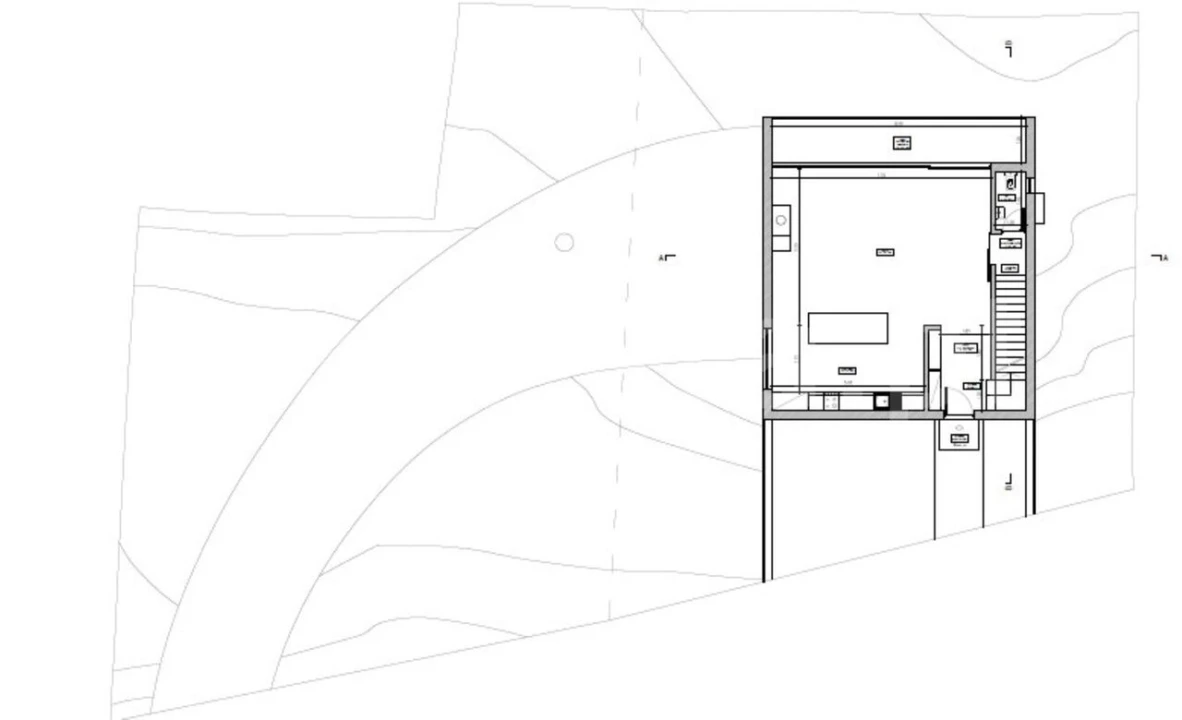
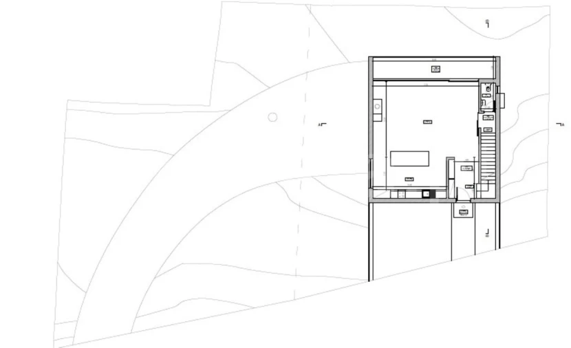
O projeto contempla: hall de entrada com roupeiro, sala e cozinha em open space com acesso a varanda, WC de serviço, 2 quartos com roupeiros embutidos, uma master suite com 2 roupeiros e WC privativo, um WC completo com base de duche e ainda hall dos quartos com roupeiro para maior arrumação. A cave inclui uma garagem espaçosa com capacidade para até 3 carros.
Entre as principais vantagens destacam-se as vistas deslumbrantes para a Serra da Estrela e para a cidade, excelente exposição solar durante todo o dia e uma localização tranquila, mas a apenas 5 minutos do centro.
Próximo da Universidade da Beira Interior, escolas, comércio, serviços e transportes, este terreno é uma oportunidade única para quem procura qualidade de vida ou pretende investir numa zona em forte valorização.
Agende já a sua visita e dê o primeiro passo para concretizar o seu sonho na Covilhã!
Características
Infraestruturas
Concluídas
Tipo
Residencial
Zona
Acessos: Alcatrão
Centralidade: Periferia Cidade
Este lote de terreno com 590m² de área total já possui informação prévia favorável da Câmara Municipal da Covilhã para a construção de uma moderna moradia unifamiliar T3.
A futura habitação terá cerca de 185,6m² de área de construção, distribuída em 3 pisos, oferecendo uma combinação perfeita de modernidade, conforto e funcionalidade.
O projeto contempla: hall de entrada com roupeiro, sala e cozinha em open space com acesso a varanda, WC de serviço, 2 quartos com roupeiros embutidos, uma master suite com 2 roupeiros e WC privativo, um WC completo com base de duche e ainda hall dos quartos com roupeiro para maior arrumação. A cave inclui uma garagem espaçosa com capacidade para até 3 carros.
Entre as principais vantagens destacam-se as vistas deslumbrantes para a Serra da Estrela e para a cidade, excelente exposição solar durante todo o dia e uma localização tranquila, mas a apenas 5 minutos do centro.
Próximo da Universidade da Beira Interior, escolas, comércio, serviços e transportes, este terreno é uma oportunidade única para quem procura qualidade de vida ou pretende investir numa zona em forte valorização.
Agende já a sua visita e dê o primeiro passo para concretizar o seu sonho na Covilhã!
Características
Infraestruturas
Concluídas
Tipo
Residencial
Zona
Acessos: Alcatrão
Centralidade: Periferia Cidade
Localização
Covilhã e Canhoso, Covilhã, Castelo Branco
Informação do anúncio
ID do anúncio
1756784
Referência Externa
EC-111240082
Atualizado em
26/04/2026 07:36:51
Anunciante
Chamada para a rede fixa nacional
Era Covilhã
AMI 6863
Referência do imóvel:
EC-111240082
Terreno para Venda em Covilhã e Canhoso