Terreno para Venda em Santa Maria, São Pedro e Matacães
302.500 €
Tipo
Terreno
Negócio
Venda
Condição
Não aplicável
Certificado Energético
Isento
Área do Terreno
54712 m²
Terreno para construção com 5.5 ha em Torres Vedras
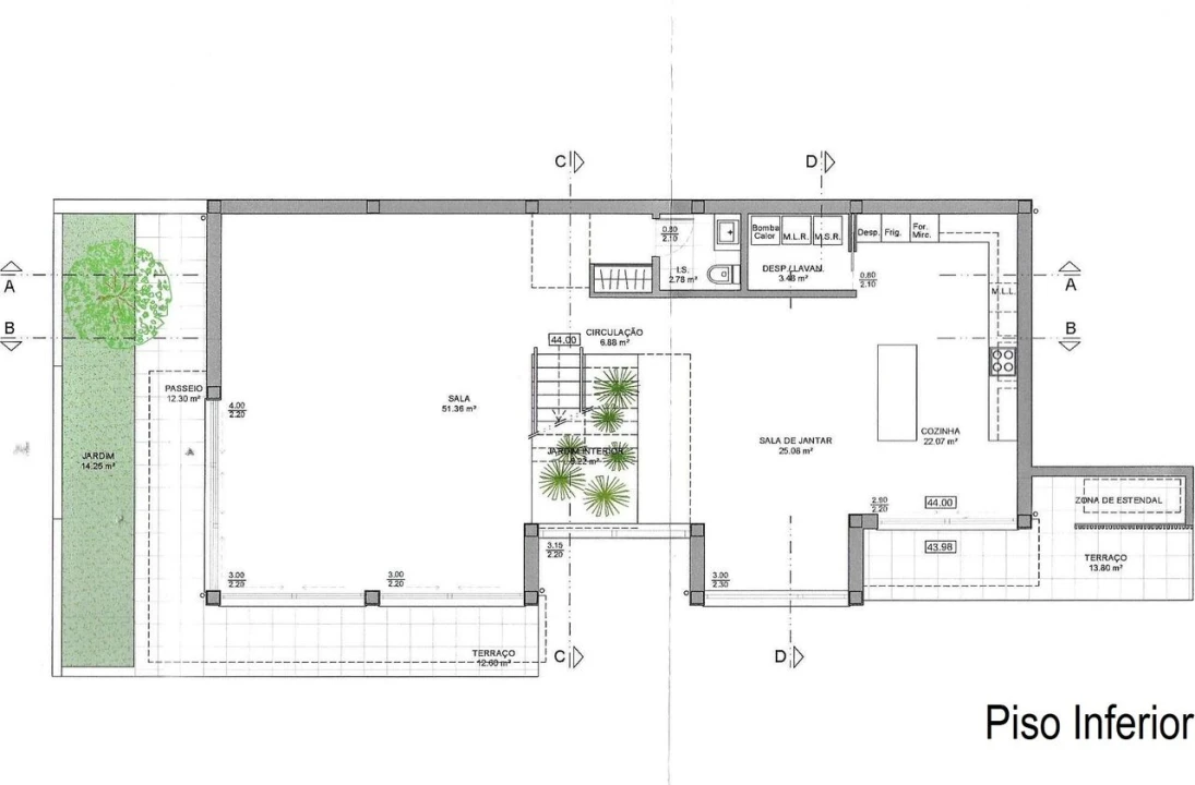
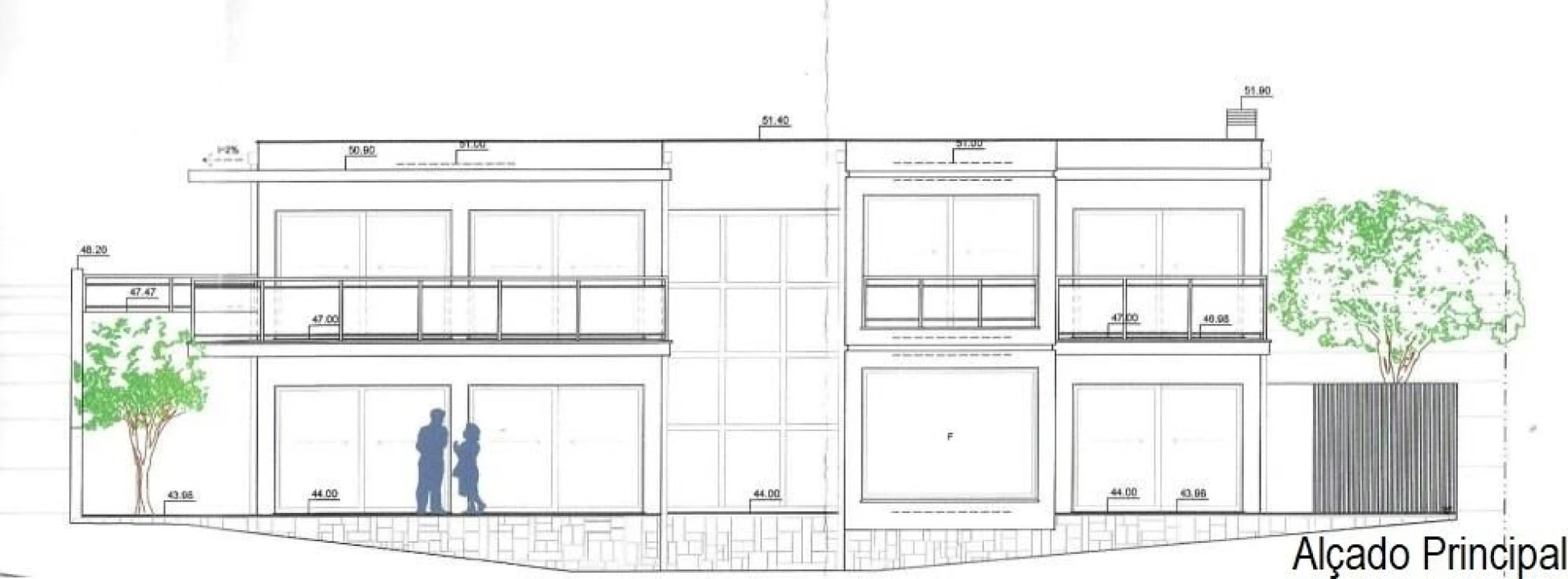
Este terreno de 5,5 hectares representa uma oportunidade extraordinária, com autorização para a construção de uma moradia de 268m² e vistas panorâmicas espetaculares sobre a cidade de Torres Vedras, o castelo e a Igreja de Santa Maria. A propriedade, denominada 'Penurias e Morgadinho,'abrange uma vasta área de 54.712m², compreendendo tanto zonas rurais quanto urbanas.
Encontra-se localizada dentro do perímetro da cidade de Torres Vedras e está abrangida pelo Plano de Urbanização de Torres Vedras (PUTV).
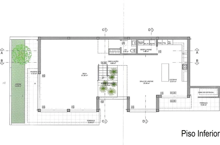
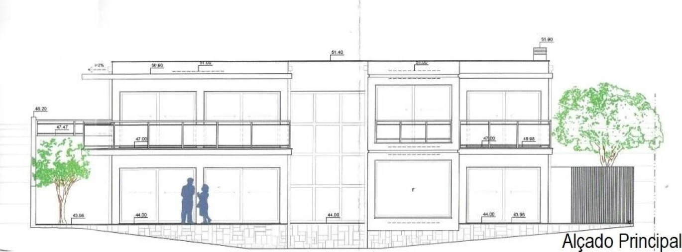
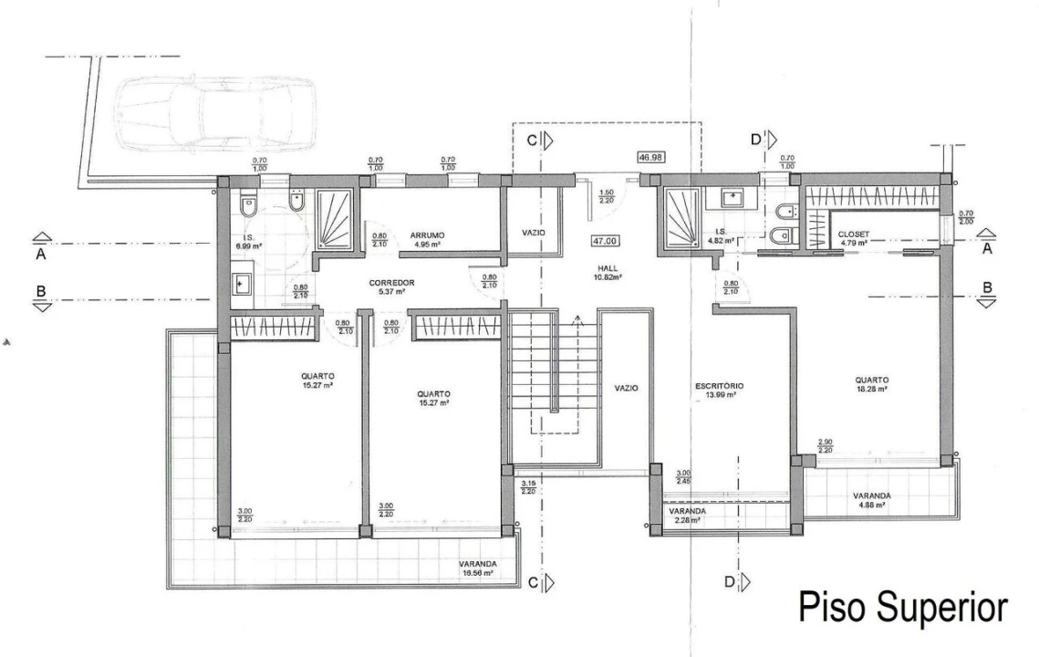
A autorização da Câmara Municipal permite a construção de uma casa de dois pisos, com quatro quartos (T4) e 268m² de área. Esse projeto residencial foi aprovado após um Pedido de Informação Prévia à Câmara Municipal, datado de 6 de julho de 2023.
A casa planejada será uma verdadeira jóia da arquitetura, proporcionando uma vista panorâmica incomparável da cidade, do majestoso castelo e da histórica Igreja de Santa Maria. Além disso, os índices urbanísticos permitem explorar soluções de maior densidade de ocupação, o que pode ser particularmente interessante para futuros desenvolvimentos ou ampliações.
Os acessos a esta propriedade são variados para garantir a conveniência. A partir do lado oeste, há um caminho público pelo Bairro das Alminhas, embora possa requerer melhorias para acesso mais fácil. A leste, existe uma rampa de acesso próxima à circular N8, localizada atrás da loja Aldi. Além disso, o acesso principal pode ser encontrado na curva da estrada do Bairro de S. António, tornando a chegada e a saída muito acessíveis.
Esta propriedade representa mais do que apenas um pedaço de terra; é uma oportunidade de investimento única e um local privilegiado para a construção de uma residência de prestígio com vistas espetaculares. A localização dentro do perímetro da cidade oferece comodidades e conveniências próximas, enquanto a vasta extensão de terra proporciona privacidade e potencial para projetos futuros.
Historicamente, esta propriedade foi em grande parte ocupada por vinhas, abrangendo cerca de 60% da área total. No centro da propriedade, ainda existe uma ruína de uma dependência agrícola, com um poço (parcela 9 da Caderneta Predial), que adiciona um toque de autenticidade e potencial para futuros projetos.
Em resumo, esta propriedade oferece uma combinação única de localização, autorização de construção, vista panorâmica deslumbrante e potencial para diversas utilizações. Se você está em busca de um terreno com um cenário natural excepcional e a oportunidade de criar uma residência exclusiva, 'Penurias e Morgadinho' é uma escolha verdadeiramente excepcional.
Encontra-se localizada dentro do perímetro da cidade de Torres Vedras e está abrangida pelo Plano de Urbanização de Torres Vedras (PUTV).
A autorização da Câmara Municipal permite a construção de uma casa de dois pisos, com quatro quartos (T4) e 268m² de área. Esse projeto residencial foi aprovado após um Pedido de Informação Prévia à Câmara Municipal, datado de 6 de julho de 2023.
A casa planejada será uma verdadeira jóia da arquitetura, proporcionando uma vista panorâmica incomparável da cidade, do majestoso castelo e da histórica Igreja de Santa Maria. Além disso, os índices urbanísticos permitem explorar soluções de maior densidade de ocupação, o que pode ser particularmente interessante para futuros desenvolvimentos ou ampliações.
Os acessos a esta propriedade são variados para garantir a conveniência. A partir do lado oeste, há um caminho público pelo Bairro das Alminhas, embora possa requerer melhorias para acesso mais fácil. A leste, existe uma rampa de acesso próxima à circular N8, localizada atrás da loja Aldi. Além disso, o acesso principal pode ser encontrado na curva da estrada do Bairro de S. António, tornando a chegada e a saída muito acessíveis.
Esta propriedade representa mais do que apenas um pedaço de terra; é uma oportunidade de investimento única e um local privilegiado para a construção de uma residência de prestígio com vistas espetaculares. A localização dentro do perímetro da cidade oferece comodidades e conveniências próximas, enquanto a vasta extensão de terra proporciona privacidade e potencial para projetos futuros.
Historicamente, esta propriedade foi em grande parte ocupada por vinhas, abrangendo cerca de 60% da área total. No centro da propriedade, ainda existe uma ruína de uma dependência agrícola, com um poço (parcela 9 da Caderneta Predial), que adiciona um toque de autenticidade e potencial para futuros projetos.
Em resumo, esta propriedade oferece uma combinação única de localização, autorização de construção, vista panorâmica deslumbrante e potencial para diversas utilizações. Se você está em busca de um terreno com um cenário natural excepcional e a oportunidade de criar uma residência exclusiva, 'Penurias e Morgadinho' é uma escolha verdadeiramente excepcional.
Localização
Santa Maria, São Pedro e Matacães, Torres Vedras, Lisboa
Informação do anúncio
ID do anúncio
1757407
Referência Externa
SF-SAFTI:003919
Atualizado em
26/04/2026 07:38:06
Terreno para Venda em Santa Maria, São Pedro e Matacães