Moradia T4 para Venda em Aradas
590.000 €
Tipo
Moradia
Negócio
Venda
Ano de Construção
2026
Quartos
4
Casas de Banho
5
Área Bruta
351 m²
Área Útil
203 m²
Condição
Em construção
Certificado Energético
A
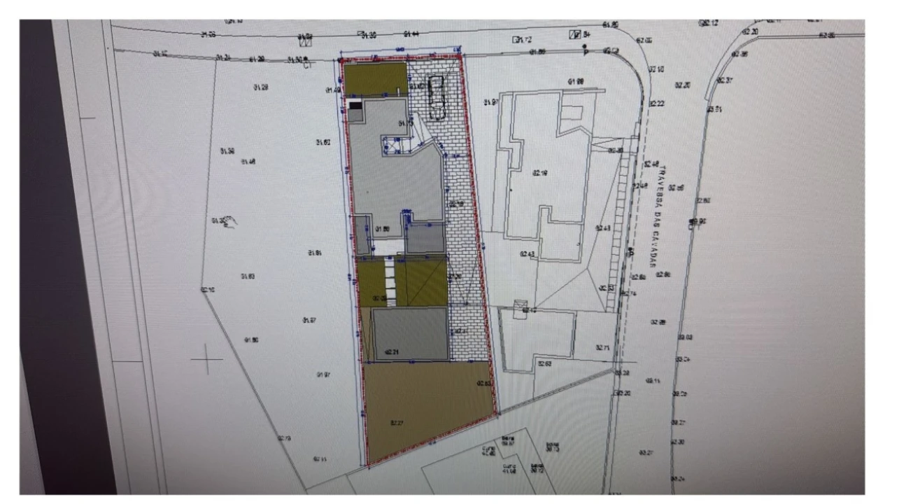
Área do Terreno
630 m²
Moradia Isolada T4 Venda Aradas - Aveiro
Moradia Unifamiliar tipologia T4, com 2 pisos e anexo, em construção .
Áreas
Área Útil : 203.30 m²
Área Bruta : 351.00 m²
Área de Terreno : 630.00 m²
Composta da seguinte forma:
Piso inferior: Churrasqueira, cozinha mobilada e equipada, sala de refeições, sala de jantar e estar, hall wc serviço e suite com closet
Piso superior: Hall, dois quartos, com closets com acesso a varanda, (uma suite com closet) e wc serviço completo
Garagem, fechada, capacidade para uma viatura, arrumos, lavandaria e WC de serviço, e um pequeno hall com acesso ao interior.
Exterior: área para jardim
Na área sul do anexo está reservada para pomar ou pequena horta.
Equipamentos:
Ar condicionado
Portão Eléctrico
Vidros Duplos
Isolamento Térmico
Estores Electricos
Banheira
Principais pontos de interesse:
Igreja Matriz de São Pedro de Aradas: Situada em Verdemilho, é um marco com elementos de 1866, incluindo um belo retábulo de 1881.
Museu de Medicina e Saúde: Localizado a 3km do centro de Aveiro, focado na história da medicina.
Casa de Música de Aradas: Polo de leitura da Biblioteca Municipal de Aveiro.
Parque Intergeracional do Largo Coração de Maria (Verdemilho).
Proximidade com o centro de Aveiro, a Universidade de Aveiro e áreas
NÃO DEIXE DE CONCRETIZAR O SEU SONHO!
CONTACTE-NOS, ESPERAMOS POR SI.
Áreas
Área Útil : 203.30 m²
Área Bruta : 351.00 m²
Área de Terreno : 630.00 m²
Composta da seguinte forma:
Piso inferior: Churrasqueira, cozinha mobilada e equipada, sala de refeições, sala de jantar e estar, hall wc serviço e suite com closet
Piso superior: Hall, dois quartos, com closets com acesso a varanda, (uma suite com closet) e wc serviço completo
Garagem, fechada, capacidade para uma viatura, arrumos, lavandaria e WC de serviço, e um pequeno hall com acesso ao interior.
Exterior: área para jardim
Na área sul do anexo está reservada para pomar ou pequena horta.
Equipamentos:
Ar condicionado
Portão Eléctrico
Vidros Duplos
Isolamento Térmico
Estores Electricos
Banheira
Principais pontos de interesse:
Igreja Matriz de São Pedro de Aradas: Situada em Verdemilho, é um marco com elementos de 1866, incluindo um belo retábulo de 1881.
Museu de Medicina e Saúde: Localizado a 3km do centro de Aveiro, focado na história da medicina.
Casa de Música de Aradas: Polo de leitura da Biblioteca Municipal de Aveiro.
Parque Intergeracional do Largo Coração de Maria (Verdemilho).
Proximidade com o centro de Aveiro, a Universidade de Aveiro e áreas
NÃO DEIXE DE CONCRETIZAR O SEU SONHO!
CONTACTE-NOS, ESPERAMOS POR SI.
Localização
Aradas, Aveiro, Aveiro
Informação do anúncio
ID do anúncio
1759127
Referência Externa
CAS_699-2
Atualizado em
26/04/2026 09:49:59
Anunciante
Chamada para a rede móvel nacional
Chalé de Aveiro
AMI 19731
Referência do imóvel:
CAS_699-2
Moradia T4 para Venda em Aradas