Moradia T5 para Venda em Teixoso e Sarzedo
350.000 €
Tipo
Moradia
Negócio
Venda
Quartos
5
Casas de Banho
5
Área Bruta
280 m²
Área Útil
250 m²
Condição
Usado
Certificado Energético
F
Moradia Isolada T5 / Covilhã, Teixoso
Moradia bifamiliar localizada no Teixoso, adequada para habitação própria, utilização multifamiliar ou investimento.
Composta por duas habitações independentes, destaca-se pela excelente exposição solar e pelas vistas abertas para a Serra da Estrela, proporcionando um ambiente tranquilo e integrado na paisagem natural envolvente.
Situada numa zona residencial do Teixoso, a poucos minutos da Covilhã, beneficia de bons acessos à autoestrada e proximidade a serviços essenciais, como escola e unidade de saúde, permitindo uma vivência prática com ligação à cidade.
A moradia distribui-se da seguinte forma:
Rés do chão: dois quartos, um deles em suite, cozinha mobilada em open space com a sala, varanda e espaço exterior com zona de barbecue.
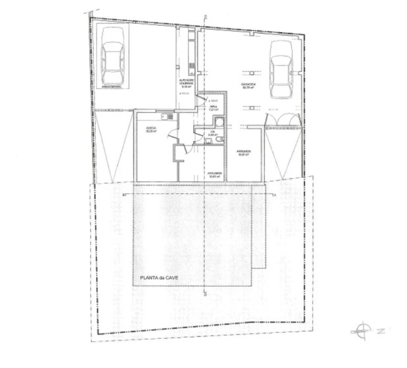
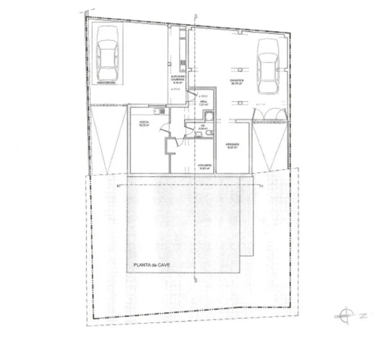
Cave: estúdio independente com cozinha mobilada, adequado para utilização autónoma.
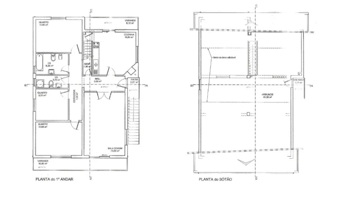
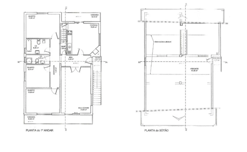
1.º andar: três quartos, duas casas de banho, sala de estar e cozinha com varanda. Acesso a sótão amplo, com diferentes possibilidades de aproveitamento.
Dispõe ainda de janelas duplas, contribuindo para o conforto térmico e acústico, bem como espaço de estacionamento e garagem fechada.
Uma solução versátil, que conjuga funcionalidade, privacidade e enquadramento natural, numa localização equilibrada entre a cidade e a tranquilidade da envolvente rural.
Agende a sua visita para conhecer o imóvel.
Características
Geral
Cave, Vão de Telhado/Sótão
Nº Frentes: 1
Nº Pisos: 4
Água
Companhia
Caixilharia
Dupla
Estores: PVC
Domótica
Churrasqueira
Edifício
Hall de Entrada - Paredes: Pintadas
Hall de Entrada - Pavimento: Tijoleira
Hall de Entrada - Tecto: Estucado
Tipo Empreendimento: Habitação
Garagem
Água, Casa de Banho, Eletricidade, Luz
Área: 50.79m²
Local: Cave
Vistas
Campo, Serra
Zona
Acessos: Auto-Estrada, Bons, Transportes Púb.
Centralidade: Centro da Cidade, Periferia Cidade
Proximidade: Escolas, Farmácia, Jardins Infância
Composta por duas habitações independentes, destaca-se pela excelente exposição solar e pelas vistas abertas para a Serra da Estrela, proporcionando um ambiente tranquilo e integrado na paisagem natural envolvente.
Situada numa zona residencial do Teixoso, a poucos minutos da Covilhã, beneficia de bons acessos à autoestrada e proximidade a serviços essenciais, como escola e unidade de saúde, permitindo uma vivência prática com ligação à cidade.
A moradia distribui-se da seguinte forma:
Rés do chão: dois quartos, um deles em suite, cozinha mobilada em open space com a sala, varanda e espaço exterior com zona de barbecue.
Cave: estúdio independente com cozinha mobilada, adequado para utilização autónoma.
1.º andar: três quartos, duas casas de banho, sala de estar e cozinha com varanda. Acesso a sótão amplo, com diferentes possibilidades de aproveitamento.
Dispõe ainda de janelas duplas, contribuindo para o conforto térmico e acústico, bem como espaço de estacionamento e garagem fechada.
Uma solução versátil, que conjuga funcionalidade, privacidade e enquadramento natural, numa localização equilibrada entre a cidade e a tranquilidade da envolvente rural.
Agende a sua visita para conhecer o imóvel.
Características
Geral
Cave, Vão de Telhado/Sótão
Nº Frentes: 1
Nº Pisos: 4
Água
Companhia
Caixilharia
Dupla
Estores: PVC
Domótica
Churrasqueira
Edifício
Hall de Entrada - Paredes: Pintadas
Hall de Entrada - Pavimento: Tijoleira
Hall de Entrada - Tecto: Estucado
Tipo Empreendimento: Habitação
Garagem
Água, Casa de Banho, Eletricidade, Luz
Área: 50.79m²
Local: Cave
Vistas
Campo, Serra
Zona
Acessos: Auto-Estrada, Bons, Transportes Púb.
Centralidade: Centro da Cidade, Periferia Cidade
Proximidade: Escolas, Farmácia, Jardins Infância
Localização
Teixoso e Sarzedo, Covilhã, Castelo Branco
Informação do anúncio
ID do anúncio
1762717
Referência Externa
EC-111260081
Atualizado em
26/04/2026 07:36:51
Anunciante
Chamada para a rede fixa nacional
Era Covilhã
AMI 6863
Referência do imóvel:
EC-111260081
Moradia T5 para Venda em Teixoso e Sarzedo