Terreno para Venda em Alfeizerão
169.901 €
Tipo
Terreno
Negócio
Venda
Área Bruta
231 m²
Condição
Em projecto
Área do Terreno
816 m²
ZERO ESPERA, MÁXIMO RETORNO | PROJETO + LICENÇA INCLUÍDOS - 2 MORADIAS PRONTAS A CONSTRUIR
INVESTIMENTO DE ALTO POTENCIAL - PRONTO A CONSTRUIR!
Lote exclusivo com projeto aprovado + licença levantada
Comece a construir HOJE. Sem esperas. Sem burocracias.
Imagine investir num projeto onde tudo já está tratado, localização, viabilidade e potencial de valorização. Só falta dar o primeiro passo.
LOCALIZAÇÃO QUE VENDE POR SI
A poucos minutos da deslumbrante praia de São Martinho do Porto, numa zona:
- Tranquila
- Envolvida pela natureza
- Com excelente exposição solar
- Perfeita para habitação ou mercado de arrendamento
PROJETO: 2 MORADIAS T2 ISOLADAS
Duas unidades modernas, com espaço exterior generoso altamente procuradas no mercado atual.
- Terreno plano
- Infraestrutura pronta
- Muro de suporte em pedra já executado
- Redução significativa de custos e tempo de obra
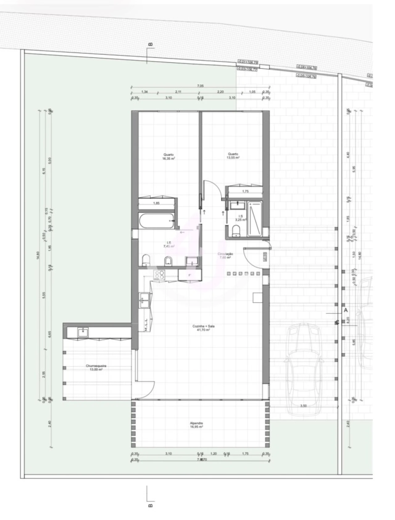
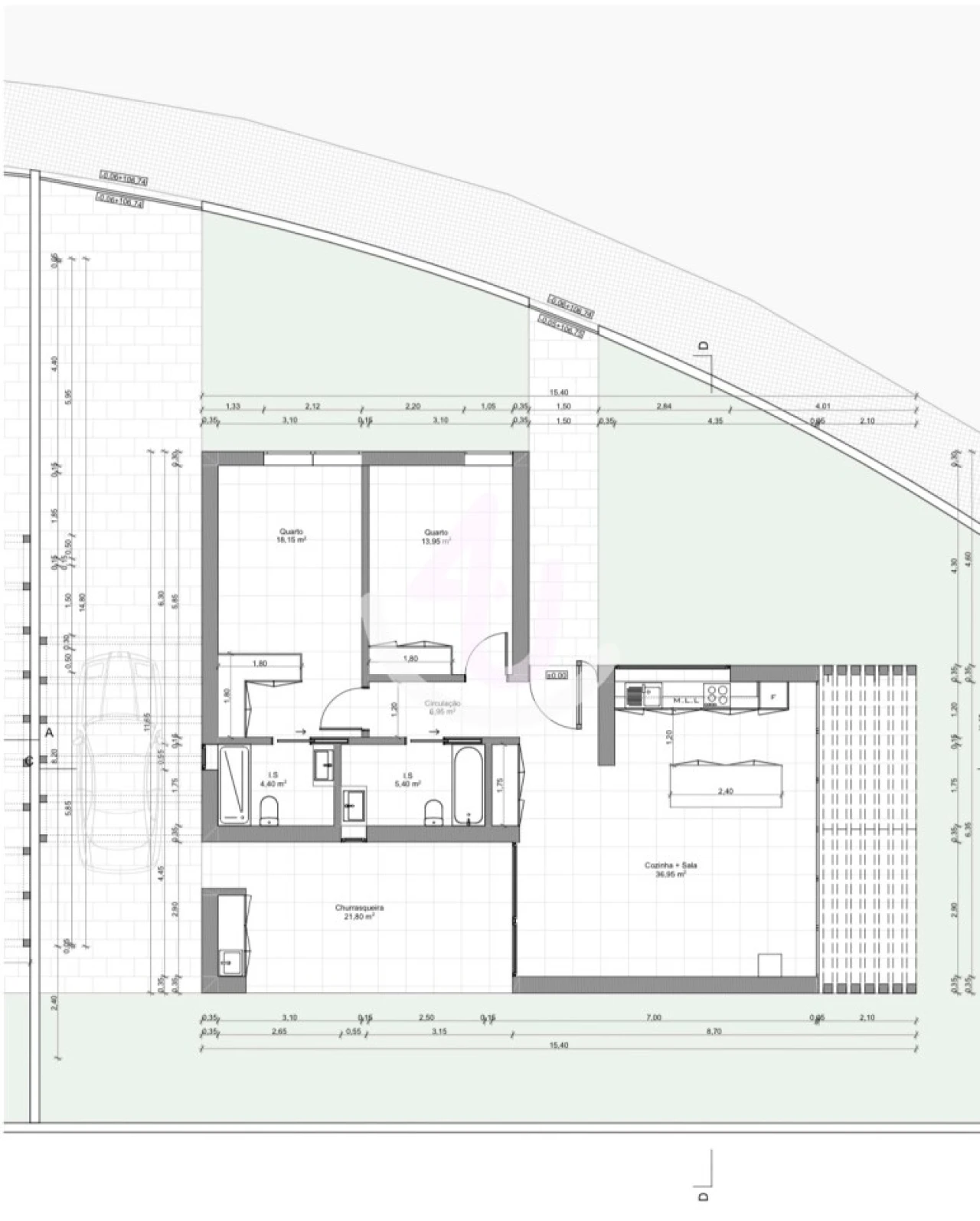
DETALHES DAS FRAÇÕES
Fração A - Funcional e equilibrada
Tipologia: T2
Área total exclusiva: 349,50 m²
Área bruta: 104,35 m²
Logradouro: 245,15 m²
Fração B - Mais espaço, mais valorização
Tipologia: T2
Área total exclusiva: 466,80 m²
Área bruta: 126,20 m²
Logradouro: 340,60 m²
PORQUÊ ESTE NEGÓCIO?
- Elevada procura por moradias T2 com espaço exterior
- Ideal para revenda ou arrendamento
- Projeto otimizado para rentabilidade
- Entrada imediata em obra = retorno mais rápido
OPORTUNIDADE RARA NO MERCADO
Negócios assim, prontos a avançar, são cada vez mais escassos.
Se procura rentabilidade, segurança e rapidez, este é o investimento certo.
AGENDE JÁ A SUA VISITA
Não deixe escapar este projeto com tudo pronto a arrancar.
SMILES 4U - O SEU SORRISO MORA AQUI!
:::::::::::::::::::::::::::::::::::::::::::::::::::::::::::::::::::::::::::::::::::::::::::::::::::::::::::::::::::::::
ZERO WAIT, MAXIMUM RETURN | PROJECT + PERMIT INCLUDED - 2 READY-TO-BUILD HOUSES! HIGH
POTENTIAL INVESTMENT - READY TO CONSTRUCT!
Exclusive lot with approved project + permit obtained
Start building TODAY. No waiting. No red tape.
Imagine investing in a project where everything is already taken care oflocation, feasibility, and potential for appreciation. All that's left is taking the first step.
LOCATION THAT SELLS ITSELF
Just minutes from the stunning São Martinho do Porto beach, in an area that is:
Peaceful
Surrounded by nature
Bathed in excellent sunlight
Perfect for personal residence or rental market
PROJECT: 2 DETACHED T2 HOUSES
Two modern units with generous outdoor spacehighly sought after in today's market.
Flat land
Infrastructure ready
Stone retaining wall already built
Significant cost and construction time savings
UNIT DETAILS
Unit A - Functional and Balanced
Type: T2
Total exclusive area: 349.50 m²
Gross area: 104.35 m²
Yard: 245.15 m²
Unit B - More Space, More Value
Type: T2
Total exclusive area: 466.80 m²
Gross area: 126.20 m²
Yard: 340.60 m²
WHY THIS DEAL?
High demand for T2 homes with outdoor space
Ideal for resale or rental income
Project optimized for profitability
Immediate construction start = faster return
RARE MARKET OPPORTUNITY
Deals like this, ready to go, are becoming increasingly scarce.
If you're looking for profitability, security, and speed, this is the right investment.
SCHEDULE YOUR VISIT NOW
Don't miss this fully prepared project ready to launch.
SMILES 4U - YOUR SMILE LIVES HERE!
Lote exclusivo com projeto aprovado + licença levantada
Comece a construir HOJE. Sem esperas. Sem burocracias.
Imagine investir num projeto onde tudo já está tratado, localização, viabilidade e potencial de valorização. Só falta dar o primeiro passo.
LOCALIZAÇÃO QUE VENDE POR SI
A poucos minutos da deslumbrante praia de São Martinho do Porto, numa zona:
- Tranquila
- Envolvida pela natureza
- Com excelente exposição solar
- Perfeita para habitação ou mercado de arrendamento
PROJETO: 2 MORADIAS T2 ISOLADAS
Duas unidades modernas, com espaço exterior generoso altamente procuradas no mercado atual.
- Terreno plano
- Infraestrutura pronta
- Muro de suporte em pedra já executado
- Redução significativa de custos e tempo de obra
DETALHES DAS FRAÇÕES
Fração A - Funcional e equilibrada
Tipologia: T2
Área total exclusiva: 349,50 m²
Área bruta: 104,35 m²
Logradouro: 245,15 m²
Fração B - Mais espaço, mais valorização
Tipologia: T2
Área total exclusiva: 466,80 m²
Área bruta: 126,20 m²
Logradouro: 340,60 m²
PORQUÊ ESTE NEGÓCIO?
- Elevada procura por moradias T2 com espaço exterior
- Ideal para revenda ou arrendamento
- Projeto otimizado para rentabilidade
- Entrada imediata em obra = retorno mais rápido
OPORTUNIDADE RARA NO MERCADO
Negócios assim, prontos a avançar, são cada vez mais escassos.
Se procura rentabilidade, segurança e rapidez, este é o investimento certo.
AGENDE JÁ A SUA VISITA
Não deixe escapar este projeto com tudo pronto a arrancar.
SMILES 4U - O SEU SORRISO MORA AQUI!
:::::::::::::::::::::::::::::::::::::::::::::::::::::::::::::::::::::::::::::::::::::::::::::::::::::::::::::::::::::::
ZERO WAIT, MAXIMUM RETURN | PROJECT + PERMIT INCLUDED - 2 READY-TO-BUILD HOUSES! HIGH
POTENTIAL INVESTMENT - READY TO CONSTRUCT!
Exclusive lot with approved project + permit obtained
Start building TODAY. No waiting. No red tape.
Imagine investing in a project where everything is already taken care oflocation, feasibility, and potential for appreciation. All that's left is taking the first step.
LOCATION THAT SELLS ITSELF
Just minutes from the stunning São Martinho do Porto beach, in an area that is:
Peaceful
Surrounded by nature
Bathed in excellent sunlight
Perfect for personal residence or rental market
PROJECT: 2 DETACHED T2 HOUSES
Two modern units with generous outdoor spacehighly sought after in today's market.
Flat land
Infrastructure ready
Stone retaining wall already built
Significant cost and construction time savings
UNIT DETAILS
Unit A - Functional and Balanced
Type: T2
Total exclusive area: 349.50 m²
Gross area: 104.35 m²
Yard: 245.15 m²
Unit B - More Space, More Value
Type: T2
Total exclusive area: 466.80 m²
Gross area: 126.20 m²
Yard: 340.60 m²
WHY THIS DEAL?
High demand for T2 homes with outdoor space
Ideal for resale or rental income
Project optimized for profitability
Immediate construction start = faster return
RARE MARKET OPPORTUNITY
Deals like this, ready to go, are becoming increasingly scarce.
If you're looking for profitability, security, and speed, this is the right investment.
SCHEDULE YOUR VISIT NOW
Don't miss this fully prepared project ready to launch.
SMILES 4U - YOUR SMILE LIVES HERE!
Localização
Alfeizerão, Alcobaça, Leiria
Informação do anúncio
ID do anúncio
1764301
Referência Externa
S4U100-V205
Atualizado em
26/04/2026 00:43:54
Anunciante
Chamada para a rede fixa nacional
SMILES4U - Partilhar Sorrisos Mediação Imobiliaria
AMI 8148
Referência do imóvel:
S4U100-V205
Terreno para Venda em Alfeizerão