Apartamento T1 para Venda em Sopo Foto 1
Apartamento T1 para Venda em Sopo Foto 2
Apartamento T1 para Venda em Sopo Foto 3
Apartamento T1 para Venda em Sopo Foto 4
Apartamento T1 para Venda em Sopo Foto 5

Apartamento T1 para Venda em Sopo

159.000 €

Tipo
Apartamento
Negócio
Venda
Quartos
1
Casas de Banho
1
Área Bruta
64 m²
Condição
Usado
Certificado Energético
C
Área do Terreno
233 m²

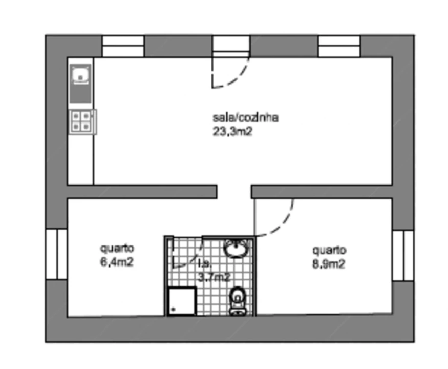
Oportunidade - Andar moradia T1+1 renovado

Estamos perante um andar moradia de tipologia T1+1 completamente renovado e com terreno com uma área aproximada de 130 m2, permitindo ter um jardim/espaço exterior.

Com bons acessos e a apenas 5 minutos do centro de Vilar de Mouros, este andar moradia encontra-se rodeado de natureza.

No interior encontramos uma sala e cozinha em formato de open space de aproximadamente 23 m2, um quarto, uma casa de banho e ainda um escritório ou até quarto para cama individual, dependendo do que o cliente pretenda dar de uso a esse espaço.

O imóvel encontra-se equipado com sistema de aquecimento eléctrico, cozinha com placa vitrocerâmica, forno e exaustor e preparada para máquina de lavar roupa e loiça.

Visite!
*
*
NOTA: A informação aqui prestada, ainda que precisa, requer confirmação antes do fecho do negócio e não pode ser utilizada de forma vinculativa.

Insuavila Imobiliária

Localização

Sopo, Vila Nova de Cerveira, Viana do Castelo

Informação do anúncio

ID do anúncio 1767883
Referência Externa 2804
Atualizado em 26/04/2026 09:11:22
Insuavila Imobiliária AMI 11806
Referência do imóvel: 2804
Phone
Chamada para a rede fixa nacional
Insuavila Imobiliária AMI 11806
Referência do imóvel: 2804
Phone
Chamada para a rede fixa nacional
1 / 20
Apartamento T1 para Venda em Sopo Foto 1
Apartamento T1 para Venda em Sopo Foto 2
Apartamento T1 para Venda em Sopo Foto 3
Apartamento T1 para Venda em Sopo Foto 4
Apartamento T1 para Venda em Sopo Foto 5
Apartamento T1 para Venda em Sopo Foto 6
Apartamento T1 para Venda em Sopo Foto 7
Apartamento T1 para Venda em Sopo Foto 8
Apartamento T1 para Venda em Sopo Foto 9
Apartamento T1 para Venda em Sopo Foto 10
Apartamento T1 para Venda em Sopo Foto 11
Apartamento T1 para Venda em Sopo Foto 12
Apartamento T1 para Venda em Sopo Foto 13
Apartamento T1 para Venda em Sopo Foto 14
Apartamento T1 para Venda em Sopo Foto 15
Apartamento T1 para Venda em Sopo Foto 16
Apartamento T1 para Venda em Sopo Foto 17
Apartamento T1 para Venda em Sopo Foto 18
Apartamento T1 para Venda em Sopo Foto 19
Apartamento T1 para Venda em Sopo Foto 20
Planta 1 / 1
Apartamento T1 para Venda em Sopo Planta 1
Clicky