Terreno para Venda em Quarteira
5.980.000 €
Tipo
Terreno
Negócio
Venda
Área Bruta
370 m²
Área Útil
185 m²
Condição
Em projecto
Certificado Energético
F
Área do Terreno
1500 m²
Lote de terreno 1500 m² com projeto pré-aprovado - Quarteira, Algarve
PRONTO PARA DESENVOLVIMENTO IMEDIATO
Descubra o potencial de desenvolvimento imediato: poupe tempo e dinheiro hoje mesmo.
Temos o prazer de apresentar um terreno excecional, pré-aprovado e de primeira qualidade, com 1.500 metros quadrados, destinado a desenvolvimento urbano, no coração de Quarteira, no Algarve. Esta oferta não é apenas um terreno; é uma proposta de desenvolvimento chave na mão, completa com um projeto de viabilidade arquitetónica robusto e pré-aprovado (Pedido de Informação Prévia - PIP), concebido pela prestigiada empresa de arquitetura e engenharia OFIARTE.
A principal mais-valia desta aquisição reside no seu estatuto de aprovação. Num mercado burocrático como o do Algarve, garantir a viabilidade da construção pode demorar entre 12 a 24 meses. Este projeto está aprovado e pronto para avançar imediatamente para o licenciamento técnico e a construção. Para o promotor, isto representa uma enorme vantagem estratégica: início imediato do ciclo de desenvolvimento, risco de mercado drasticamente reduzido e poupanças significativas nos custos operacionais com taxas de licenciamento e custos de manutenção. Está a adquirir rapidez, certeza e um retorno acelerado do investimento.
A Visão do Projeto: Modernidade e Funcionalidade:
O empreendimento proposto é um complexo residencial sofisticado que se integra harmoniosamente na paisagem urbana consolidada de Quarteira, como evidenciado pelo contexto de edifícios altos que rodeia o local. O projeto apresenta uma estrutura contemporânea robusta que abrange um total de 8 pisos principais funcionais (mais o espaço técnico no telhado), transitando de forma harmoniosa do parque de estacionamento subterrâneo profundo para os pisos residenciais de luxo com
potencial panorâmico.
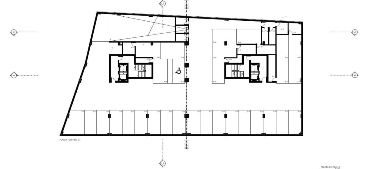
Subterrâneo (2 Pisos): Dedicado à infraestrutura de estacionamento essencial.
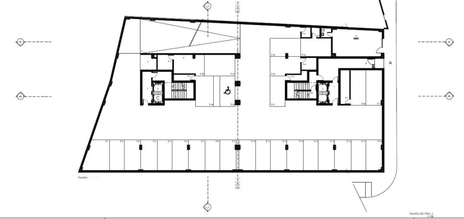
- Piso -2: Estacionamento seguro com 30 lugares e 14 arrecadações.
- Piso -1: Estacionamento seguro para 28 lugares e 12 arrecadações.
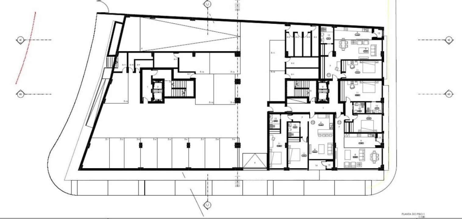
Unidades Residenciais: Exclusivamente residenciais. Não há nenhum (0) espaço comercial ou de retalho dedicado listado no índice principal, garantindo um ambiente de vida tranquilo para os futuros residentes.
Número total de pisos: Os pisos do edifício estão claramente indexados desde o Piso -2 (cave mais baixa) até ao Piso 6 (piso residencial mais alto), totalizando 8 pisos principais habitáveis, coroados por uma Cobertura substancial (técnica/telhado) e pelo núcleo do edifício (Casa das Escadas), conforme detalhado nas Secções Transversais A e C (Cortes A & C).
Com base nas plantas típicas fornecidas (ilustradas nas plantas detalhadas dos pisos 1, 2 e 3), o projeto está concebido para cerca de 45 apartamentos sofisticados. A análise visual das plantas indica que o Piso 1 contém um número limitado de unidades com pátios exclusivos, enquanto o Piso 2 e o Piso 3 apresentam disposições mais densas e otimizadas, com cerca de 10 unidades por piso típico (principalmente configurações T1 e T2, conforme indicado na legenda). Isto sugere aproximadamente 10 unidades em cada um dos pisos 2, 3, 4 e 5, com configurações otimizadas para o piso de entrada (Piso 1) e o piso de Penthouse (Piso 6).
Localização imbatível: O coração de Quarteira:
A Rua do Portão / Rua José da Luz Morgado é uma localização central e consolidada, que oferece comodidade e uma atratividade muito procurada. Os futuros residentes beneficiarão de um estilo de vida urbano invejável, estando a poucos minutos do luxuoso centro de lazer do Algarve.
Costa Dourada de Quarteira: A famosa Praia de Quarteira e o seu pitoresco calçadão de dois quilómetros, repleto de restaurantes, cafés e lojas, ficam a apenas alguns minutos a pé. O renomado mercado diário de peixe fresco encontra-se nas imediações.
Marina de Vilamoura: Adjacente a Quarteira, a Marina de Vilamoura de classe mundial (a maior da Europa) é uma grande atração, oferecendo iates de luxo, gastronomia internacional de excelência, lojas de luxo e uma vida noturna sofisticada.
Golfe de classe mundial: Quarteira situa-se no triângulo dourado do golfe do Algarve. A menos de 5 minutos de carro, os promotores imobiliários podem visitar campos de golfe de nível de campeonato, incluindo o Vilamoura Old Course, o Pinhal e o Victoria (sede do Portugal Masters).
Ligação ao aeroporto: A acessibilidade é um dos principais argumentos de venda. O Aeroporto Internacional de Faro (FAO) fica a cerca de 20 quilómetros de distância, permitindo uma viagem tranquila de 20 a 25 minutos pelas principais autoestradas.
Um projeto pronto para execução:
O tempo da especulação acabou; chegou a hora de construir. Este projeto já foi aprovado, tendo ultrapassado os principais obstáculos burocráticos. Este lote representa uma enorme alocação de capital num prazo acelerado, num dos mercados imobiliários de maior desempenho de Portugal.
Aproveite esta oportunidade para contornar a burocracia e começar a construir imediatamente num dos principais pontos de interesse residencial do Algarve.
Contacte-nos hoje mesmo para marcar a sua visita.
Tratamos do seu Crédito Habitação de forma simples, transparente e eficaz. Negociamos as melhores condições para o seu caso.
EasyGest Finance, o seu Intermediário de crédito de confiança, certificado pelo Banco de Portugal com o nº 0001802.
Ajudamos com todo o processo! Entre em contacto connosco ou deixe-nos os seus dados e entraremos em contacto assim que possível!
AL99018TV
Descubra o potencial de desenvolvimento imediato: poupe tempo e dinheiro hoje mesmo.
Temos o prazer de apresentar um terreno excecional, pré-aprovado e de primeira qualidade, com 1.500 metros quadrados, destinado a desenvolvimento urbano, no coração de Quarteira, no Algarve. Esta oferta não é apenas um terreno; é uma proposta de desenvolvimento chave na mão, completa com um projeto de viabilidade arquitetónica robusto e pré-aprovado (Pedido de Informação Prévia - PIP), concebido pela prestigiada empresa de arquitetura e engenharia OFIARTE.
A principal mais-valia desta aquisição reside no seu estatuto de aprovação. Num mercado burocrático como o do Algarve, garantir a viabilidade da construção pode demorar entre 12 a 24 meses. Este projeto está aprovado e pronto para avançar imediatamente para o licenciamento técnico e a construção. Para o promotor, isto representa uma enorme vantagem estratégica: início imediato do ciclo de desenvolvimento, risco de mercado drasticamente reduzido e poupanças significativas nos custos operacionais com taxas de licenciamento e custos de manutenção. Está a adquirir rapidez, certeza e um retorno acelerado do investimento.
A Visão do Projeto: Modernidade e Funcionalidade:
O empreendimento proposto é um complexo residencial sofisticado que se integra harmoniosamente na paisagem urbana consolidada de Quarteira, como evidenciado pelo contexto de edifícios altos que rodeia o local. O projeto apresenta uma estrutura contemporânea robusta que abrange um total de 8 pisos principais funcionais (mais o espaço técnico no telhado), transitando de forma harmoniosa do parque de estacionamento subterrâneo profundo para os pisos residenciais de luxo com
potencial panorâmico.
Subterrâneo (2 Pisos): Dedicado à infraestrutura de estacionamento essencial.
- Piso -2: Estacionamento seguro com 30 lugares e 14 arrecadações.
- Piso -1: Estacionamento seguro para 28 lugares e 12 arrecadações.
Unidades Residenciais: Exclusivamente residenciais. Não há nenhum (0) espaço comercial ou de retalho dedicado listado no índice principal, garantindo um ambiente de vida tranquilo para os futuros residentes.
Número total de pisos: Os pisos do edifício estão claramente indexados desde o Piso -2 (cave mais baixa) até ao Piso 6 (piso residencial mais alto), totalizando 8 pisos principais habitáveis, coroados por uma Cobertura substancial (técnica/telhado) e pelo núcleo do edifício (Casa das Escadas), conforme detalhado nas Secções Transversais A e C (Cortes A & C).
Com base nas plantas típicas fornecidas (ilustradas nas plantas detalhadas dos pisos 1, 2 e 3), o projeto está concebido para cerca de 45 apartamentos sofisticados. A análise visual das plantas indica que o Piso 1 contém um número limitado de unidades com pátios exclusivos, enquanto o Piso 2 e o Piso 3 apresentam disposições mais densas e otimizadas, com cerca de 10 unidades por piso típico (principalmente configurações T1 e T2, conforme indicado na legenda). Isto sugere aproximadamente 10 unidades em cada um dos pisos 2, 3, 4 e 5, com configurações otimizadas para o piso de entrada (Piso 1) e o piso de Penthouse (Piso 6).
Localização imbatível: O coração de Quarteira:
A Rua do Portão / Rua José da Luz Morgado é uma localização central e consolidada, que oferece comodidade e uma atratividade muito procurada. Os futuros residentes beneficiarão de um estilo de vida urbano invejável, estando a poucos minutos do luxuoso centro de lazer do Algarve.
Costa Dourada de Quarteira: A famosa Praia de Quarteira e o seu pitoresco calçadão de dois quilómetros, repleto de restaurantes, cafés e lojas, ficam a apenas alguns minutos a pé. O renomado mercado diário de peixe fresco encontra-se nas imediações.
Marina de Vilamoura: Adjacente a Quarteira, a Marina de Vilamoura de classe mundial (a maior da Europa) é uma grande atração, oferecendo iates de luxo, gastronomia internacional de excelência, lojas de luxo e uma vida noturna sofisticada.
Golfe de classe mundial: Quarteira situa-se no triângulo dourado do golfe do Algarve. A menos de 5 minutos de carro, os promotores imobiliários podem visitar campos de golfe de nível de campeonato, incluindo o Vilamoura Old Course, o Pinhal e o Victoria (sede do Portugal Masters).
Ligação ao aeroporto: A acessibilidade é um dos principais argumentos de venda. O Aeroporto Internacional de Faro (FAO) fica a cerca de 20 quilómetros de distância, permitindo uma viagem tranquila de 20 a 25 minutos pelas principais autoestradas.
Um projeto pronto para execução:
O tempo da especulação acabou; chegou a hora de construir. Este projeto já foi aprovado, tendo ultrapassado os principais obstáculos burocráticos. Este lote representa uma enorme alocação de capital num prazo acelerado, num dos mercados imobiliários de maior desempenho de Portugal.
Aproveite esta oportunidade para contornar a burocracia e começar a construir imediatamente num dos principais pontos de interesse residencial do Algarve.
Contacte-nos hoje mesmo para marcar a sua visita.
Tratamos do seu Crédito Habitação de forma simples, transparente e eficaz. Negociamos as melhores condições para o seu caso.
EasyGest Finance, o seu Intermediário de crédito de confiança, certificado pelo Banco de Portugal com o nº 0001802.
Ajudamos com todo o processo! Entre em contacto connosco ou deixe-nos os seus dados e entraremos em contacto assim que possível!
AL99018TV
Localização
Quarteira, Loulé, Faro
Informação do anúncio
ID do anúncio
1768036
Referência Externa
AL99018TV
Atualizado em
08/04/2026 14:22:28
Consultor
EasyGest Mediação Imobiliária
Terreno para Venda em Quarteira
Vídeo