Apartamento T3 para Venda em Malta e Canidelo
695.000 €
Tipo
Apartamento
Negócio
Venda
Ano de Construção
2023
Quartos
3
Casas de Banho
4
Área Bruta
154 m²
Área Útil
154 m²
Condição
Em construção
Certificado Energético
A
Área do Terreno
261 m²
Fabuloso T3 à Beira Mar
Seaside Luxury Apartments
Fabuloso T3 à beira-mar
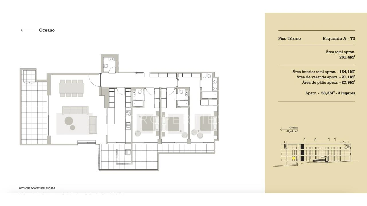
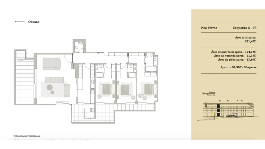
Este fabuloso apartamento T3 (Piso 0 - fração A) está inserido num novo empreendimento a nascer numa zona privilegiada de Vila Nova de Gaia.
À beira-mar, este é o local perfeito para quem valoriza um elevado padrão de vida, com os pés no oceano e a 10 minutos do centro do Porto.
O imóvel é constituído por hall de entrada, sala comum, cozinha, wc de apoio, três quartos com wc privativo, perfazendo a área de 154.1m2.
Na cave dispõe de um espaço fechado destinado a estacionamento automóvel (Box) com a área de 55.7m2.
Tem direito ao uso exclusivo de uma varanda com a área de 49m2.
A fracção tem uma área total aproximada de 258.8m2.
Conclusão da obra: Final 2024
EXTERIOR
? Caixilharia de correr, com ruptura térmica, cor cinza escuro. Vidros duplos baixo emissivos.
? Revestimento de fachada em material cerâmico de grande formato 120x260cm, efeito
betão cor cinza acastanhado (fachada ventilada).
? Pavimento em material cerâmico, 60x60cm, efeito betão cor cinza acastanhado, aplicado
sobre apoios.
? Lajes das varandas em betão aparente.
? Zona de estendal/ lavandaria: revestimento em chapa de alumínio e ripado vertical em
perfis de alumínio, cor acastanhado.
? Guardas das varandas em vidro transparente.
? Spa tipo ?Easpas?, ou equivalente, revestidos a madeira termo-modificada (pátios do piso
térreo).
? Iluminação LED: luminária linear embutida nos tectos das varandas.
TERRAÇOS (Cobertura)
? Pavimento em material cerâmico, 60x60, efeito betão cor cinza acastanhado, aplicado sobre apoios.
? Swimspa tipo ?Easpas?, ou equivalente, revestidos a madeira termo-modificada.
? Divisórias entre fracções em vidro fosco.
? Guardas em vidro transparente.
? Bancadas em betão aparente com arrumos com portas em grelhagem de alumínio cor cinza
escuro.
? Iluminação LED: luminária linear embutida nos muretes; apliques da parede junto das
bancadas;
INTERIOR Apartamentos Geral
? Pavimento multicamadas em madeira (3+12).
? Paredes com acabamento estanhado na cor branco RAL9010
? Portas e armários esmaltados na cor branco RAL9010 ou com acabamento em madeira,
conforme os casos.
? Isolamento acústico nas paredes entre fracções e entre fracções e áreas comuns, assim
como nos pisos e lajes maciças.
? Bombas de calor, apoiadas em certos casos, por painéis solares fotovoltaicos.
? Instalação de ar condicionado na sala, cozinha e quartos com o sistema tipo ?split de
condutas?.
? Unidades de renovação de ar VMC (Ventilação Mecânica Controlada).
? Estores blackouts enroláveis.
? Sistema de domótica com módulo de base com controlo de iluminação, estores e
climatização.
? Iluminação LED: focos embutidos na generalidade dos espaços; luminária linear embutida nos banhos, junto aos espelhos, e na cozinha, sobre as bancadas.
? Aparelhagem de manobra, interruptores e tomadas tipo "Gira", ou equivalente.
? Porta de segurança tipo ?Power da Portrisa?, ou equivalente, folheada em ambas as faces
na cor madeira.
Cozinha
? Pavimento em material cerâmico rectificado, efeito betão cor cinza acastanhado.
? Móveis em termolaminado branco.
? Tampos e entre móveis em compacto de sílica natural tipo ?Silestone?, ou equivalente.
Bancada da península, quando existe, em contraplacado de madeira.
? Electrodomésticos tipo ?Siemens?, ou equivalente: placa de fogão de indução, exaustor, forno, microondas, frigorífico combinado de encastre, máquina de lavar loiça de encastre
e máquina de lavar e secar roupa.
? Torneira de bancada com chuveiro extraível tipo ?Ginger da Bruma?, ou equivalente.
Sanitário de apoio
? Pavimento multicamadas em madeira (3+12).
? Revestimento de paredes em material cerâmico rectificado, efeito mármore.
? Sanita suspensa tipo ?Urb.y. da Sanindusa?, ou equivalente e bancada com lavatório tipo
?Corian?, ou equivalente.
? Torneiras (bica à parede ou de bancada, conforme os casos) tipo ?Leaf da Bruma?, ou
equivalente.
? Acessórios tipo ?JNF?, ou equivalente.
Banhos
? Pavimento e revestimento de paredes em material cerâmico rectificado, efeito mármore.
? Louças sanitárias: sanita e bidé suspensos tipo ?Urb.y. Sanindusa?, ou equivalente; bancadas com lavatórios tipo ?Corian?, ou equivalente (suites); bancadas em compacto de sílica natural tipo ?Silestone?, ou equivalente, com lavatório de encastrar tipo ?Anna da
Sanindusa?, ou equivalente (suite principal); base de duche plana branca.
? Torneiras (bica à parede ou de bancada, conforme os casos) tipo ?Leaf da Bruma?, ou
equivalente.
? Acessórios tipo ?JNF?, ou equivalente.
? Seca-toalhas eléctricos.
Garagens
? Box com 2, 3 ou 4 lugares de estacionamento, fechada com portão seccionado.
? Tomadas com ligação directa ao quadro, possibilitando a colocação posterior de um posto
de carregamento para carros eléctricos.
Fabuloso T3 à beira-mar
Este fabuloso apartamento T3 (Piso 0 - fração A) está inserido num novo empreendimento a nascer numa zona privilegiada de Vila Nova de Gaia.
À beira-mar, este é o local perfeito para quem valoriza um elevado padrão de vida, com os pés no oceano e a 10 minutos do centro do Porto.
O imóvel é constituído por hall de entrada, sala comum, cozinha, wc de apoio, três quartos com wc privativo, perfazendo a área de 154.1m2.
Na cave dispõe de um espaço fechado destinado a estacionamento automóvel (Box) com a área de 55.7m2.
Tem direito ao uso exclusivo de uma varanda com a área de 49m2.
A fracção tem uma área total aproximada de 258.8m2.
Conclusão da obra: Final 2024
EXTERIOR
? Caixilharia de correr, com ruptura térmica, cor cinza escuro. Vidros duplos baixo emissivos.
? Revestimento de fachada em material cerâmico de grande formato 120x260cm, efeito
betão cor cinza acastanhado (fachada ventilada).
? Pavimento em material cerâmico, 60x60cm, efeito betão cor cinza acastanhado, aplicado
sobre apoios.
? Lajes das varandas em betão aparente.
? Zona de estendal/ lavandaria: revestimento em chapa de alumínio e ripado vertical em
perfis de alumínio, cor acastanhado.
? Guardas das varandas em vidro transparente.
? Spa tipo ?Easpas?, ou equivalente, revestidos a madeira termo-modificada (pátios do piso
térreo).
? Iluminação LED: luminária linear embutida nos tectos das varandas.
TERRAÇOS (Cobertura)
? Pavimento em material cerâmico, 60x60, efeito betão cor cinza acastanhado, aplicado sobre apoios.
? Swimspa tipo ?Easpas?, ou equivalente, revestidos a madeira termo-modificada.
? Divisórias entre fracções em vidro fosco.
? Guardas em vidro transparente.
? Bancadas em betão aparente com arrumos com portas em grelhagem de alumínio cor cinza
escuro.
? Iluminação LED: luminária linear embutida nos muretes; apliques da parede junto das
bancadas;
INTERIOR Apartamentos Geral
? Pavimento multicamadas em madeira (3+12).
? Paredes com acabamento estanhado na cor branco RAL9010
? Portas e armários esmaltados na cor branco RAL9010 ou com acabamento em madeira,
conforme os casos.
? Isolamento acústico nas paredes entre fracções e entre fracções e áreas comuns, assim
como nos pisos e lajes maciças.
? Bombas de calor, apoiadas em certos casos, por painéis solares fotovoltaicos.
? Instalação de ar condicionado na sala, cozinha e quartos com o sistema tipo ?split de
condutas?.
? Unidades de renovação de ar VMC (Ventilação Mecânica Controlada).
? Estores blackouts enroláveis.
? Sistema de domótica com módulo de base com controlo de iluminação, estores e
climatização.
? Iluminação LED: focos embutidos na generalidade dos espaços; luminária linear embutida nos banhos, junto aos espelhos, e na cozinha, sobre as bancadas.
? Aparelhagem de manobra, interruptores e tomadas tipo "Gira", ou equivalente.
? Porta de segurança tipo ?Power da Portrisa?, ou equivalente, folheada em ambas as faces
na cor madeira.
Cozinha
? Pavimento em material cerâmico rectificado, efeito betão cor cinza acastanhado.
? Móveis em termolaminado branco.
? Tampos e entre móveis em compacto de sílica natural tipo ?Silestone?, ou equivalente.
Bancada da península, quando existe, em contraplacado de madeira.
? Electrodomésticos tipo ?Siemens?, ou equivalente: placa de fogão de indução, exaustor, forno, microondas, frigorífico combinado de encastre, máquina de lavar loiça de encastre
e máquina de lavar e secar roupa.
? Torneira de bancada com chuveiro extraível tipo ?Ginger da Bruma?, ou equivalente.
Sanitário de apoio
? Pavimento multicamadas em madeira (3+12).
? Revestimento de paredes em material cerâmico rectificado, efeito mármore.
? Sanita suspensa tipo ?Urb.y. da Sanindusa?, ou equivalente e bancada com lavatório tipo
?Corian?, ou equivalente.
? Torneiras (bica à parede ou de bancada, conforme os casos) tipo ?Leaf da Bruma?, ou
equivalente.
? Acessórios tipo ?JNF?, ou equivalente.
Banhos
? Pavimento e revestimento de paredes em material cerâmico rectificado, efeito mármore.
? Louças sanitárias: sanita e bidé suspensos tipo ?Urb.y. Sanindusa?, ou equivalente; bancadas com lavatórios tipo ?Corian?, ou equivalente (suites); bancadas em compacto de sílica natural tipo ?Silestone?, ou equivalente, com lavatório de encastrar tipo ?Anna da
Sanindusa?, ou equivalente (suite principal); base de duche plana branca.
? Torneiras (bica à parede ou de bancada, conforme os casos) tipo ?Leaf da Bruma?, ou
equivalente.
? Acessórios tipo ?JNF?, ou equivalente.
? Seca-toalhas eléctricos.
Garagens
? Box com 2, 3 ou 4 lugares de estacionamento, fechada com portão seccionado.
? Tomadas com ligação directa ao quadro, possibilitando a colocação posterior de um posto
de carregamento para carros eléctricos.
Localização
Malta e Canidelo, Vila do Conde, Porto
Informação do anúncio
ID do anúncio
1768580
Referência Externa
IPMV59
Atualizado em
26/04/2026 06:57:33
Anunciante
Chamada para a rede móvel nacional
Invictus Properties
AMI 22813
Referência do imóvel:
IPMV59
Apartamento T3 para Venda em Malta e Canidelo