Terreno para Venda em Gondifelos, Cavalões e Outiz
260.000 €
Tipo
Terreno
Negócio
Venda
Área Útil
2600 m²
Condição
Novo
Certificado Energético
Isento
Área do Terreno
2600 m²
Dois lotes terreno com projeto moradia
Ref. Interna: TC1405
Dois lotes de terreno para venda em conjunto, com projeto de construção de moradia geminada, de tipologia T3 e 3 frentes localizado em Vila Nova de Famalicão.
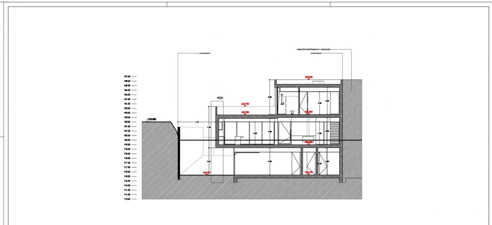
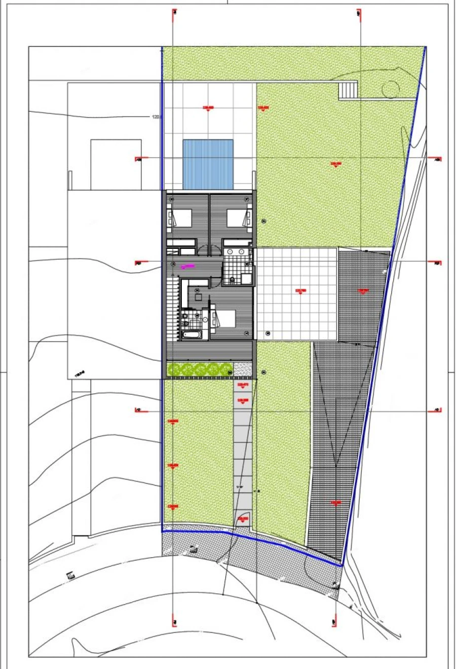
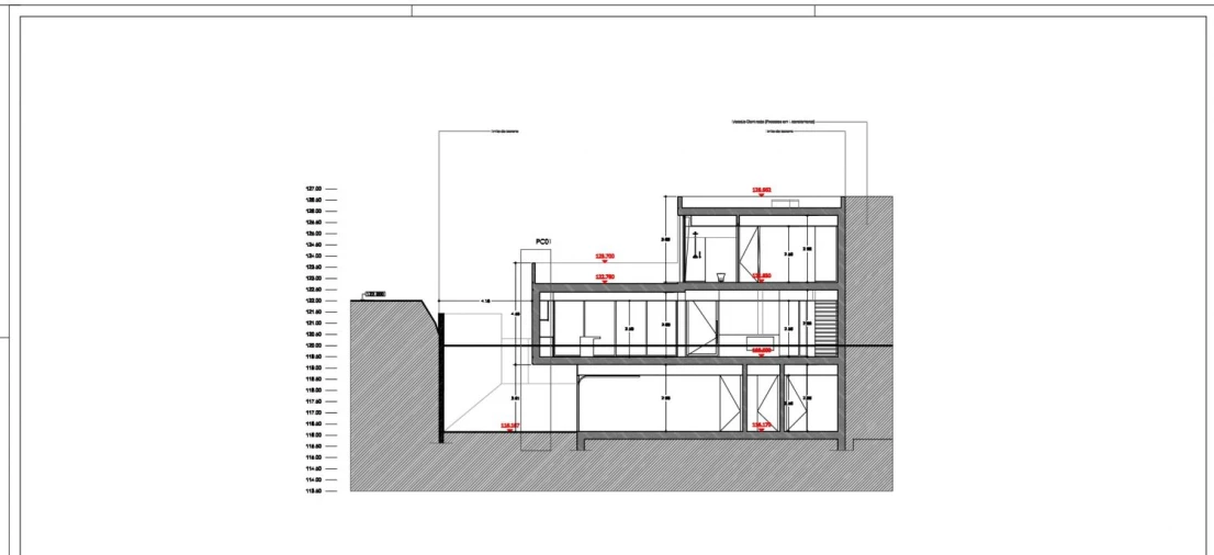
Cada moradia composta por três pisos (cave, r/c e primeiro andar), inseridas em terreno de cerca de 2600m2, sendo a área bruta de construção de cerca de 623,78m2.
Na cave existe uma lavandaria e uma garagem fechada com lugar para dois carros com cerca de 50m2.
O r/c possui no exterior um excelente terraço com piscina de 28m2 e no interior a zona social (cozinha em open space com cerca de 70m2) e uma casa de banho de serviço.
No primeiro andar encontram-se uma fantástica suíte com closet e terraço com cerca de 46m2, dois quartos com roupeiros embutidos e uma casa de banho completa de apoio aos quartos.
Situado a cerca de 6 minutos do centro da cidade.
Nas imediações podemos encontrar fácil acesso a todo o tipo de produtos, serviços e transportes.
Não se preocupe com a burocracia ou com a extenuante tarefa de analisar as propostas de crédito; temos à sua disposição um departamento jurídico que assegura que tudo é tratado dentro dos trâmites legais e de forma a salvaguardar os seus interesses, e departamento de análise de crédito que o auxiliará na interpretação das melhores propostas conseguidas.
Marque já a sua visita.
IMPACTUS,
a criar impacto desde o primeiro clique!
Internal Ref.: TC1405
Two plots of land for sale together, with a project to build a semi-detached house, type T3 and 3 fronts, located in Vila Nova de Famalicão.
Each house consists of three floors (basement, ground floor and first floor), located on a plot of approximately 2600m2, with a gross construction area of approximately 623.78m2.
In the basement there is a laundry room and a closed garage with space for two cars measuring around 50m2.
The ground floor has an excellent terrace outside with a 28m2 swimming pool and inside the social area (open space kitchen measuring around 70m2) and a guest bathroom.
On the first floor there is a fantastic suite with dressing room and terrace measuring approximately 46m2, two bedrooms with built-in wardrobes and a complete bathroom to support the bedrooms.
Located about 6 minutes from the city center.
Nearby we can find easy access to all types of products, services and transport.
Don't worry about bureaucracy or the exhausting task of analyzing credit proposals; We have at your disposal a legal department that ensures that everything is handled within legal procedures and in a way that safeguards your interests, and a credit analysis department that will assist you in interpreting the best proposals obtained.
Mark your visit.
IMPACTUS,
creating impact from the first click!
Dois lotes de terreno para venda em conjunto, com projeto de construção de moradia geminada, de tipologia T3 e 3 frentes localizado em Vila Nova de Famalicão.
Cada moradia composta por três pisos (cave, r/c e primeiro andar), inseridas em terreno de cerca de 2600m2, sendo a área bruta de construção de cerca de 623,78m2.
Na cave existe uma lavandaria e uma garagem fechada com lugar para dois carros com cerca de 50m2.
O r/c possui no exterior um excelente terraço com piscina de 28m2 e no interior a zona social (cozinha em open space com cerca de 70m2) e uma casa de banho de serviço.
No primeiro andar encontram-se uma fantástica suíte com closet e terraço com cerca de 46m2, dois quartos com roupeiros embutidos e uma casa de banho completa de apoio aos quartos.
Situado a cerca de 6 minutos do centro da cidade.
Nas imediações podemos encontrar fácil acesso a todo o tipo de produtos, serviços e transportes.
Não se preocupe com a burocracia ou com a extenuante tarefa de analisar as propostas de crédito; temos à sua disposição um departamento jurídico que assegura que tudo é tratado dentro dos trâmites legais e de forma a salvaguardar os seus interesses, e departamento de análise de crédito que o auxiliará na interpretação das melhores propostas conseguidas.
Marque já a sua visita.
IMPACTUS,
a criar impacto desde o primeiro clique!
Internal Ref.: TC1405
Two plots of land for sale together, with a project to build a semi-detached house, type T3 and 3 fronts, located in Vila Nova de Famalicão.
Each house consists of three floors (basement, ground floor and first floor), located on a plot of approximately 2600m2, with a gross construction area of approximately 623.78m2.
In the basement there is a laundry room and a closed garage with space for two cars measuring around 50m2.
The ground floor has an excellent terrace outside with a 28m2 swimming pool and inside the social area (open space kitchen measuring around 70m2) and a guest bathroom.
On the first floor there is a fantastic suite with dressing room and terrace measuring approximately 46m2, two bedrooms with built-in wardrobes and a complete bathroom to support the bedrooms.
Located about 6 minutes from the city center.
Nearby we can find easy access to all types of products, services and transport.
Don't worry about bureaucracy or the exhausting task of analyzing credit proposals; We have at your disposal a legal department that ensures that everything is handled within legal procedures and in a way that safeguards your interests, and a credit analysis department that will assist you in interpreting the best proposals obtained.
Mark your visit.
IMPACTUS,
creating impact from the first click!
Localização
Gondifelos, Cavalões e Outiz, Vila Nova de Famalicão, Braga
Informação do anúncio
ID do anúncio
1771157
Referência Externa
TC1405
Atualizado em
10/04/2026 13:15:09
Anunciante
Chamada para a rede móvel nacional
Impactus Imobiliária
AMI 18066
Referência do imóvel:
TC1405
Terreno para Venda em Gondifelos, Cavalões e Outiz